Aerogate Homes

Eladó ikerház
Szigetszentmiklós

+ 10 kép 1/13
79 900 000 Ft79.9 M Ft 1 024 359 Ft/m2
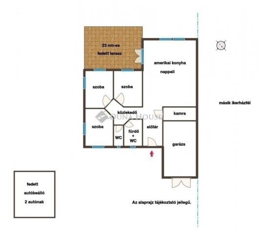
4 szoba
78 m2
építés éve:2008

Részletes adatok

Állapot: Felújított
Telekméret: 500 m2
Fűtés: Gázkazán
Energetikai besorolás: Nem adta meg a hirdető

Az OTP Bank lakáshitel ajánlataFizetett hirdetés

+36 1 444
Pántya Mónika
referens

Érdekel az OTP Bank kedvezményes lakáshitel ajánlata? *

* A kérdésre „Igen” válasz bejelölése esetén, az „Üzenet küldése” gombra kattintva kijelentem, hogy az OTP Bank Nyrt. Adatkezelési tájékoztatójának tartalmát megismertem és tudomásul vettem.

Eladó ikerház leírása

Szigetszentmiklóson, 2008-ban téglából épült szigetelt, nappali +3 hálószobás, 78 m2-es, ikerház, 500 m2-es telekkel, csendes zsákutcában sürgősen eladó!

- 30 cm vastag téglafalazat
- 10 cm szigetelés
- műanyag nyílászárók, redőny, szúnyogháló
- klíma
- fűtött garázs
- gázcirkó fűtés
- összközműves
- fedett terasz

A közelben, buszmegálló, bevásárlási lehetőség, óvoda, iskola minden elérhető, amire a hétköznapokban szüksége lehet, éttermek, csónakbérlés és kirándulási lehetőség várja az érdeklődőket, közel a városhoz, de mégis modern, vidékies hangulatban.
Ez az, amit keresett? Ne habozzon, a hét bármely napján elérhető vagyok telefonon és e-mailen is! Jöjjön, nézzük meg együtt és szeressen bele!
Keressenek bizalommal!
Üdvözlettel: az Ön ingatlan értékesítője:
Pántya Mónika
Ezüst fokozatú értékesítő
pantya.monika@dh.hu
+36309142874
https://dh.hu/ingatlankozvetito/pantya-monika

Referencia szám: HZ023605

Hirdetés feltöltve: 2025. 11. 20.

4 szobás ikerházak ára Szigetszentmiklóson

Ebből az összehasonlításból megtudhatod, hogyan viszonyul a lakás ára a környékbeli ikerházak átlagos árához. Ez nem azt jelenti, hogy ennyivel olcsóbb vagy drágább, mint amennyit a lakás ér, hanem hogy ennyivel tér el a környékbeli átlagtól.

Ennek a m² ára
Szigetszentmiklós m² ár
1024 e Ft
999 e Ft -3%
Ennek az ára
Szigetszentmiklós átlagár
79.9 M Ft m Ft
95.6 m Ft 16%

Az ingatlan elhelyezkedése

Cím: Szigetszentmiklós

Eladó ikerházak a környékről

Eladó ikerház
Eladó ikerház

Szigetszentmiklós

81.7 M Ft
4 szoba
99 m2
Eladó ikerház
Eladó ikerház

Szigetszentmiklós

70 M Ft
2 szoba
70 m2
Eladó ikerház
Eladó ikerház

Pusztazámor

55 M Ft
10 szoba
470 m2
Eladó ikerház
Eladó ikerház

Tahitótfalu

88.9 M Ft
4 szoba
110 m2
Eladó ikerház
Eladó ikerház

Diósd

206.25 M Ft
5 szoba
184 m2
Eladó ikerház
Eladó ikerház

Vác

94.5 M Ft
4 + 1 szoba
126 m2
Eladó ikerház
Eladó ikerház

Vác

149.9 M Ft
5 szoba
202 m2
Eladó ikerház
Eladó ikerház

Szigetszentmiklós

104.9 M Ft
5 szoba
111 m2
Eladó ikerház
Eladó ikerház

Szigetszentmiklós

104.9 M Ft
5 szoba
111 m2
Eladó ikerház
Eladó ikerház

Szigetszentmiklós

104.9 M Ft
5 szoba
111 m2
Eladó ikerház
Eladó ikerház

Diósd

213.46 M Ft
5 szoba
186 m2
Eladó ikerház
Eladó ikerház

Szigetszentmiklós

99.9 M Ft
4 szoba
91 m2
Eladó ikerház
Eladó ikerház

Szigetszentmiklós

104.9 M Ft
4 + 1 szoba
121 m2
Eladó ikerház
Eladó ikerház

Szigetszentmiklós

78.5 M Ft
4 szoba
105 m2
Eladó ikerház
Eladó ikerház

Vác

175.356 M Ft
5 szoba
165 m2
Eladó ikerház
Eladó ikerház

Szigetszentmiklós

104.9 M Ft
4 + 1 szoba
121 m2
Eladó ikerház
Eladó ikerház

Szentendre, Szentendre

398 M Ft
5 szoba
267 m2
Eladó ikerház
Eladó ikerház

Rád

100 M Ft
4 szoba
152 m2
Eladó ikerház
Eladó ikerház

Szigetszentmiklós

104.9 M Ft
4 + 1 szoba
121 m2
Eladó ikerház
Eladó ikerház

Szigetszentmiklós

147.75 M Ft
5 + 1 szoba
142 m2
Eladó ikerház
Eladó ikerház

Szigetszentmiklós

86.45 M Ft
5 szoba
93 m2
Eladó ikerház
Eladó ikerház

Szentendre

179 M Ft
5 + 1 szoba
147 m2
Eladó ikerház
Eladó ikerház

Pomáz

129.5 M Ft
4 szoba
100 m2
Eladó ikerház
Eladó ikerház

Szigetszentmiklós

99 M Ft
4 szoba
90 m2

Falusi CSOK ingatlanok

Eladó családi ház
Eladó családi ház

Dunavecse

25 M Ft
3 szoba
120 m2
Eladó családi ház
Eladó családi ház

Vaszar

29.5 M Ft
2 szoba
76 m2
Eladó téglalakás
Eladó téglalakás

Újlengyel

72.99 M Ft
2 szoba
68 m2
Eladó családi ház
Eladó családi ház

Vilonya

71.9 M Ft
5 szoba
105 m2
Eladó családi ház
Eladó családi ház

Galgahévíz

188 M Ft
4 szoba
125 m2
Eladó családi ház
Eladó családi ház

Szigetcsép

109.9 M Ft
3 szoba
77 m2
Eladó családi ház
Eladó családi ház

Orci

119.9 M Ft
6 szoba
200 m2
Eladó családi ház
Eladó családi ház

Somogygeszti

10.9 M Ft
2 szoba
115 m2