Stay Family Park

Eladó ikerház
Szigethalom, 1. emelet

+ 17 kép 1/20
89 900 000 Ft89.9 M Ft 548 171 Ft/m2
4 szoba
164 m2
1. emelet
építés éve:2000

Részletes adatok

Állapot: Átlagos
Telekméret: 299 m2
Fűtés: Gázkazán
Energetikai besorolás: Nem adta meg a hirdető
Zenga Premier

Friss hirdetések, amiket nem találsz meg más ingatlankereső portálon.

Fedezd fel elsőként a Zenga Premier címkés eladó ingatlanokat!

További részletek a zenga.hu-n

Az OTP Bank lakáshitel ajánlataFizetett hirdetés

+36 30 439
Szilveszter Noémi
referens

Érdekel az OTP Bank kedvezményes lakáshitel ajánlata? *

* A kérdésre „Igen” válasz bejelölése esetén, az „Üzenet küldése” gombra kattintva kijelentem, hogy az OTP Bank Nyrt. Adatkezelési tájékoztatójának tartalmát megismertem és tudomásul vettem.

Eladó ikerház leírása

Különálló lakás saját kerttel Szigethalom központi részén felújított, világos otthon HÉV közelében
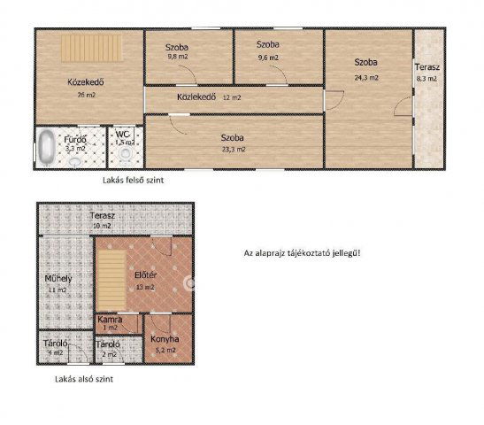
Szigethalom egyik jól megközelíthető, központi részén eladó egy tágas, világos, külön bejáratú lakás egy régen családi házként épült ingatlan emeleti részén. A teljes ingatlan eredetileg egy nagy ház volt, ma társasházi szerződéssel megosztva, jogilag rendezett formában két külön lakásként működik az egyik a földszinten, a másik (az eladásra kínált) az emeleten, melyet külön külső lépcsőn keresztül lehet megközelíteni.
A bruttó 165 nm-es alapterületből 120 nm lett igényesen felújítva három évvel ezelőtt, ami a lakótér. A fennmaradó rész a földszinten található, jelenleg mosókonyhaként és műhelyként használható, viszont ez a terület még nem esett át felújításon ugyanakkor remek lehetőséget kínál a későbbiekben például hobbitér, tároló vagy akár iroda kialakítására.
A lakásban négy külön nyíló, tágas szoba található, napfényes terek, jó elosztás, kellemes hangulat jellemzi. A felújítás során modern burkolatok, új nyílászárók és korszerű elektromos hálózat is kiépítésre került, így valóban költözhető állapotban van.
Az ingatlanhoz 280 négyzetméteres, kizárólagos használatú saját kert tartozik, amely ritkaság ilyen elhelyezkedés mellett. Itt jut hely pihenésnek, kertészkedésnek, vagy akár családi, baráti összejöveteleknek is.
Bár az utca forgalmasabb, a HÉV-megálló néhány perc sétával elérhető, így a főváros gyorsan megközelíthető akár autó nélkül is. A közelben minden fontos szolgáltatás megtalálható iskola, óvoda, bevásárlási lehetőségek és egészségügyi ellátás.
A lakás saját helyrajzi számmal rendelkezik, valamennyi közmű külön mérőórán keresztül történik, tehát valóban önálló otthonról beszélhetünk.
Ez a lakás tökéletes választás lehet azoknak, akik szeretnének városi közelségben élni, de nem akarnak lemondani a kert nyújtotta szabadságról és egy valóban különálló, saját tulajdonú lakás kényelméről.

Hirdetés feltöltve: 2025. 12. 16. Utoljára módosítva: 2025. 12. 16.

4 szobás ikerházak ára Szigethalmon

Ebből az összehasonlításból megtudhatod, hogyan viszonyul a lakás ára a környékbeli ikerházak átlagos árához. Ez nem azt jelenti, hogy ennyivel olcsóbb vagy drágább, mint amennyit a lakás ér, hanem hogy ennyivel tér el a környékbeli átlagtól.

Ennek a m² ára
Szigethalom m² ár
548 e Ft
942 e Ft 42%
Ennek az ára
Szigethalom átlagár
89.9 M Ft m Ft
84.9 m Ft -6%

Az ingatlan elhelyezkedése

Cím: Szigethalom, 1. emelet

Eladó ikerházak a környékről

Eladó ikerház
Eladó ikerház

Szigethalom

60 M Ft
5 szoba
120 m2
Eladó ikerház
Eladó ikerház

Pécel, Pécel - kertváros

127 M Ft
4 szoba
125 m2
Eladó ikerház
Eladó ikerház

Szigethalom

60 M Ft
5 szoba
120 m2
Eladó ikerház
Eladó ikerház

Pécel

149.9 M Ft
5 szoba
306 m2
Eladó ikerház
Eladó ikerház

Szigethalom

79.99 M Ft
4 szoba
110 m2
Eladó ikerház
Eladó ikerház

Szigethalom

79.9 M Ft
4 szoba
109 m2
Eladó ikerház
Eladó ikerház

Vác

96.5 M Ft
4 + 1 szoba
129 m2
Eladó ikerház
Eladó ikerház

Szigethalom

90 M Ft
4 szoba
72 m2
Eladó ikerház
Eladó ikerház

Érd, Érdligeten található utca

64.9 M Ft
4 szoba
112 m2
Eladó ikerház
Eladó ikerház

Szigethalom

77.5 M Ft
3 + 1 szoba
107 m2
Eladó ikerház
Eladó ikerház

Szigethalom

77.5 M Ft
3 + 1 szoba
107 m2
Eladó ikerház
Eladó ikerház

Szigethalom

83.9 M Ft
5 szoba
84 m2
Eladó ikerház
Eladó ikerház

Szigethalom

76.2 M Ft
4 szoba
103 m2
Eladó ikerház
Eladó ikerház

Vác

175.356 M Ft
5 szoba
165 m2
Eladó ikerház
Eladó ikerház

Diósd

206.25 M Ft
5 szoba
184 m2
Eladó ikerház
Eladó ikerház

Pomáz

129.5 M Ft
4 szoba
100 m2
Eladó ikerház
Eladó ikerház

Szigethalom, Mű út közeli

98.9 M Ft
4 szoba
100 m2
Eladó ikerház
Eladó ikerház

Szigethalom

90 M Ft
4 szoba
72 m2
Eladó ikerház
Eladó ikerház

Szigethalom

89.999 M Ft
4 szoba
105 m2
Eladó ikerház
Eladó ikerház

Solymár

150 M Ft
4 + 2 szoba
252 m2
Eladó ikerház
Eladó ikerház

Dunakeszi

149 M Ft
1 + 4 szoba
127 m2
Eladó ikerház
Eladó ikerház

Vác

94.5 M Ft
4 + 1 szoba
126 m2
Eladó ikerház
Eladó ikerház

Pusztazámor

55 M Ft
10 szoba
470 m2
Eladó ikerház
Eladó ikerház

Diósd

213.46 M Ft
5 szoba
186 m2

Falusi CSOK ingatlanok

Eladó családi ház
Eladó családi ház

Bag

16.9 M Ft
6 szoba
160 m2
Eladó családi ház
Eladó családi ház

Vácszentlászló

45 M Ft
4 szoba
100 m2
Eladó családi ház
Eladó családi ház

Sellye

21.6 M Ft
2 szoba
72 m2
Eladó családi ház
Eladó családi ház

Patak

26.9 M Ft
4 szoba
160 m2
Eladó családi ház
Eladó családi ház

Kutas

22.9 M Ft
3 szoba
150 m2
Eladó családi ház
Eladó családi ház

Tápióság

30 M Ft
3 szoba
67 m2
Eladó családi ház
Eladó családi ház

Törtel

32 M Ft
2 szoba
67 m2
Eladó családi ház
Eladó családi ház

Homokbödöge

49.9 M Ft
4 + 1 szoba
167 m2