Pesti Házak

Eladó ikerház
Szigetcsép

Figyelem!

Ez az ingatlan a 2019.07.01-től induló falusi CSOK által támogatott településen található

+ 13 kép 1/16
86 900 000 Ft86.9 M Ft 775 893 Ft/m2
2 + 3 szoba
112 m2
építés éve:2024

Részletes adatok

Telekméret: 1333 m2
Fűtés: Gázkazán
Energetikai besorolás: Nem adta meg a hirdető

Az OTP Bank lakáshitel ajánlataFizetett hirdetés

+36 70 907
Fábián Éva
Szigetszentmiklós OTP Ip

Érdekel az OTP Bank kedvezményes lakáshitel ajánlata? *

* A kérdésre „Igen” válasz bejelölése esetén, az „Üzenet küldése” gombra kattintva kijelentem, hogy az OTP Bank Nyrt. Adatkezelési tájékoztatójának tartalmát megismertem és tudomásul vettem.

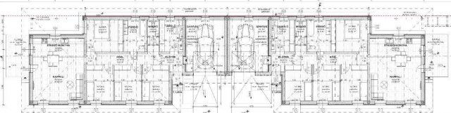
Eladó ikerház leírása

Pest vármegye, Szigetcsép új építésű részén 112nm-es utca fronti ikerház fél eladó 500nm-es telek résszel. Az ingatlan új, készültségi foka 90%-os. Átadása kulcsrakészen kerül sor, teljesen befejezve konyhabútorral. Az ingatlanok egymáshoz garázzsal kapcsolódnak, teljesen le vannak választva egymástól. A házban található egy szoba, egy amerikai konyhás nappali, három félszoba, fürdőszoba wc-vel, wc és tároló, ezen kívűl egy garázs. Az otthon melegéről kombi gáz cirkó gondoskodik padlófűtéses rendszeren keresztül. Vevő ügyfeleinket díjmentes hitel tanácsadással, és a piaci hiteleknél kedvezőbb hitelekkel lepjük meg. További kérdését várom bizalommal.

Hirdetés feltöltve: 2025. 10. 16. Utoljára módosítva: 2025. 11. 02.

5 szobás ikerházak ára Szigetcsépen

Ebből az összehasonlításból megtudhatod, hogyan viszonyul a lakás ára a környékbeli ikerházak átlagos árához. Ez nem azt jelenti, hogy ennyivel olcsóbb vagy drágább, mint amennyit a lakás ér, hanem hogy ennyivel tér el a környékbeli átlagtól.

Ennek a m² ára
Szigetcsép m² ár
776 e Ft
725 e Ft -7%
Ennek az ára
Szigetcsép átlagár
86.9 M Ft m Ft
91.6 m Ft 5%

Az ingatlan elhelyezkedése

Cím: Szigetcsép

Eladó ikerházak a környékről

Eladó ikerház
Eladó ikerház

Szigetcsép

88.9 M Ft
2 + 3 szoba
112 m2
Eladó ikerház
Eladó ikerház

Szigetcsép

91.9 M Ft
5 szoba
134 m2
Eladó ikerház
Eladó ikerház

Szigetcsép

88.9 M Ft
5 szoba
134 m2
Eladó ikerház
Eladó ikerház

Dunakeszi

149 M Ft
1 + 4 szoba
127 m2
Eladó ikerház
Eladó ikerház

Szigetcsép

115 M Ft
5 szoba
123 m2
Eladó ikerház
Eladó ikerház

Dunaharaszti

124.999 M Ft
4 szoba
105 m2
Eladó ikerház
Eladó ikerház

Tahitótfalu

88.9 M Ft
4 szoba
110 m2
Eladó ikerház
Eladó ikerház

Érd, Érdligeten található utca

64.9 M Ft
4 szoba
112 m2
Eladó ikerház
Eladó ikerház

Szigetcsép

91.9 M Ft
5 szoba
134 m2
Eladó ikerház
Eladó ikerház

Szigetcsép

91.9 M Ft
5 szoba
112 m2
Eladó ikerház
Eladó ikerház

Vác

175.356 M Ft
5 szoba
165 m2
Eladó ikerház
Eladó ikerház

Vác

175.356 M Ft
5 szoba
165 m2
Eladó ikerház
Eladó ikerház

Szigetcsép

91.9 M Ft
5 szoba
134 m2
Eladó ikerház
Eladó ikerház

Pécel, Pécel - kertváros

127 M Ft
4 szoba
125 m2
Eladó ikerház
Eladó ikerház

Szigetcsép

88.9 M Ft
4 szoba
112 m2
Eladó ikerház
Eladó ikerház

Pusztazámor

55 M Ft
10 szoba
470 m2
Eladó ikerház
Eladó ikerház

Szigetcsép

91.9 M Ft
5 szoba
134 m2
Eladó ikerház
Eladó ikerház

Rád

100 M Ft
4 szoba
152 m2
Eladó ikerház
Eladó ikerház

Szentendre

179 M Ft
5 + 1 szoba
147 m2
Eladó ikerház
Eladó ikerház

Szigetcsép

88.9 M Ft
5 szoba
134 m2
Eladó ikerház
Eladó ikerház

Szigetcsép

44.5 M Ft
2 szoba
56 m2
Eladó ikerház
Eladó ikerház

Pilisjászfalu

70.563 M Ft
4 szoba
61 m2
Eladó ikerház
Eladó ikerház

Veresegyház

145 M Ft
4 szoba
120 m2
Eladó ikerház
Eladó ikerház

Szigetcsép

91.9 M Ft
5 szoba
134 m2

Falusi CSOK ingatlanok

Eladó családi ház
Eladó családi ház

Tiszaalpár

23.9 M Ft
3 szoba
84 m2
Eladó családi ház
Eladó családi ház

Orci

119.9 M Ft
6 szoba
200 m2
Eladó családi ház
Eladó családi ház

Lázi

18.9 M Ft
2 szoba
74 m2
Eladó családi ház
Eladó családi ház

Tápiószőlős

3.5 M Ft
1 szoba
75 m2
Eladó családi ház
Eladó családi ház

Vaskút

19 M Ft
3 szoba
225 m2
Eladó családi ház
Eladó családi ház

Tass

55 M Ft
2 + 1 szoba
65 m2
Eladó családi ház
Eladó családi ház

Nagybaracska

42 M Ft
3 szoba
144 m2
Eladó családi ház
Eladó családi ház

Gáborján

5.5 M Ft
2 szoba
68 m2

Falusi CSOK ingatlanok

Eladó családi ház
Eladó családi ház

Iváncsa

73.9 M Ft
1 + 3 szoba
97 m2
Eladó családi ház
Eladó családi ház

Csatár

98.5 M Ft
5 szoba
150 m2
Eladó családi ház
Eladó családi ház

Gyékényes

29.99 M Ft
3 szoba
151 m2
Eladó családi ház
Eladó családi ház

Hernádnémeti

41.5 M Ft
2 + 1 szoba
73 m2
Eladó családi ház
Eladó családi ház

Mezőkeresztes

23.9 M Ft
2 + 1 szoba
82 m2
Eladó családi ház
Eladó családi ház

Zalaapáti, Bocsota

25 M Ft
2 szoba
55 m2
Eladó családi ház
Eladó családi ház

Tass

55 M Ft
2 + 1 szoba
65 m2
Eladó családi ház
Eladó családi ház

Nagyberény

24.9 M Ft
3 szoba
62 m2