Astora Olive Club House

Eladó ikerház
Szigetcsép

Figyelem!

Ez az ingatlan a 2019.07.01-től induló falusi CSOK által támogatott településen található

+ 13 kép 1/16
88 900 000 Ft88.9 M Ft 793 750 Ft/m2
2 + 3 szoba
112 m2
építés éve:2024

Részletes adatok

Telekméret: 1333 m2
Fűtés: Gázkazán
Energetikai besorolás: Nem adta meg a hirdető

Az OTP Bank lakáshitel ajánlataFizetett hirdetés

+36 30 400
Papp-Horváth Katalin
Otp Ingatlanpont Falk Miksa

Érdekel az OTP Bank kedvezményes lakáshitel ajánlata? *

* A kérdésre „Igen” válasz bejelölése esetén, az „Üzenet küldése” gombra kattintva kijelentem, hogy az OTP Bank Nyrt. Adatkezelési tájékoztatójának tartalmát megismertem és tudomásul vettem.

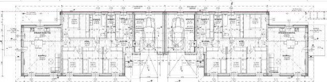
Eladó ikerház leírása

Pest vármegye, Szigetcsép új építésű részén 112nm-es utca fronti ikerház fél eladó 833 nm-es telek résszel. Az ingatlan új, készültségi foka 80%-os. Átadása kulcsrakészen kerül sor, teljesen befejezve konyhabútorral. Az ingatlanok egymáshoz garázzsal kapcsolódnak, teljesen le vannak választva egymástól. A házban található egy szoba, egy amerikai konyhás nappali, három félszoba, fürdőszoba wc-vel, wc és tároló, ezen kívűl egy garázs. Az otthon melegéről kombi gáz cirkó gondoskodik padlófűtéses rendszeren keresztül. Vevő ügyfeleinket díjmentes hitel tanácsadással, és a piaci hiteleknél kedvezőbb hitelekkel lepjük meg. További kérdését várom bizalommal.

Referencia szám: M288087

Hirdetés feltöltve: 2025. 09. 24. Utoljára módosítva: 2025. 11. 28.

5 szobás ikerházak ára Szigetcsépen

Ebből az összehasonlításból megtudhatod, hogyan viszonyul a lakás ára a környékbeli ikerházak átlagos árához. Ez nem azt jelenti, hogy ennyivel olcsóbb vagy drágább, mint amennyit a lakás ér, hanem hogy ennyivel tér el a környékbeli átlagtól.

Ennek a m² ára
Szigetcsép m² ár
794 e Ft
723 e Ft -10%
Ennek az ára
Szigetcsép átlagár
88.9 M Ft m Ft
91.5 m Ft 3%

Az ingatlan elhelyezkedése

Cím: Szigetcsép

Eladó ikerházak a környékről

Eladó ikerház
Eladó ikerház

Szentendre

359 M Ft
5 szoba
289 m2
Eladó ikerház
Eladó ikerház

Vác

175.356 M Ft
5 szoba
165 m2
Eladó ikerház
Eladó ikerház

Pomáz

129.5 M Ft
4 szoba
100 m2
Eladó ikerház
Eladó ikerház

Szigetcsép

91.9 M Ft
4 szoba
112 m2
Eladó ikerház
Eladó ikerház

Pécel

149.9 M Ft
5 szoba
306 m2
Eladó ikerház
Eladó ikerház

Szigetcsép

88.9 M Ft
5 szoba
134 m2
Eladó ikerház
Eladó ikerház

Szigetcsép

91.9 M Ft
5 szoba
113 m2
Eladó ikerház
Eladó ikerház

Vác

149.9 M Ft
5 szoba
202 m2
Eladó ikerház
Eladó ikerház

Szigetcsép

91.9 M Ft
5 szoba
134 m2
Eladó ikerház
Eladó ikerház

Szigetcsép

88.9 M Ft
5 szoba
158 m2
Eladó ikerház
Eladó ikerház

Szentendre, Szentendre

398 M Ft
5 szoba
267 m2
Eladó ikerház
Eladó ikerház

Szigetcsép

44.5 M Ft
2 szoba
56 m2
Eladó ikerház
Eladó ikerház

Dunakeszi

149 M Ft
1 + 4 szoba
127 m2
Eladó ikerház
Eladó ikerház

Dunaharaszti

124.999 M Ft
4 szoba
105 m2
Eladó ikerház
Eladó ikerház

Szigetcsép

86.9 M Ft
2 + 3 szoba
112 m2
Eladó ikerház
Eladó ikerház

Szigetcsép

91.9 M Ft
5 szoba
134 m2
Eladó ikerház
Eladó ikerház

Érd, Érdligeten található utca

64.9 M Ft
4 szoba
112 m2
Eladó ikerház
Eladó ikerház

Mogyoród, Fóti út

188 M Ft
6 szoba
182 m2
Eladó ikerház
Eladó ikerház

Szigetcsép

88.9 M Ft
5 szoba
134 m2
Eladó ikerház
Eladó ikerház

Szigetcsép

88.9 M Ft
2 + 3 szoba
112 m2
Eladó ikerház
Eladó ikerház

Pusztazámor

55 M Ft
10 szoba
470 m2
Eladó ikerház
Eladó ikerház

Vác

94.5 M Ft
4 + 1 szoba
126 m2
Eladó ikerház
Eladó ikerház

Szigetcsép

91.9 M Ft
5 szoba
134 m2
Eladó ikerház
Eladó ikerház

Szigetcsép

91.9 M Ft
5 szoba
134 m2

Falusi CSOK ingatlanok

Eladó családi ház
Eladó családi ház

Tápióság

62 M Ft
4 szoba
72 m2
Eladó családi ház
Eladó családi ház

Iváncsa

73.9 M Ft
1 + 3 szoba
97 m2
Eladó családi ház
Eladó családi ház

Egerszólát

45 M Ft
3 szoba
120 m2
Eladó családi ház
Eladó családi ház

Badacsonytördemic

182.36 M Ft
4 szoba
160 m2
Eladó családi ház
Eladó családi ház

Egyed

24.9 M Ft
2 + 1 szoba
56 m2
Eladó családi ház
Eladó családi ház

Mályi

84.9 M Ft
4 szoba
100 m2
Eladó családi ház
Eladó családi ház

Seregélyes

75 M Ft
6 szoba
160 m2
Eladó családi ház
Eladó családi ház

Pécsely, Szőlő Dülő

499 M Ft
4 + 2 szoba
183 m2

Falusi CSOK ingatlanok

Eladó családi ház
Eladó családi ház

Tápiógyörgye

32 M Ft
3 szoba
86 m2
Eladó családi ház
Eladó családi ház

Bócsa

68 M Ft
3 szoba
100 m2
Eladó családi ház
Eladó családi ház

Vaskút

64 M Ft
5 szoba
180 m2
Eladó családi ház
Eladó családi ház

Sükösd

18.5 M Ft
3 szoba
89 m2
Eladó családi ház
Eladó családi ház

Ceglédbercel, Iskola utca

79.99 M Ft
5 szoba
90 m2
Eladó családi ház
Eladó családi ház

Nagyberény

23.9 M Ft
3 szoba
69 m2
Eladó családi ház
Eladó családi ház

Vilonya

71.9 M Ft
5 szoba
105 m2
Eladó családi ház
Eladó családi ház

Galgahévíz

188 M Ft
4 szoba
125 m2