City Pearl

Eladó ikerház
Siófok

+ 12 kép 1/15
125 000 000 Ft125 M Ft 664 894 Ft/m2
5 + 1 szoba
188 m2
építés éve:1985

Részletes adatok

Telekméret: 469 m2
Fűtés: Gázkonvektor
Energetikai besorolás: Nem adta meg a hirdető

Az OTP Bank lakáshitel ajánlataFizetett hirdetés

+36 70 942
Kalmár Edit Virág
Szeged Széchenyi tér 6 - OTP Ingatlanpont Iroda

Érdekel az OTP Bank kedvezményes lakáshitel ajánlata? *

* A kérdésre „Igen” válasz bejelölése esetén, az „Üzenet küldése” gombra kattintva kijelentem, hogy az OTP Bank Nyrt. Adatkezelési tájékoztatójának tartalmát megismertem és tudomásul vettem.

Eladó ikerház leírása

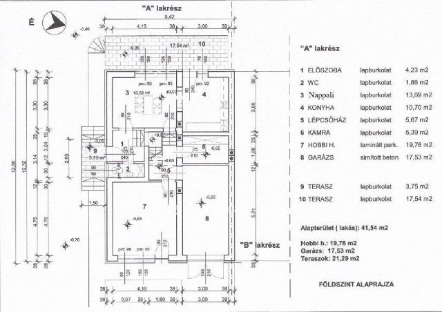
Siófok csendes kertvárosi részén 188,9 m2-es kertes ikerház egyik fele 469 m2-es telekkel eladó. Az ingatlan 1985-ben épült téglából. A nyílászárókat már műanyagra cserélték. A ház külső 12 cm-es grafitos, a tető pedig üveggyapot szigetelést kapott. A fűtés jelenleg gázkonvektor, mika kazán, és hőtárolós gázkazánnal biztosított, de a tulajdonosok a földszinten egy kályhát is meghagytak. A vízvezeték a földszint és az első szint között már részben cserélve lett amikor a fürdőszoba felújításra került. Az ingatlan remek elosztású, szinteltolásos, a belső lépcsőház akár könnyedén külön bejáratúvá is tehető. Az félszuterén szinten egy 17,5 m2-es garázs, kamra és egy tágas hobbi helyiség található, mely funkcióját tekintve számos lehetőséget rejt magában. A földszinten előszoba, amerikai konyhás nappali, WC. Az első félszinten egy tároló, mely korábban vagy akár újabban konyha és egy szoba, a második és harmadik szinten pedig 2-2 tágas nagy szoba, fürdőszoba és külön elszeparálva WC található. Egész nap gyönyörű napsütés árad be, mely még világosabbá, nagyobbá, és melegebbé teszi a tereket. Az ingatlanhoz tartozik továbbá az épület mögött található 75 m2-es gazdasági épület fele, mely egy előtér, fürdő, WC, konyha és kamra helyiségekből áll. A telek szépen füvesített, a nyári rekkenő hőségben egy hatalmas mandula fa ad árnyékot. Az ingatlan értékét tovább növeli az elhelyezkedése, 100 méteren belül bevásárlóközpontok, benzinkutak. Kiváló befektetési lehetőség akár nyaraltatás, akár állandó lakhatás céljából. Családok számára is a legjobb választás, hatalmas élettér, udvar, azonnal költözhető, tehermentes. Siófok belvárosa mindösszesen 5 perc-15 autóút, a biciklizni vágyók számára pedig végig kiépített bicikli út a Balaton-partig.
Irodánk az ingatlanközvetítés mellett pénzügyi finanszírozás és biztosítási igényekben is rendelkezésre áll. További információkért kérem keressen telefonon a hét bármely napján!
M299192

Hirdetés feltöltve: 2025. 11. 25. Utoljára módosítva: 2025. 11. 25.

Az ingatlan elhelyezkedése

Cím: Siófok

Eladó ikerházak a környékről

Eladó ikerház
Eladó ikerház

Siófok

96 M Ft
6 szoba
122 m2
Eladó ikerház
Eladó ikerház

Siófok

119.9 M Ft
3 + 1 szoba
148 m2
Eladó ikerház
Eladó ikerház

Siófok

250 M Ft
8 szoba
100 m2
Eladó ikerház
Eladó ikerház

Balatonföldvár

117.5 M Ft
3 szoba
94 m2
Eladó ikerház
Eladó ikerház

Balatonszárszó

169.9 M Ft
5 szoba
167 m2
Eladó ikerház
Eladó ikerház

Siófok

199.99 M Ft
4 + 1 szoba
152 m2
Eladó ikerház
Eladó ikerház

Siófok

159.99 M Ft
5 szoba
122 m2
Eladó ikerház
Eladó ikerház

Siófok

220 M Ft
6 szoba
200 m2
Eladó ikerház
Eladó ikerház

Kaposvár

35.9 M Ft
2 szoba
60 m2
Eladó ikerház
Eladó ikerház

Balatonfenyves, Dér utca

37.9 M Ft
3 szoba
45 m2
Eladó ikerház
Eladó ikerház

Balatonföldvár

223 M Ft
2 + 2 szoba
184 m2
Eladó ikerház
Eladó ikerház

Siófok

169 M Ft
12 szoba
240 m2
Eladó ikerház
Eladó ikerház

Siófok

165.13 M Ft
3 szoba
118 m2
Eladó ikerház
Eladó ikerház

Balatonszárszó

79.9 M Ft
7 szoba
133 m2
Eladó ikerház
Eladó ikerház

Kaposvár

39.9 M Ft
4 szoba
206 m2
Eladó ikerház
Eladó ikerház

Siófok

250 M Ft
8 szoba
300 m2
Eladó ikerház
Eladó ikerház

Siófok

165.131 M Ft
3 szoba
118 m2
Eladó ikerház
Eladó ikerház

Siófok

165.131 M Ft
3 szoba
118 m2
Eladó ikerház
Eladó ikerház

Siófok

165.13 M Ft
3 szoba
118 m2
Eladó ikerház
Eladó ikerház

Siófok

220 M Ft
5 szoba
130 m2
Eladó ikerház
Eladó ikerház

Balatonszárszó

139.9 M Ft
5 szoba
170 m2
Eladó ikerház
Eladó ikerház

Siófok

159.99 M Ft
5 szoba
122 m2
Eladó ikerház
Eladó ikerház

Siófok

169 M Ft
12 szoba
240 m2
Eladó ikerház
Eladó ikerház

Balatonfenyves

135 M Ft
4 szoba
104 m2

Falusi CSOK ingatlanok

Eladó családi ház
Eladó családi ház

Szabadbattyán

136 M Ft
5 szoba
226 m2
Eladó családi ház
Eladó családi ház

Mocsa

24.9 M Ft
2 + 1 szoba
53 m2
Eladó családi ház
Eladó családi ház

Nyírtura

74.9 M Ft
3 szoba
120 m2
Eladó családi ház
Eladó családi ház

Ónod, Barátság 9

31.999 M Ft
3 szoba
150 m2
Eladó családi ház
Eladó családi ház

Abaújszántó

19.99 M Ft
3 szoba
84 m2
Eladó családi ház
Eladó családi ház

Gyömöre

45.99 M Ft
2 szoba
118 m2
Eladó családi ház
Eladó családi ház

Jászkarajenő

19.9 M Ft
3 szoba
81 m2
Eladó családi ház
Eladó családi ház

Törtel, Kőrösi út 101

22.21 M Ft
2 szoba
117 m2