City Pearl

Eladó ikerház
Siófok

+ 12 kép 1/15
145 900 000 Ft145.9 M Ft 985 811 Ft/m2
5 szoba
148 m2
építés éve:2025

Részletes adatok

Telekméret: 300 m2
Fűtés: Egyéb
Energetikai besorolás: Nem adta meg a hirdető

Az OTP Bank lakáshitel ajánlataFizetett hirdetés

+36 20 938
Vincze László György
OTPIP - Pécs, Rákóczi út 19.

Érdekel az OTP Bank kedvezményes lakáshitel ajánlata? *

* A kérdésre „Igen” válasz bejelölése esetén, az „Üzenet küldése” gombra kattintva kijelentem, hogy az OTP Bank Nyrt. Adatkezelési tájékoztatójának tartalmát megismertem és tudomásul vettem.

Eladó ikerház leírása

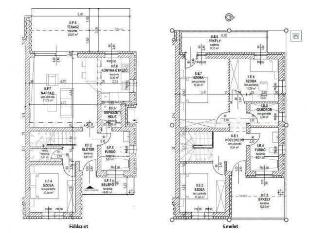
Balaton Déli part, Siófok, 149 m2 ikerház, 300 m2 telek eladó. A két szintes ingatlan a település Fokihegy új építésű, kertvárosias lakóövezetében helyezkedik el, csendes, nyugodt környezetben. A most épült ház összközműves, fűtése hőszivattyús padlófűtéssel megoldott, amit 2 fan-coil egészít ki. A 126 m2-es lakóteret összesen 46 m2-rel terasz és erkélyek egészítik ki. A szigetelt, 3 rétegű nyílászárókkal ellátott ház igény esetén elektromos redőnnyel, szúnyoghálóval, beépített konyhabútorral is felszerelhető felár ellenében. A belső burkolatok még választhatók. Iskola, óvoda, buszmegálló, egészségügyi intézmény, bevásárlóközpont, szabadstrand kb. 1,5-2 km távolságra. Kiváló lehetőség állandó lakhatásra vagy nyaralásra, befektetésként kiadásra is. Bővebb információért keressen telefonon! M312432

145900000 Ft

Referencia szám: M312432

Hirdetés feltöltve: 2025. 09. 16. Utoljára módosítva: 2025. 12. 10.

5 szobás ikerházak ára Siófokon

Ebből az összehasonlításból megtudhatod, hogyan viszonyul a lakás ára a környékbeli ikerházak átlagos árához. Ez nem azt jelenti, hogy ennyivel olcsóbb vagy drágább, mint amennyit a lakás ér, hanem hogy ennyivel tér el a környékbeli átlagtól.

Ennek a m² ára
Siófok m² ár
986 e Ft
1080 e Ft 9%
Ennek az ára
Siófok átlagár
145.9 M Ft m Ft
154.7 m Ft 6%

Az ingatlan elhelyezkedése

Cím: Siófok

Eladó ikerházak a környékről

Eladó ikerház
Eladó ikerház

Siófok

62 M Ft
3 szoba
58 m2
Eladó ikerház
Eladó ikerház

Siófok

98 M Ft
5 szoba
98 m2
Eladó ikerház
Eladó ikerház

Siófok

165.131 M Ft
3 szoba
118 m2
Eladó ikerház
Eladó ikerház

Siófok

169 M Ft
12 szoba
240 m2
Eladó ikerház
Eladó ikerház

Balatonfenyves

45.9 M Ft
2 szoba
55 m2
Eladó ikerház
Eladó ikerház

Siófok

165.131 M Ft
3 szoba
118 m2
Eladó ikerház
Eladó ikerház

Lengyeltóti, Ifjúság utca

69 M Ft
3 + 2 szoba
266 m2
Eladó ikerház
Eladó ikerház

Balatonföldvár

223 M Ft
2 + 2 szoba
184 m2
Eladó ikerház
Eladó ikerház

Siófok

103.9 M Ft
4 szoba
91 m2
Eladó ikerház
Eladó ikerház

Siófok

62 M Ft
3 szoba
58 m2
Eladó ikerház
Eladó ikerház

Siófok

165.397 M Ft
3 szoba
122 m2
Eladó ikerház
Eladó ikerház

Siófok

250 M Ft
8 szoba
300 m2
Eladó ikerház
Eladó ikerház

Balatonberény

128 M Ft
3 + 1 szoba
121 m2
Eladó ikerház
Eladó ikerház

Siófok

159.99 M Ft
5 szoba
122 m2
Eladó ikerház
Eladó ikerház

Balatonfenyves, Dér utca

37.9 M Ft
3 szoba
45 m2
Eladó ikerház
Eladó ikerház

Siófok

250 M Ft
8 szoba
300 m2
Eladó ikerház
Eladó ikerház

Siófok

114.94 M Ft
3 szoba
123 m2
Eladó ikerház
Eladó ikerház

Siófok

159.99 M Ft
5 szoba
128 m2
Eladó ikerház
Eladó ikerház

Kaposvár

39.9 M Ft
4 szoba
206 m2
Eladó ikerház
Eladó ikerház

Siófok

96 M Ft
6 szoba
122 m2
Eladó ikerház
Eladó ikerház

Siófok

219.99 M Ft
4 + 1 szoba
152 m2
Eladó ikerház
Eladó ikerház

Siófok

96 M Ft
6 szoba
122 m2
Eladó ikerház
Eladó ikerház

Siófok

165.13 M Ft
3 szoba
118 m2
Eladó ikerház
Eladó ikerház

Siófok

126 M Ft
3 szoba
105 m2

Falusi CSOK ingatlanok

Eladó családi ház
Eladó családi ház

Sellye

43 M Ft
5 szoba
150 m2
Eladó családi ház
Eladó családi ház

Újszilvás

39.5 M Ft
3 szoba
62 m2
Eladó téglalakás
Eladó téglalakás

Nagyharsány

22.5 M Ft
3 szoba
71 m2
Eladó családi ház
Eladó családi ház

Olaszfa

39.9 M Ft
4 szoba
96 m2
Eladó családi ház
Eladó családi ház

Nagysáp

34.9 M Ft
3 szoba
126 m2
Eladó családi ház
Eladó családi ház

Elek

88.9 M Ft
5 szoba
274 m2
Eladó családi ház
Eladó családi ház

Ősi

64.9 M Ft
4 szoba
181 m2
Eladó téglalakás
Eladó téglalakás

Balatonszemes

119.9 M Ft
2 szoba
81 m2