City Pearl

Eladó ikerház
Seregélyes

Figyelem!

Ez az ingatlan a 2019.07.01-től induló falusi CSOK által támogatott településen található

+ 17 kép 1/20
94 900 000 Ft94.9 M Ft 886 916 Ft/m2
4 szoba
107 m2
építés éve:2024

Részletes adatok

Telekméret: 470 m2
Fűtés: Egyéb
Energetikai besorolás: Nem adta meg a hirdető

Az OTP Bank lakáshitel ajánlataFizetett hirdetés

+36 20 236
Rapai Klaudia
referens

Érdekel az OTP Bank kedvezményes lakáshitel ajánlata? *

* A kérdésre „Igen” válasz bejelölése esetén, az „Üzenet küldése” gombra kattintva kijelentem, hogy az OTP Bank Nyrt. Adatkezelési tájékoztatójának tartalmát megismertem és tudomásul vettem.

Eladó ikerház leírása

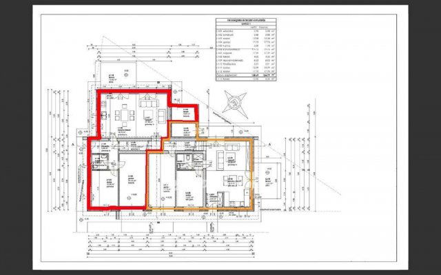
Fejér megye, Seregélyes 107 nm-es új építésű ikerház 1-es lakása eladó. Az ingatlan kulcsrakész állapotban 2025. október végén kerül átadásra. A belső kétszintes 107 nm hasznos alapterületű ingatlanhoz 470nm-es saját kert, 17,73 nm-es garázs, ezenfelül két autó számára kocsibeálló, 4 nm-es tároló és 12 nm-es terasz tartozik. A lakóegységek a garázsnál csatlakoznak. A meghirdetett ingatlan az alaprajzon a pirossal jelölt. A tégla (B30) építésű, szigetelt ingatlanban tágas amerikai konyhás nappali, 3 szoba, 2 fürdőszoba és kamra található. Beszerelésre került az új és modern konyhabútor és az előszoba bútor is. Az ikerház 15 cm-es külső, a födém 25 cm-es szigetelést kapott. A külső nyílászárók 3 rétegű műanyagok elektromos redőnnyel és szúnyoghálóval felszereltek. A házban még minden belső falszín választható. Fűtése környezetbarát,energiatakarékos hőszivattyús rendszer, padlófűtéses hőleadással, valamint minden hálószobába és a nappaliba hűtő fűtő klíma kerül. A vételár tartalmazza a külső-belső vakolást, külső-belső ablakpárkányokat, belső fehér készre festést, villany alapszerelést, padlófűtést, gépészeti alapszereléseket, az elektromos kaput, kerítést, a riasztó és a kamera rendszert, konyhabútort, előszobabútort, belső dekorfóliás ajtókat tokkal, kilinccsel, kapcsolók és dugaljakat, burkolást, szanitereket, alumínium redőnyöket,térkövezést, tereprendezést, parkosítást és a füvesítést is. A meghirdetett ingatlan az alaprajzon a pirossal jelölt.Jól átgondolt, élhető terekkel megálmodott, a legújabb rendszerek felhasználásával készülő ingatlan megvásárlásával egyszerre teremthet egy igényes, stílusos és barátságos otthont. Teljes körű ügyintézésben segítjük ügyfeleinket díjtalanul: Falusi CSOK, CSOK igénylése, kedvezményes hitel mobil bankári szolgáltatással, adásvétel teljes lebonyolításával. Bővebb információkért, kérem keressen bizalommal, akár hétvégén is.

Hirdetés feltöltve: 2025. 10. 25. Utoljára módosítva: 2025. 12. 01.

Az ingatlan elhelyezkedése

Cím: Seregélyes

Eladó ingatlanok a környékről

Eladó családi ház
Eladó családi ház

Sárszentmihály

57.9 M Ft
3 + 3 szoba
187 m2
Eladó ikerház
Eladó ikerház

Székesfehérvár

38 M Ft
2 szoba
46 m2
Eladó ikerház
Eladó ikerház

Ercsi

69.9 M Ft
3 szoba
93 m2
Eladó családi ház
Eladó családi ház

Sáregres, Széchenyi István utca

18 M Ft
3 szoba
60 m2
Eladó ikerház
Eladó ikerház

Tordas, Gyúrói út

119.9 M Ft
4 szoba
134 m2
Eladó panellakás
Eladó panellakás

Székesfehérvár

49.9 M Ft
2 szoba
52 m2
Eladó telek
Eladó telek

Mány, Háromrózsapuszta

4.7 M Ft
1600 m²
1600 m2
Eladó családi ház
Eladó családi ház

Seregélyes

149.9 M Ft
5 szoba
307 m2
Eladó családi ház
Eladó családi ház

Székesfehérvár

72.2 M Ft
5 szoba
138 m2
Eladó családi ház
Eladó családi ház

Nagyvenyim

90 M Ft
3 szoba
382 m2
Eladó családi ház
Eladó családi ház

Szabadegyháza

68.5 M Ft
1 + 3 szoba
98 m2
Eladó családi ház
Eladó családi ház

Iszkaszentgyörgy

88.5 M Ft
5 szoba
122 m2
Eladó családi ház
Eladó családi ház

Ercsi

42.9 M Ft
3 szoba
136 m2
Eladó panellakás
Eladó panellakás

Székesfehérvár

63 M Ft
3 szoba
62 m2
Eladó panellakás
Eladó panellakás

Dunaújváros, Alkotás

32.9 M Ft
2 szoba
53 m2
Eladó ikerház
Eladó ikerház

Adony

69.9 M Ft
3 szoba
97 m2
Eladó ikerház
Eladó ikerház

Fehérvárcsurgó

69.9 M Ft
5 szoba
114 m2
Eladó ikerház
Eladó ikerház

Székesfehérvár

119.5 M Ft
4 szoba
176 m2
Eladó ikerház
Eladó ikerház

Ercsi

51.99 M Ft
3 szoba
77 m2
Eladó ikerház
Eladó ikerház

Ercsi

65 M Ft
4 szoba
101 m2
Eladó panellakás
Eladó panellakás

Dunaújváros, Táncsics Mihály

36.9 M Ft
2 szoba
59 m2
Eladó ikerház
Eladó ikerház

Velence

74.9 M Ft
5 szoba
95 m2
Eladó telek
Eladó telek

Gárdony

6096 M Ft
153983 m²
Eladó telek
Eladó telek

Bicske

14 M Ft
3085 m²

Falusi CSOK ingatlanok

Eladó családi ház
Eladó családi ház

Vácszentlászló

45 M Ft
4 szoba
100 m2
Eladó családi ház
Eladó családi ház

Zalalövő

34.99 M Ft
3 szoba
110 m2
Eladó családi ház
Eladó családi ház

Tápióság

17 M Ft
1 szoba
44 m2
Eladó családi ház
Eladó családi ház

Olaszfa

70.38 M Ft
3 szoba
139 m2
Eladó családi ház
Eladó családi ház

Galgagyörk

69.9 M Ft
3 szoba
110 m2
Eladó családi ház
Eladó családi ház

Tömörkény

8.9 M Ft
2 szoba
80 m2
Eladó családi ház
Eladó családi ház

Balatonszárszó

56.5 M Ft
3 szoba
60 m2
Eladó családi ház
Eladó családi ház

Dunaszentbenedek

24.9 M Ft
2 szoba
85 m2

Falusi CSOK ingatlanok

Eladó családi ház
Eladó családi ház

Dunaszekcső

27.5 M Ft
3 szoba
128 m2
Eladó családi ház
Eladó családi ház

Kenyeri

21.8 M Ft
2 szoba
75 m2
Eladó családi ház
Eladó családi ház

Kondorfa, Alvég utca

34.9 M Ft
1 + 1 szoba
67 m2
Eladó családi ház
Eladó családi ház

Vásárosdombó

14.99 M Ft
2 szoba
69 m2
Eladó családi ház
Eladó családi ház

Törtel

18 M Ft
6 szoba
188 m2
Eladó családi ház
Eladó családi ház

Abaújszántó

19.99 M Ft
3 szoba
84 m2
Eladó családi ház
Eladó családi ház

Győrság

86.9 M Ft
4 szoba
92 m2
Eladó családi ház
Eladó családi ház

Pétfürdő

44.9 M Ft
2 szoba
75 m2