Avico Greentop

Eladó ikerház
Sárospatak, Hunyadi utca

+ 11 kép 1/14
63 700 000 Ft63.7 M Ft 337 037 Ft/m2
4 szoba
189 m2
építés éve:1985

Részletes adatok

Állapot: Felújított
Telekméret: 903 m2
Fűtés: Gázkazán
Közmű: Víz, Gáz, Villany, Csatorna, Szélessáv, KábelTV
Energetikai besorolás: Nem adta meg a hirdető

Az OTP Bank lakáshitel ajánlataFizetett hirdetés

+367043981
Ács Ferenc
OTP IP Miskolc Corvin 1-3

Érdekel az OTP Bank kedvezményes lakáshitel ajánlata? *

* A kérdésre „Igen” válasz bejelölése esetén, az „Üzenet küldése” gombra kattintva kijelentem, hogy az OTP Bank Nyrt. Adatkezelési tájékoztatójának tartalmát megismertem és tudomásul vettem.

Eladó ikerház leírása

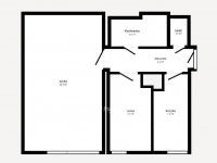
B.-A.-Z. Vármegye egyik legszebb városában, Sárospatak csendes bevárosi részén, családi társasház eladó. A lakóingatlanok alapterülete: 101 m2, és 88 m2 amely egy 903 m2-es teleken épültek. Az épület erős alapokat kapott. Falazata téglából és gázszilikátból készült. Tetőszerkezete nagyon jó állapotban van, amely cserépfedést kapott. A nyílászárói kapcsolt gerébtokos és hőszigetelt üvegezésű műanyag ablakok, fa és műanyag szerkezetű ajtók. A szobák parketta, laminált padló, a többi helyiség járólappal borított. A konyhák, fürdőszobák, wc falazata csempézett. Az épület melegéről gázkazán és vegyestüzelésű kazán gondoskodik, a hőleadást radiátorok biztosítják. A melegvízellátás villanybojler és gázkazánról történik. A két épületet fedett terasz köti össze. A fő épülethez melléképületek kapcsolódnak. Kazánház, garázs. Összes alapterületük 49 m2. A ház alatt pince lett kialakítva, ami bor, zöldség, gyümölcs tárolására egyaránt alkalmas. Az udvar tiszta, virágos, rendezett. A kert mindenféle haszonnövény termesztésére alkalmas. A város fontos kulturális központ, egyetem város, iskola város, történelmi település és népszerű turisztikai célpont is egyben. Minden korosztálynak ajánlom, aki szereti a jó levegőt, tiszta, nyugodt környezetet. Az ingatlan frekventált elhelyezkedéséből adódóan a közintézmények, boltok, stb..., rövid időn belül megközelíthető. Ha az ingatlan felkeltette érdeklődését, kérem az M271638-as referenciaszámra hivatkozva keressen bizalommal.Telefon: 06 20 293 3110 Sinkó József Ingatlanközvetítő.Irodánk teljeskörű szolgáltatást nyújt ügyfelei számára.Irányár: 63,7M Ft.

Hirdetés feltöltve: 2024. 05. 17. Utoljára módosítva: 2026. 01. 13.

Az ingatlan elhelyezkedése

Cím: Sárospatak, Hunyadi utca

Eladó ingatlanok a környékről

Eladó ikerház
Eladó ikerház

Sajóivánka

37.5 M Ft
3 + 1 szoba
120 m2
Eladó családi ház
Eladó családi ház

Hejőpapi

14.3 M Ft
2 szoba
70 m2
Eladó családi ház
Eladó családi ház

Múcsony, Kossuth Lajos út

21.9 M Ft
3 szoba
82 m2
Eladó ikerház
Eladó ikerház

Sárospatak

63.7 M Ft
4 szoba
189 m2
Eladó ikerház
Eladó ikerház

Miskolc

129 M Ft
5 + 1 szoba
261 m2
Eladó családi ház
Eladó családi ház

Múcsony

37.5 M Ft
4 + 1 szoba
190 m2
Eladó ikerház
Eladó ikerház

Mezőkövesd

108 M Ft
6 szoba
350 m2
Eladó ikerház
Eladó ikerház

Szikszó, Apponyi Albert

46.9 M Ft
4 + 1 szoba
240 m2
Eladó családi ház
Eladó családi ház

Sajóvámos

29.9 M Ft
3 + 1 szoba
76 m2
Eladó ikerház
Eladó ikerház

Sajóivánka

37.5 M Ft
3 + 1 szoba
120 m2
Eladó családi ház
Eladó családi ház

Sajószentpéter

24.9 M Ft
3 szoba
88 m2
Eladó téglalakás
Eladó téglalakás

Miskolc

26.9 M Ft
2 szoba
57 m2
Eladó ikerház
Eladó ikerház

Miskolc

24.9 M Ft
2 szoba
66 m2
Eladó üzlethelyiség
Eladó üzlethelyiség

Múcsony

44.9 M Ft
4 szoba
150 m2
Eladó ikerház
Eladó ikerház

Ózd, Somsály, Rózsadomb út

5.7 M Ft
3 szoba
60 m2
Eladó ikerház
Eladó ikerház

Miskolc

10.5 M Ft
1 szoba
50 m2
Eladó családi ház
Eladó családi ház

Sajószöged

34.9 M Ft
2 szoba
65 m2
Eladó panellakás
Eladó panellakás

Miskolc, Győri kapu, Győri kapu

22.99 M Ft
1 + 1 szoba
35 m2
Eladó ikerház
Eladó ikerház

Sajóivánka

37.5 M Ft
3 + 1 szoba
120 m2
Eladó családi ház
Eladó családi ház

Hernádnémeti, Jókai Mór

10.9 M Ft
2 szoba
62 m2
Eladó családi ház
Eladó családi ház

Szin

14.9 M Ft
2 szoba
75 m2
Eladó ipari ingatlan
Eladó ipari ingatlan

Miskolc

55.9 M Ft
4 + 1 szoba
100 m2
Eladó téglalakás
Eladó téglalakás

Miskolc

31.5 M Ft
2 szoba
51 m2
Eladó ikerház
Eladó ikerház

Sajószentpéter

15.5 M Ft
2 szoba
92 m2

Falusi CSOK ingatlanok

Eladó családi ház
Eladó családi ház

Kenyeri

39.9 M Ft
3 szoba
94 m2
Eladó családi ház
Eladó családi ház

Pécsvárad

79.9 M Ft
4 szoba
100 m2
Eladó családi ház
Eladó családi ház

Balatonkeresztúr, Berek utca

149 M Ft
4 szoba
185 m2
Eladó családi ház
Eladó családi ház

Kengyel

22.9 M Ft
3 szoba
100 m2
Eladó téglalakás
Eladó téglalakás

Balatonszemes

119.9 M Ft
2 szoba
81 m2
Eladó családi ház
Eladó családi ház

Törtel

34.9 M Ft
3 szoba
66 m2
Eladó családi ház
Eladó családi ház

Recsk

59 M Ft
2 szoba
70 m2
Eladó családi ház
Eladó családi ház

Háromfa, Kossuth

22.4 M Ft
139 m2