City Pearl

Eladó ikerház
Sáránd

Figyelem!

Ez az ingatlan a 2019.07.01-től induló falusi CSOK által támogatott településen található

+ 1 kép 1/4
69 900 000 Ft69.9 M Ft 776 667 Ft/m2
3 szoba
90 m2
építés éve:2025

Részletes adatok

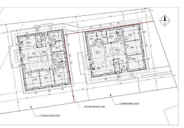
Telekméret: 450 m2
Fűtés: Gázkazán
Energetikai besorolás: Nem adta meg a hirdető

Az OTP Bank lakáshitel ajánlataFizetett hirdetés

+36 30 419
Balla László
OTP Ingatlanpont

Érdekel az OTP Bank kedvezményes lakáshitel ajánlata? *

* A kérdésre „Igen” válasz bejelölése esetén, az „Üzenet küldése” gombra kattintva kijelentem, hogy az OTP Bank Nyrt. Adatkezelési tájékoztatójának tartalmát megismertem és tudomásul vettem.

Eladó ikerház leírása

Sáránd központjában eladó egy ÚJ ÉPÍTÉSŰ 90 m2-es, Nappali + 3 szobás minőségi kivitelezésű földszintes családi ház!!

Az ingatlan elhelyezkedését tekintve, a város egyik leggkedveldtebb környéken , igazán családbarát, csendes utcájában helyezkedik el. Jól megközelíthetősége révén kiváló választást biztosít minden korosztály számára. Mindössze 5 perc sétára található élelmiszerbolt, buszmegálló, orvosi rendelő, új óvoda és bölcsőde.

Ingatlan főbb paraméterei :
- várható átadás 2026. 07. 01
- 550 m2- telek, térkövezet járda és terasz
- Porotherm 30 NF tégla falazat
- betoncserép födém
- 15 cm szigetelés, 30 cm födém szigetelés
- 3 rétegű műanyag nyillászárók
- kondenzációs gázkazán vagy Hőszivattyú , padlófűtés az egész házban
- szobákban laminált parketta, többi helyiségben járólap
- 3 szoba + 2 fürdőszoba wc- vel
- elektromos áram 32 A
- belső ajtók a vevő igényék megfelelő színben kerül beépítésre ( vételár része )

További információért hívjon bizalommal akár hétvégén is. Megtekintésre telefonos egyeztetés alapján van lehetőség. Kedvezményes kamatozású lakásvásárlási és felújítási hitelek az OTP hátterével irodánkban.
Érd.Balla László +36 30 419 5022

Referencia szám: M314797

Hirdetés feltöltve: 2025. 11. 13.

Az ingatlan elhelyezkedése

Cím: Sáránd

Eladó ingatlanok a környékről

Eladó ikerház
Eladó ikerház

Hajdúsámson

79.897 M Ft
5 szoba
145 m2
Eladó családi ház
Eladó családi ház

Mikepércs

129 M Ft
3 + 1 szoba
89 m2
Eladó családi ház
Eladó családi ház

Hajdúszoboszló

228 M Ft
9 + 1 szoba
320 m2
Eladó téglalakás
Eladó téglalakás

Debrecen

64.99 M Ft
2 szoba
60 m2
Eladó ikerház
Eladó ikerház

Debrecen, Tégláskert, Tégláskert utca

73 M Ft
4 szoba
150 m2
Eladó ikerház
Eladó ikerház

Hajdúsámson

82.952 M Ft
5 szoba
145 m2
Eladó iroda
Eladó iroda

Debrecen

69.9 M Ft
2 + 1 szoba
67 m2
Eladó ikerház
Eladó ikerház

Sáránd

69.9 M Ft
3 szoba
90 m2
Eladó sorház
Eladó sorház

Hajdúsámson

40 M Ft
2 szoba
80 m2
Eladó családi ház
Eladó családi ház

Hajdúböszörmény

78.75 M Ft
2 szoba
102 m2
Eladó ikerház
Eladó ikerház

Debrecen

237 M Ft
6 szoba
204 m2
Eladó ikerház
Eladó ikerház

Hajdúsámson

82.475 M Ft
5 szoba
145 m2
Eladó sorház
Eladó sorház

Debrecen

206 M Ft
4 szoba
180 m2
Eladó családi ház
Eladó családi ház

Hencida

24 M Ft
5 szoba
250 m2
Eladó családi ház
Eladó családi ház

Hosszúpályi

48.9 M Ft
3 szoba
85 m2
Eladó családi ház
Eladó családi ház

Hajdúnánás

24 M Ft
2 szoba
65 m2
Eladó családi ház
Eladó családi ház

Kaba

82.99 M Ft
5 szoba
128 m2
Eladó ikerház
Eladó ikerház

Debrecen

237 M Ft
6 szoba
204 m2
Eladó ikerház
Eladó ikerház

Hajdúsámson

81.02 M Ft
5 szoba
145 m2
Eladó ikerház
Eladó ikerház

Debrecen

127.99 M Ft
1 + 3 szoba
136 m2
Eladó ikerház
Eladó ikerház

Debrecen

159 M Ft
3 szoba
143 m2
Eladó nyaraló
Eladó nyaraló

Hajdúszoboszló, Szegfű utca

49.9 M Ft
4 szoba
80 m2
Eladó ikerház
Eladó ikerház

Debrecen

73 M Ft
4 szoba
150 m2
Eladó ikerház
Eladó ikerház

Hajdúsámson

84.975 M Ft
6 szoba
140 m2

Falusi CSOK ingatlanok

Eladó családi ház
Eladó családi ház

Nyékládháza

75 M Ft
4 szoba
140 m2
Eladó családi ház
Eladó családi ház

Mezőfalva

39 M Ft
3 szoba
77 m2
Eladó családi ház
Eladó családi ház

Pécsvárad

140 M Ft
3 szoba
95 m2
Eladó családi ház
Eladó családi ház

Fenyőfő

79 M Ft
2 szoba
150 m2
Eladó családi ház
Eladó családi ház

Kamut

29.9 M Ft
3 szoba
100 m2
Eladó családi ház
Eladó családi ház

Erdősmecske

32 M Ft
3 szoba
115 m2
Eladó családi ház
Eladó családi ház

Tab, Rózsadomb utca

79 M Ft
3 szoba
93 m2
Eladó családi ház
Eladó családi ház

Galgagyörk

69.9 M Ft
3 szoba
110 m2

Falusi CSOK ingatlanok

Eladó családi ház
Eladó családi ház

Cece

23.5 M Ft
2 szoba
56 m2
Eladó családi ház
Eladó családi ház

Magyarszék

48.5 M Ft
3 + 1 szoba
86 m2
Eladó családi ház
Eladó családi ház

Devecser

42.9 M Ft
3 szoba
100 m2
Eladó családi ház
Eladó családi ház

Pétfürdő

65 M Ft
3 szoba
97 m2
Eladó családi ház
Eladó családi ház

Mezőfalva

39 M Ft
3 szoba
77 m2
Eladó családi ház
Eladó családi ház

Eplény

99.9 M Ft
5 szoba
163 m2
Eladó családi ház
Eladó családi ház

Csatár

98.5 M Ft
5 szoba
150 m2
Eladó családi ház
Eladó családi ház

Szigetbecse, Makádi út

49 M Ft
2 szoba
84 m2