Eladó ikerház
Pomáz
Részletes adatok
Az OTP Bank lakáshitel ajánlataFizetett hirdetés
Induló törlesztőrészlet
101 262 Ft /hóTörlesztőrészlet a 13. hónaptól
129 106 Ft /hóInduló törlesztőrészlet
135 016 Ft /hóTörlesztőrészlet a 13. hónaptól
172 142 Ft /hóA tájékoztatás nem teljes körű és nem minősül ajánlattételnek. Az OTP Évnyerő Lakáshitelei 1 éves türelmi idős kölcsönök, amellyel az első 12 hónapban alacsonyabb a havi törlesztőrészlet. A tőke törlesztését a 13. hónaptól kell megkezdeni.

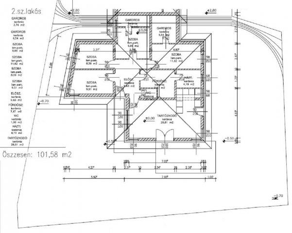
Eladó ikerház leírása
Pomázon a Meselia déli oldalában, csendes környezetben 340 nm-es saját, kizárólagos használatú kerttel rendelkező, egy szintes, nappali + 4 hálószobás ikerház-fél eladó.
Az építéssel kapcsolatos paraméterek:
- Tervezett átadás: szerződés kötéstől számított egy éven belül
- hőszivattyús fűtés, padlófűtéssel, radiátorokkal
- magas minőségű hőszigetelés, ZÖLD hitelnek megfelelő energetikai besorolás
- több rétegű, műanyag nyílászárók
- választható belső burkolatok, szaniterek
- riasztó rendszer előkészítés
- 30 nm-es, az amerikai konyhás nappalihoz kapcsolódó terasz
- durva tereprendezés
- kulcsrakész átadás
Finanszírozási lehetőség:
- Zöld hitel kompatibilitás
- CSOK (10+15M) hitel, illeték mentesség, Áfa visszatérítés igényelhető.
- Az alaprajz igény szerint még módosítható.
A beruházó a környék elismert építési vállalkozója, rengeteg referenciamunkával rendelkezik.
Hirdetés feltöltve: 2025. 10. 15.
5 szobás ikerházak ára Pomázon
Ebből az összehasonlításból megtudhatod, hogyan viszonyul a lakás ára a környékbeli ikerházak átlagos árához. Ez nem azt jelenti, hogy ennyivel olcsóbb vagy drágább, mint amennyit a lakás ér, hanem hogy ennyivel tér el a környékbeli átlagtól.
Az ingatlan elhelyezkedése
Cím: Pomáz