Metrodom

Eladó ikerház
Pilis

+ 3 kép 1/6
68 000 000 Ft68 M Ft 755 556 Ft/m2
4 szoba
90 m²
építés éve:2025

Részletes adatok

Telekméret: 494 m2
Fűtés: Egyéb
Energetikai besorolás: Nem adta meg a hirdető

Az OTP Bank lakáshitel ajánlataFizetett hirdetés

3629769723
Majzikné Tóth Krisztina
referens

Érdekel az OTP Bank kedvezményes lakáshitel ajánlata? *

* A kérdésre „Igen” válasz bejelölése esetén, az „Üzenet küldése” gombra kattintva kijelentem, hogy az OTP Bank Nyrt. Adatkezelési tájékoztatójának tartalmát megismertem és tudomásul vettem.

Eladó ikerház leírása

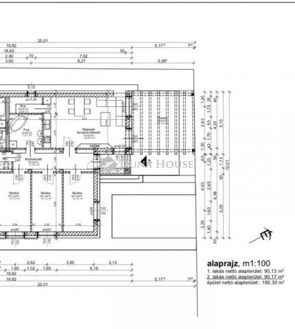
Pilisen eladó egy új építésű, 4 szobás ikerház, mely 90 m2-es alapterületével és kiváló elosztásával ideális otthon családok számára.

Az ingatlanban három tágas hálószoba, egy nagy nappali-konyha-étkező egyben, fürdőszoba, külön WC, kamra, valamint egy 27 m2-es fedett terasz található, ahol kellemesen eltöltheti szabadidejét.

A 494 m2-es telken egy különálló épület is helyet kapott, amely lakhatásra vagy akár irodai célra is alkalmas.

A ház fűtését korszerű hőszivattyú biztosítja, továbbá klímaberendezéssel felszerelt. A belső burkolatok még választhatók, így Ön alakíthatja ízlése szerint az otthonát.

Az ingatlan várható átadása 2 hónapon belül megtörténik.

A környék csendes és családbarát, iskola, óvoda, valamint üzletek csupán pár perc sétára találhatók. Az M4-es autópálya és a 4-es főút könnyen, 3 perc alatt elérhető, Budapest pedig mindössze 25 perc autóútra van.

Amennyiben felkeltette érdeklődését, kérem, keressen bizalommal!
Érd.: Majzikné Tóth Krisztina, tel.: +36/20 927 3299, e-mail: majzikne.krisztina@dh.hu

Referencia szám: HZ057682

Hirdetés feltöltve: 2026. 02. 22. Utoljára módosítva: 2026. 03. 24.

Az ingatlan elhelyezkedése

Cím: Pilis

Eladó ingatlanok a környékről

Pilis
Eladó ikerház

Pilis

66.33 M Ft
3 szoba
78 m²
Vác
Eladó ikerház

Vác

99.7 M Ft
4 + 1 szoba
129 m²
Csévharaszt
Eladó családi ház

Csévharaszt

89.9 M Ft
4 szoba
113 m²
Pécel
Eladó ikerház

Pécel

88.378 M Ft
4 szoba
172 m²
Gyál
Eladó családi ház

Gyál

116 M Ft
6 szoba
177 m²
Vecsés
Eladó családi ház

Vecsés

88 M Ft
5 szoba
121 m²
Pilis
Eladó ikerház

Pilis

64.5 M Ft
3 szoba
73 m²
Jászkarajenő
Eladó családi ház

Jászkarajenő

79.8 M Ft
3 szoba
94 m²
Pécel
Eladó ikerház

Pécel

149.9 M Ft
5 szoba
306 m²
Pilis, Nincs utca
Eladó ikerház

Pilis

34.5 M Ft
2 szoba
66 m²
Pilis
Eladó ikerház

Pilis

66.33 M Ft
3 szoba
78 m²
Pilis
Eladó ikerház

Pilis

68 M Ft
4 szoba
90 m²
Pilis
Eladó ikerház

Pilis

68 M Ft
4 szoba
90 m²
Mogyoród
Eladó ikerház

Mogyoród

135 M Ft
5 szoba
137 m²
Herceghalom
Eladó ikerház

Herceghalom

135 M Ft
5 szoba
134 m²
Úri
Eladó családi ház

Úri

260 M Ft
5 + 3 szoba
773 m²
Szentendre
Eladó ikerház

Szentendre

179 M Ft
5 + 1 szoba
147 m²
Nagytarcsa
Eladó ikerház

Nagytarcsa

119.9 M Ft
4 szoba
103 m²
Diósd
Eladó ikerház

Diósd

89.9 M Ft
4 + 1 szoba
106 m²
Vácrátót
Eladó ikerház

Vácrátót

94.9 M Ft
2 + 3 szoba
108 m²
Diósd
Eladó ikerház

Diósd

109.9 M Ft
8 + 2 szoba
219 m²
Gyál
Eladó telek

Gyál

49 M Ft
705 m²
0 m²
Dunavarsány
Eladó családi ház

Dunavarsány

88 M Ft
3 szoba
108 m²
Szentendre
Eladó ikerház

Szentendre

359 M Ft
5 + 1 szoba
289 m²

Falusi CSOK ingatlanok

Szigetcsép
Eladó családi ház

Szigetcsép

35 M Ft
3 szoba
92 m²
Szűr
Eladó családi ház

Szűr

12 M Ft
3 szoba
68 m²
Újlengyel, Hernádi dűlő
Eladó sorház

Újlengyel

64 M Ft
3 szoba
75 m²
Taszár
Eladó családi ház

Taszár

82 M Ft
3 + 1 szoba
160 m²
Táborfalva
Eladó családi ház

Táborfalva

36.9 M Ft
1 + 2 szoba
89 m²
Szőlősgyörök
Eladó családi ház

Szőlősgyörök

29.9 M Ft
3 szoba
85 m²
Jakabszállás, Arany János utca 22
Eladó családi ház

Jakabszállás

24.05 M Ft
4 szoba
103 m²
Bernecebaráti
Eladó családi ház

Bernecebaráti

86 M Ft
4 szoba
95 m²