Astora Art House

Eladó ikerház
Orfű

+ 4 kép 1/7
115 000 000 Ft115 M Ft 821 429 Ft/m2
2 + 2 szoba
140 m2
építés éve:2024

Részletes adatok

Telekméret: 1054 m2
Fűtés: Gázkazán
Energetikai besorolás: Nem adta meg a hirdető

Az OTP Bank lakáshitel ajánlataFizetett hirdetés

+36 30 276
Maratné Mészáros Edit
OTPIP - Pécs, Rákóczi út 19.

Érdekel az OTP Bank kedvezményes lakáshitel ajánlata? *

* A kérdésre „Igen” válasz bejelölése esetén, az „Üzenet küldése” gombra kattintva kijelentem, hogy az OTP Bank Nyrt. Adatkezelési tájékoztatójának tartalmát megismertem és tudomásul vettem.

Eladó ikerház leírása

Baranya vármegyében, a Mecsek lábánál, Orfűn, a Kistó közelében, új építésű, ikerház lakásai eladók!
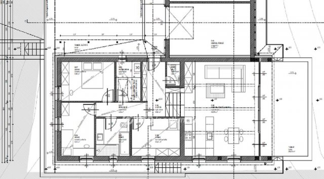
A domboldal csendes utcájában, 1054 m2-es összközműves körbe kerített telken, 101 m2 lakóterű egy szintes lakás várhatóan augusztusban kerül átadásra. A lakáshoz egy 25 m2-es önálló garázs is tartozik, illetve a 29 m2-es terasz kapcsolódik az amerikai konyhás étkező-nappalihoz. 3 hálószoba, egy fürdő wc-vel, külön wc, és egy mosókonyha került még kialakításra. A helyiségek elrendezése, mérete az alaprajzon látható.
Fűtés, meleg víz gázkazánnal, radiátorokkal lesz megoldva.
A lakásoknak nincs közös fala, a két lakás között a két garász helyezkedik el.
Az ár magába foglalja a beépített fürdőszoba és konyhabútorokat, beépített gépeket, szanitereket, hideg-meleg burkolatokat. Önnek csak a bútorait kell hozni, az ingatlan költözhető állapotban, 2024. augusztusban kerül átadásra!
Az ingatlan elhelyezkedése és kialakítása alapján nyugodt, kényelmes lakhatást biztosít, de befektetést keresőknek is kiválóan alkalmas.
Az ikerház másik felével együtt is megvásárolható!
Várom jelentkezését, keressen mielőbb!
Referenciaszám: 266161

Referencia szám: M266161-ZE

Hirdetés feltöltve: 2024. 01. 18. Utoljára módosítva: 2025. 11. 02.

Az ingatlan elhelyezkedése

Cím: Orfű

Eladó ingatlanok a környékről

Eladó ikerház
Eladó ikerház

Orfű

115 M Ft
2 + 2 szoba
140 m2
Eladó ikerház
Eladó ikerház

Siklós

70 M Ft
5 szoba
201 m2
Eladó ikerház
Eladó ikerház

Pogány, Móricz Zsigmond utca

80.4 M Ft
3 szoba
80 m2
Eladó ikerház
Eladó ikerház

Orfű

115 M Ft
2 + 2 szoba
140 m2
Eladó ikerház
Eladó ikerház

Pécs

55 M Ft
4 szoba
132 m2
Eladó ikerház
Eladó ikerház

Kozármisleny, Fecske utca

94 M Ft
4 szoba
105 m2
Eladó panellakás
Eladó panellakás

Pécs, Kertváros, Tildy Zoltán utca

49.99 M Ft
2 szoba
54 m2
Eladó ikerház
Eladó ikerház

Orfű

115 M Ft
2 + 2 szoba
140 m2
Eladó panellakás
Eladó panellakás

Pécs, Makár, Páfrány utca

56.5 M Ft
2 szoba
54 m2
Eladó családi ház
Eladó családi ház

Pécs

44.9 M Ft
3 szoba
97 m2
Eladó ikerház
Eladó ikerház

Orfű

115 M Ft
2 + 2 szoba
140 m2
Eladó panellakás
Eladó panellakás

Pécs, Uránváros, Esztergár Lajos utca

63.5 M Ft
2 szoba
66 m2
Eladó ikerház
Eladó ikerház

Kozármisleny

109 M Ft
4 szoba
136 m2
Eladó ikerház
Eladó ikerház

Orfű

34.99 M Ft
3 szoba
100 m2
Eladó ikerház
Eladó ikerház

Orfű

115 M Ft
2 + 2 szoba
140 m2
Eladó ikerház
Eladó ikerház

Orfű

115 M Ft
2 + 2 szoba
140 m2
Eladó ikerház
Eladó ikerház

Orfű

34.99 M Ft
3 szoba
82 m2
Eladó ikerház
Eladó ikerház

Kozármisleny

109 M Ft
4 szoba
139 m2
Eladó ikerház
Eladó ikerház

Komló, Kossuth akna utca

100 M Ft
8 szoba
220 m2
Eladó családi ház
Eladó családi ház

Geresdlak

44.9 M Ft
4 + 1 szoba
200 m2
Eladó ikerház
Eladó ikerház

Orfű

115 M Ft
2 + 2 szoba
140 m2
Eladó ikerház
Eladó ikerház

Pécs

179 M Ft
4 szoba
147 m2
Eladó téglalakás
Eladó téglalakás

Pécs

119 M Ft
3 szoba
72 m2
Eladó ikerház
Eladó ikerház

Pogány, Móricz Zsigmond utca

80.4 M Ft
3 szoba
80 m2

Falusi CSOK ingatlanok

Eladó családi ház
Eladó családi ház

Kislőd

53.2 M Ft
3 szoba
86 m2
Eladó családi ház
Eladó családi ház

Dág, Petőfi Sándor utca

36.9 M Ft
4 szoba
105 m2
Eladó családi ház
Eladó családi ház

Balatonkenese

69.5 M Ft
5 szoba
125 m2
Eladó családi ház
Eladó családi ház

Balatonberény, Kodály Zotán utca 34

61.9 M Ft
4 + 1 szoba
95 m2
Eladó családi ház
Eladó családi ház

Üllés

35.5 M Ft
3 szoba
99 m2
Eladó családi ház
Eladó családi ház

Mezőzombor

19.99 M Ft
3 szoba
91 m2
Eladó családi ház
Eladó családi ház

Iharos

8 M Ft
2 szoba
45 m2
Eladó családi ház
Eladó családi ház

Enese

72.025 M Ft
4 szoba
75 m2