Eladó ikerház
Orfű

+ 4 kép 1/7
115 000 000 Ft115 M Ft 821 429 Ft/m2
2 + 2 szoba
140 m2
építés éve:2024

Részletes adatok

Telekméret: 1054 m2
Fűtés: Gázkazán
Energetikai besorolás: Nem adta meg a hirdető

Az OTP Bank lakáshitel ajánlataFizetett hirdetés

+36 20 938
Vincze László György
OTPIP - Pécs, Rákóczi út 19.

Érdekel az OTP Bank kedvezményes lakáshitel ajánlata? *

* A kérdésre „Igen” válasz bejelölése esetén, az „Üzenet küldése” gombra kattintva kijelentem, hogy az OTP Bank Nyrt. Adatkezelési tájékoztatójának tartalmát megismertem és tudomásul vettem.

Eladó ikerház leírása

Baranya vármegyében, a Mecsek lábánál, Orfűn, a Kistó közelében, új építésű, ikerház lakásai eladók!
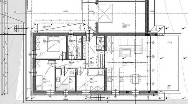
A domboldal csendes utcájában, 1054 m2-es összközműves körbe kerített telken, 101 m2 lakóterű egy szintes lakás várhatóan augusztusban kerül átadásra. A lakáshoz egy 25 m2-es önálló garázs is tartozik, illetve a 29 m2-es terasz kapcsolódik az amerikai konyhás étkező-nappalihoz. 3 hálószoba, egy fürdő wc-vel, külön wc, és egy mosókonyha került még kialakításra. A helyiségek elrendezése, mérete az alaprajzon látható.
Fűtés, meleg víz gázkazánnal, radiátorokkal lesz megoldva.
A lakásoknak nincs közös fala, a két lakás között a két garász helyezkedik el.
Az ár magába foglalja a beépített fürdőszoba és konyhabútorokat, beépített gépeket, szanitereket, hideg-meleg burkolatokat. Önnek csak a bútorait kell hozni, az ingatlan költözhető állapotban, 2024. augusztusban kerül átadásra!
Az ingatlan elhelyezkedése és kialakítása alapján nyugodt, kényelmes lakhatást biztosít, de befektetést keresőknek is kiválóan alkalmas.
Az ikerház másik felével együtt is megvásárolható!
Várom jelentkezését, keressen mielőbb!
Referenciaszám: M266161

115000000 Ft

Referencia szám: M266161

Hirdetés feltöltve: 2025. 09. 27. Utoljára módosítva: 2025. 10. 24.

Az ingatlan elhelyezkedése

Cím: Orfű

Eladó ingatlanok a környékről

Eladó családi ház
Eladó családi ház

Pécs

115.99 M Ft
4 szoba
96 m2
Eladó ikerház
Eladó ikerház

Pécs

53 M Ft
2 + 1 szoba
68 m2
Eladó ikerház
Eladó ikerház

Pogány, Móricz Zsigmond utca

120 M Ft
4 szoba
107 m2
Eladó ikerház
Eladó ikerház

Pécs, Siklósi külváros, Lőcse utca

66 M Ft
4 szoba
104 m2
Eladó családi ház
Eladó családi ház

Pécs

119 M Ft
4 + 1 szoba
179 m2
Eladó téglalakás
Eladó téglalakás

Pécs

59 M Ft
4 szoba
70 m2
Eladó panellakás
Eladó panellakás

Pécs

49.2 M Ft
2 szoba
50 m2
Eladó ikerház
Eladó ikerház

Orfű

115 M Ft
2 + 2 szoba
140 m2
Eladó téglalakás
Eladó téglalakás

Pécs

59 M Ft
4 szoba
70 m2
Eladó ikerház
Eladó ikerház

Orfű

115 M Ft
2 + 2 szoba
140 m2
Eladó téglalakás
Eladó téglalakás

Pécs

32.9 M Ft
2 szoba
55 m2
Eladó ikerház
Eladó ikerház

Orfű

115 M Ft
2 + 2 szoba
140 m2
Eladó ikerház
Eladó ikerház

Pécs

179 M Ft
4 szoba
147 m2
Eladó ikerház
Eladó ikerház

Orfű

115 M Ft
4 szoba
120 m2
Eladó téglalakás
Eladó téglalakás

Pécs

22 M Ft
2 szoba
52 m2
Eladó ikerház
Eladó ikerház

Pellérd

94.9 M Ft
4 szoba
118 m2
Eladó ikerház
Eladó ikerház

Orfű

115 M Ft
2 + 2 szoba
140 m2
Eladó panellakás
Eladó panellakás

Pécs

38.99 M Ft
2 szoba
47 m2
Eladó ikerház
Eladó ikerház

Pogány, Móricz Zsigmond utca

80.4 M Ft
3 szoba
80 m2
Eladó ikerház
Eladó ikerház

Kozármisleny

117 M Ft
5 szoba
133 m2
Eladó ikerház
Eladó ikerház

Pogány, Móricz Zsigmond utca

120 M Ft
4 szoba
107 m2
Eladó családi ház
Eladó családi ház

Nagykozár

119.99 M Ft
4 szoba
156 m2
Eladó panellakás
Eladó panellakás

Pécs, Málom, Malomvölgyi út

56 M Ft
2 szoba
59 m2
Eladó ikerház
Eladó ikerház

Komló, Kossuth akna utca

100 M Ft
8 szoba
220 m2

Falusi CSOK ingatlanok

Eladó családi ház
Eladó családi ház

Balatonvilágos

78 M Ft
3 szoba
43 m2
Eladó családi ház
Eladó családi ház

Balatonfenyves

430 M Ft
4 szoba
274 m2
Eladó családi ház
Eladó családi ház

Lovászpatona

15.9 M Ft
3 szoba
72 m2
Eladó családi ház
Eladó családi ház

Tápiógyörgye

6.5 M Ft
2 szoba
62 m2
Eladó családi ház
Eladó családi ház

Szentmártonkáta

43.9 M Ft
6 szoba
137 m2
Eladó családi ház
Eladó családi ház

Balatonberény

115.259 M Ft
5 szoba
145 m2
Eladó családi ház
Eladó családi ház

Dunaegyháza

13.5 M Ft
2 szoba
120 m2
Eladó családi ház
Eladó családi ház

Rédics

49.9 M Ft
3 szoba
107 m2