Astora Márvány8

Eladó ikerház
Orfű

+ 4 kép 1/7
115 000 000 Ft115 M Ft 821 429 Ft/m2
2 + 2 szoba
140 m2
építés éve:2024

Részletes adatok

Telekméret: 1054 m2
Fűtés: Gázkazán
Közmű: Víz, Gáz, Villany, Csatorna
Energetikai besorolás: Nem adta meg a hirdető

Az OTP Bank lakáshitel ajánlataFizetett hirdetés

+36 20 267
Szetteli Ildikó
referens

Érdekel az OTP Bank kedvezményes lakáshitel ajánlata? *

* A kérdésre „Igen” válasz bejelölése esetén, az „Üzenet küldése” gombra kattintva kijelentem, hogy az OTP Bank Nyrt. Adatkezelési tájékoztatójának tartalmát megismertem és tudomásul vettem.

Eladó ikerház leírása

Baranya vármegyében, a Mecsek lábánál, Orfűn, a Kistó közelében, új építésű, ikerház lakásai eladók!
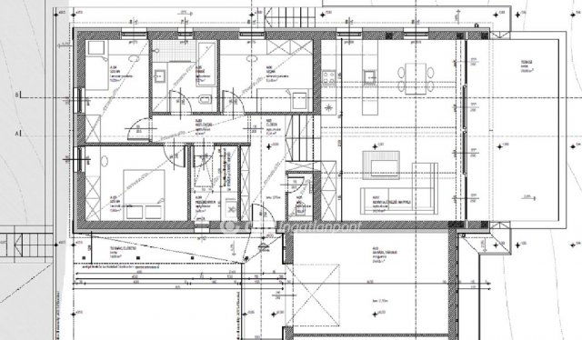
A domboldal csendes utcájában, 1054 m2-es összközműves körbe kerített telken, 101 m2 lakóterű egy szintes lakás várhatóan augusztusban kerül átadásra. A lakáshoz egy 25 m2-es önálló garázs is tartozik, illetve a 29 m2-es terasz kapcsolódik az amerikai konyhás étkező-nappalihoz. 3 hálószoba, egy fürdő wc-vel, külön wc, és egy mosókonyha került még kialakításra. A helyiségek elrendezése, mérete az alaprajzon látható.
Fűtés, meleg víz gázkazánnal, radiátorokkal lesz megoldva.
A lakásoknak nincs közös fala, a két lakás között a két garász helyezkedik el.
Az ár magába foglalja a beépített fürdőszoba és konyhabútorokat, beépített gépeket, szanitereket, hideg-meleg burkolatokat. Önnek csak a bútorait kell hozni, az ingatlan költözhető állapotban, 2024. augusztusban kerül átadásra!
Az ingatlan elhelyezkedése és kialakítása alapján nyugodt, kényelmes lakhatást biztosít, de befektetést keresőknek is kiválóan alkalmas.
Az ikerház másik felével együtt is megvásárolható!
Várom jelentkezését, keressen mielőbb!
Referenciaszám: 266158

Hirdetés feltöltve: 2025. 08. 28. Utoljára módosítva: 2025. 11. 02.

Az ingatlan elhelyezkedése

Cím: Orfű

Eladó ingatlanok a környékről

Eladó ikerház
Eladó ikerház

Pogány, Móricz Zsigmond utca

80.4 M Ft
3 szoba
80 m2
Eladó ikerház
Eladó ikerház

Pécs

179 M Ft
4 szoba
147 m2
Eladó panellakás
Eladó panellakás

Pécs, Megyer, Aidinger János ut

45 M Ft
2 szoba
52 m2
Eladó ikerház
Eladó ikerház

Orfű

115 M Ft
4 szoba
140 m2
Eladó ikerház
Eladó ikerház

Siklós

70 M Ft
5 szoba
201 m2
Eladó téglalakás
Eladó téglalakás

Pécs, Uránváros, Esztergár Lajos utca

53.9 M Ft
2 szoba
58 m2
Eladó ikerház
Eladó ikerház

Kozármisleny, Fecske utca

94 M Ft
4 szoba
105 m2
Eladó panellakás
Eladó panellakás

Pécs

57.9 M Ft
4 szoba
68 m2
Eladó ikerház
Eladó ikerház

Magyarszék, Hunyadi utca

14 M Ft
2 szoba
75 m2
Eladó ikerház
Eladó ikerház

Orfű

115 M Ft
2 + 2 szoba
140 m2
Eladó ikerház
Eladó ikerház

Orfű

115 M Ft
2 + 2 szoba
140 m2
Eladó téglalakás
Eladó téglalakás

Pécs

23.6 M Ft
2 szoba
51 m2
Eladó ikerház
Eladó ikerház

Pellérd

94.9 M Ft
4 szoba
134 m2
Eladó ikerház
Eladó ikerház

Kozármisleny

109 M Ft
4 szoba
137 m2
Eladó ikerház
Eladó ikerház

Pécs

179 M Ft
4 szoba
147 m2
Eladó ikerház
Eladó ikerház

Komló, Kossuth akna utca

100 M Ft
8 szoba
220 m2
Eladó ikerház
Eladó ikerház

Orfű

115 M Ft
2 + 2 szoba
140 m2
Eladó ikerház
Eladó ikerház

Orfű

115 M Ft
2 + 2 szoba
140 m2
Eladó ikerház
Eladó ikerház

Orfű

115 M Ft
2 + 2 szoba
140 m2
Eladó panellakás
Eladó panellakás

Pécs

57.9 M Ft
3 szoba
63 m2
Eladó panellakás
Eladó panellakás

Pécs

48.9 M Ft
3 szoba
47 m2
Eladó panellakás
Eladó panellakás

Pécs

57.9 M Ft
3 szoba
63 m2
Eladó panellakás
Eladó panellakás

Pécs

52.9 M Ft
3 szoba
70 m2
Eladó panellakás
Eladó panellakás

Pécs

58.9 M Ft
2 szoba
47 m2

Falusi CSOK ingatlanok

Eladó családi ház
Eladó családi ház

Devecser

42.9 M Ft
3 szoba
100 m2
Eladó családi ház
Eladó családi ház

Jakabszállás

69.99 M Ft
1 + 4 szoba
91 m2
Eladó családi ház
Eladó családi ház

Vácszentlászló

45 M Ft
4 szoba
100 m2
Eladó családi ház
Eladó családi ház

Szederkény

107.9 M Ft
6 szoba
224 m2
Eladó családi ház
Eladó családi ház

Tapsony

23.8 M Ft
3 szoba
130 m2
Eladó családi ház
Eladó családi ház

Balatonfenyves

430 M Ft
4 szoba
274 m2
Eladó családi ház
Eladó családi ház

Tapsony

10 M Ft
2 szoba
57 m2
Eladó téglalakás
Eladó téglalakás

Balatonszemes

244.5 M Ft
3 szoba
107 m2