Astora Márvány8

Eladó ikerház
Nyíregyháza

+ 6 kép 1/9
79 900 000 Ft79.9 M Ft 998 750 Ft/m2
4 szoba
80 m2
építés éve:2026

Részletes adatok

Telekméret: 480 m2
Fűtés: Egyéb
Parkolás: Garázs
Közmű: Víz, Gáz, Villany, Csatorna
Energetikai besorolás: Nem adta meg a hirdető

Az OTP Bank lakáshitel ajánlataFizetett hirdetés

+36 20 451
Nádasdi Bence
referens

Érdekel az OTP Bank kedvezményes lakáshitel ajánlata? *

* A kérdésre „Igen” válasz bejelölése esetén, az „Üzenet küldése” gombra kattintva kijelentem, hogy az OTP Bank Nyrt. Adatkezelési tájékoztatójának tartalmát megismertem és tudomásul vettem.

Eladó ikerház leírása

Építse fel jövőjét Oroson: Modern ikerház, ahol még minden Önről szól!
Szeretne egy olyan új építésű otthont, ahol nem kész tényeket kap, hanem a tervezési fázistól kezdve kísérheti végig háza születését?

Nyíregyháza-Oros egyik legcsendesebb, új építésű utcájában, a Folyócska utcában eladó egy 2026-os átadású, nappali + 3 szobás, földszintes családi ház. Mivel az építkezés most indul, Önnek egyedülálló lehetősége van arra, hogy a belső tereket és a burkolatokat az alapoktól kezdve a saját igényeire szabja!

A szabadság luxusa: Ön dönti el, mi legyen belül!
Mivel az ingatlan kivitelezése most kezdődik, Ön nem egy "készterméket" vesz meg, hanem egy lehetőséget:

Kiválaszthatja a belső ajtókat, szanitereket és burkolatokat.

A válaszfalak elhelyezésénél még van mozgástere, hogy az elosztás valóban a családja életritmusát szolgálja.

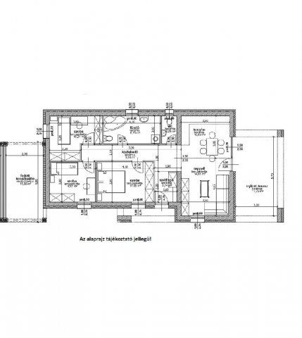
Tágas terek és funkcionális elosztás (Helyiséglista):
A ház a garázzsal és a terasszal együtt összesen 105 nm-es teljes életteret kínál egy 480 nm-es saját telekrészen:

Amerikai konyhás nappali: 25,6 nm (Nappali 14,8 nm + Konyha 10,8 nm) ? Déli fekvésű, családi központ.

Szobák: Három különnyíló, kényelmes hálószoba (11,9 nm, 10,2 nm és 9,6 nm).

Vizesblokkok: Tágas fürdőszoba (8,2 nm) + külön WC kézmosóval.

Közlekedő: 12,9 nm - Praktikus gardróbhelyekkel tervezve.

Garázs: 15,7 nm - Házon belüli, biztonságos és fűtött parkolás.

Terasz: 17,7 nm - Az esti kikapcsolódások tökéletes helyszíne.

Műszaki tartalom - A jövő technológiája:
A ház a legmagasabb energetikai követelményeknek megfelelően épül fel:

Szerkezet: 30-as NF tégla + 15 cm külső hőszigetelés.

Nyílászárók: Modern antracit szürke, 3 rétegű hőszigetelt ablakok.

Fűtés-Hűtés: Energiatakarékos elektromos kazán padlófűtéssel + 5 kW-os hűtő-fűtő klíma az optimális hőmérsékletért.

Pénzügyi biztonság és támogatások:
Az ingatlan CSOK Plusz és Otthon Start programra alkalmas. Az OTP Bankcsoport hátterével garantáljuk a zökkenőmentes folyamatot:

Sorban állás nélküli, egyedi hitelajánlatok.

Fix határidők és megbízható kivitelezői háttér.

Teljes körű jogi és hivatali ügyintézés.

Foglalja le most, és költözzön 2026-ban egy olyan otthonba, amelynek minden részletét Ön álmodta meg!

Hívjon bizalommal, és mutatom a tervdokumentációt!

Referencia szám: M321812

Hirdetés feltöltve: 2026. 02. 05.

4 szobás ikerházak ára Nyíregyházán

Ebből az összehasonlításból megtudhatod, hogyan viszonyul a lakás ára a környékbeli ikerházak átlagos árához. Ez nem azt jelenti, hogy ennyivel olcsóbb vagy drágább, mint amennyit a lakás ér, hanem hogy ennyivel tér el a környékbeli átlagtól.

Ennek a m² ára
Nyíregyháza m² ár
999 e Ft
749 e Ft -33%
Ennek az ára
Nyíregyháza átlagár
79.9 M Ft m Ft
90 m Ft 11%

Az ingatlan elhelyezkedése

Cím: Nyíregyháza

Eladó ikerházak a környékről

Eladó ikerház
Eladó ikerház

Nyíregyháza

107 M Ft
4 szoba
180 m2
Eladó ikerház
Eladó ikerház

Nyíregyháza, Örökösföld, Törzs utca 2

114.9 M Ft
5 szoba
129 m2
Eladó ikerház
Eladó ikerház

Nyíregyháza

92 M Ft
5 szoba
144 m2
Eladó ikerház
Eladó ikerház

Nyíregyháza, Oros, Pompás utca

75 M Ft
4 szoba
110 m2
Eladó ikerház
Eladó ikerház

Nyíregyháza

80 M Ft
3 + 1 szoba
113 m2
Eladó ikerház
Eladó ikerház

Nyíregyháza

80 M Ft
3 szoba
125 m2
Eladó ikerház
Eladó ikerház

Nyíregyháza

105 M Ft
4 + 2 szoba
188 m2
Eladó ikerház
Eladó ikerház

Nyíregyháza

17.5 M Ft
1 + 1 szoba
45 m2
Eladó ikerház
Eladó ikerház

Nyíregyháza

69.5 M Ft
2 szoba
80 m2
Eladó ikerház
Eladó ikerház

Nyíregyháza

69.9 M Ft
4 szoba
165 m2
Eladó ikerház
Eladó ikerház

Nyíregyháza

95 M Ft
5 szoba
174 m2
Eladó ikerház
Eladó ikerház

Nyíregyháza, Belváros, Rózsa utca

155 M Ft
6 szoba
278 m2
Eladó ikerház
Eladó ikerház

Nagykálló

68.5 M Ft
4 szoba
155 m2
Eladó ikerház
Eladó ikerház

Nyíregyháza

80 M Ft
4 szoba
112 m2
Eladó ikerház
Eladó ikerház

Nyíregyháza

80 M Ft
4 szoba
112 m2
Eladó ikerház
Eladó ikerház

Nyíregyháza

105 M Ft
4 szoba
188 m2
Eladó ikerház
Eladó ikerház

Nyíregyháza

18.5 M Ft
1 + 1 szoba
45 m2
Eladó ikerház
Eladó ikerház

Nyíregyháza

62 M Ft
2 + 1 szoba
105 m2
Eladó ikerház
Eladó ikerház

Nyíregyháza

92 M Ft
5 szoba
144 m2
Eladó ikerház
Eladó ikerház

Nyíregyháza

83 M Ft
4 szoba
122 m2
Eladó ikerház
Eladó ikerház

Nyíregyháza

69.5 M Ft
3 szoba
95 m2
Eladó ikerház
Eladó ikerház

Nyíregyháza

95 M Ft
5 szoba
163 m2
Eladó ikerház
Eladó ikerház

Nyíregyháza

17.5 M Ft
1 + 1 szoba
45 m2
Eladó ikerház
Eladó ikerház

Nyíregyháza

69.5 M Ft
3 szoba
95 m2

Falusi CSOK ingatlanok

Eladó családi ház
Eladó családi ház

Mencshely

99 M Ft
3 szoba
126 m2
Eladó családi ház
Eladó családi ház

Csemő

54.9 M Ft
4 szoba
108 m2
Eladó családi ház
Eladó családi ház

Recsk

23 M Ft
3 szoba
98 m2
Eladó családi ház
Eladó családi ház

Tápszentmiklós

59.8 M Ft
5 szoba
110 m2
Eladó családi ház
Eladó családi ház

Badacsonytomaj

124.9 M Ft
4 + 1 szoba
138 m2
Eladó családi ház
Eladó családi ház

Dunaszekcső

12.5 M Ft
3 szoba
110 m2
Eladó családi ház
Eladó családi ház

Vásárosdombó

14.99 M Ft
2 szoba
69 m2
Eladó családi ház
Eladó családi ház

Szederkény

107.9 M Ft
6 szoba
224 m2