City Pearl

Eladó ikerház
Nyíregyháza

+ 9 kép 1/12
79 990 000 Ft79.99 M Ft 999 875 Ft/m2
4 szoba
80 m2
építés éve:2026

Részletes adatok

Telekméret: 480 m2
Fűtés: Gázkazán
Energetikai besorolás: Nem adta meg a hirdető

Az OTP Bank lakáshitel ajánlataFizetett hirdetés

+36 70 262
Szücs-Hajdú Angelika
OTPIP Nyíregyháza Hunyadi u.

Érdekel az OTP Bank kedvezményes lakáshitel ajánlata? *

* A kérdésre „Igen” válasz bejelölése esetén, az „Üzenet küldése” gombra kattintva kijelentem, hogy az OTP Bank Nyrt. Adatkezelési tájékoztatójának tartalmát megismertem és tudomásul vettem.

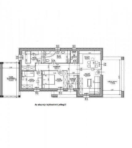
Eladó ikerház leírása

Álmai otthonát keresi Nyíregyháza közkedvelt, dinamikusan fejlődő részén? Oros csendes utcájában (Folyócska utca), 480 nm-es telekrészen eladó egy bruttó 80, valójában 105 nm-es, nappali + 3 szobás (4 szobás), földszintes, új építésű családi ház, amely a mai kor energetikai elvárásainak maximálisan megfelel!

Miért válassza ezt az otthont? Az ingatlan 2026-ban kerül átadásra, így Önnek most még lehetősége van saját ízlésére formálni a belső tereket! A ház modern megjelenését az antracit tető és nyílászárók, valamint a fehér homlokzat elegáns kontrasztja adja.

Kiemelkedő Műszaki Tartalom & Energiahatékonyság:

Falazat: 30-as NF teherhordó téglafal + 15 cm külső nikecell szigetelés.

Födém: Fa szerkezet, 30 cm vastag üveggyapot szigeteléssel, gipszkarton álmennyezettel.

Nyílászárók: Prémium, 3 rétegű üvegezésű, 5 kamrás műanyag ablakok (kívül antracit, belül fehér).

Fűtés-Hűtés: Elektromos kazán padlófűtéssel + 5 kW-os hűtő-fűtő klíma gondoskodik a kellemes hőmérsékletről télen-nyáron.

Belső kialakítás és Extrák:

Burkolatok: A szobákban laminált padló, a vizes helyiségekben és a teraszon kerámia burkolat (5.000 Ft/nm árig szabadon választható!).

Szaniterek: Alföldi porcelánok, Mofém csaptelepek, kádas fürdőszoba + külön WC kézmosóval.

Villany: Legrand szerelvények, helyiségenként bőséges konnektor kiállás, TV és internet előkészítés, konyhai gépek (tűzhely, mosogatógép, elszívó) dedikált áramkörei.

Parkolás: Zárt kocsibeálló az árban!

Testreszabhatóság: Az Ön Otthona, Az Ön Stílusa: A vételár tartalmazza a belső ajtókat, valamint a hideg- és melegburkolatokat a megadott keretösszegig. Az ezen felüli extra igények különbözet elszámolásával megvalósíthatók!

Fontos tudnivalók:

Összközműves: Víz, villany, gáz, csatorna bekötve.

A vételár nem tartalmazza: konyhabútor, lámpatestek, kertépítés/füvesítés.

CSOK Plusz és Otthon Start programra alkalmas!

Az OTP Bankcsoport teljes körű ügyintézéssel áll az eladók és a vevők rendelkezésére! Az adásvételi szerződés megkötéséhez igény szerint megbízható ügyvédi közreműködést és sorban állás nélküli hitel tanácsadást biztosítunk ügyfeleink részére! Referenciaszám: M319207

79990000 Ft

Referencia szám: M319207

Hirdetés feltöltve: 2026. 01. 16.

4 szobás ikerházak ára Nyíregyházán

Ebből az összehasonlításból megtudhatod, hogyan viszonyul a lakás ára a környékbeli ikerházak átlagos árához. Ez nem azt jelenti, hogy ennyivel olcsóbb vagy drágább, mint amennyit a lakás ér, hanem hogy ennyivel tér el a környékbeli átlagtól.

Ennek a m² ára
Nyíregyháza m² ár
1000 e Ft
751 e Ft -33%
Ennek az ára
Nyíregyháza átlagár
79.99 M Ft m Ft
89.9 m Ft 11%

Az ingatlan elhelyezkedése

Cím: Nyíregyháza

Eladó ikerházak a környékről

Eladó ikerház
Eladó ikerház

Nyíregyháza

107 M Ft
4 szoba
180 m2
Eladó ikerház
Eladó ikerház

Nyíregyháza

105 M Ft
4 szoba
188 m2
Eladó ikerház
Eladó ikerház

Nyíregyháza

107 M Ft
4 szoba
180 m2
Eladó ikerház
Eladó ikerház

Nyíregyháza

18.5 M Ft
1 + 1 szoba
45 m2
Eladó ikerház
Eladó ikerház

Nyíregyháza

69.9 M Ft
4 szoba
101 m2
Eladó ikerház
Eladó ikerház

Nyíregyháza

95 M Ft
5 szoba
174 m2
Eladó ikerház
Eladó ikerház

Nyíregyháza

103 M Ft
4 szoba
143 m2
Eladó ikerház
Eladó ikerház

Nyíregyháza

83 M Ft
4 szoba
122 m2
Eladó ikerház
Eladó ikerház

Nyíregyháza

69.9 M Ft
4 szoba
101 m2
Eladó ikerház
Eladó ikerház

Nyíregyháza

92 M Ft
5 szoba
144 m2
Eladó ikerház
Eladó ikerház

Nyíregyháza

69.9 M Ft
2 szoba
80 m2
Eladó ikerház
Eladó ikerház

Nagykálló

68.5 M Ft
4 szoba
155 m2
Eladó ikerház
Eladó ikerház

Nyíregyháza

92 M Ft
5 szoba
144 m2
Eladó ikerház
Eladó ikerház

Nyíregyháza

18.5 M Ft
1 + 1 szoba
45 m2
Eladó ikerház
Eladó ikerház

Nyíregyháza

69.9 M Ft
2 szoba
80 m2
Eladó ikerház
Eladó ikerház

Nyíregyháza

80 M Ft
3 szoba
125 m2
Eladó ikerház
Eladó ikerház

Nyíregyháza

95 M Ft
5 szoba
174 m2
Eladó ikerház
Eladó ikerház

Nyíregyháza

80 M Ft
3 + 1 szoba
113 m2
Eladó ikerház
Eladó ikerház

Nyíregyháza

17.5 M Ft
1 + 1 szoba
45 m2
Eladó ikerház
Eladó ikerház

Nyíregyháza

107 M Ft
4 szoba
180 m2
Eladó ikerház
Eladó ikerház

Nyíregyháza

69.9 M Ft
3 szoba
95 m2
Eladó ikerház
Eladó ikerház

Nyíregyháza

103 M Ft
4 szoba
143 m2
Eladó ikerház
Eladó ikerház

Nyíregyháza

83 M Ft
4 szoba
122 m2
Eladó ikerház
Eladó ikerház

Nyíregyháza

62 M Ft
2 + 1 szoba
105 m2

Falusi CSOK ingatlanok

Eladó családi ház
Eladó családi ház

Szellő

125 M Ft
4 szoba
124 m2
Eladó családi ház
Eladó családi ház

Kenyeri

39.9 M Ft
3 szoba
94 m2
Eladó családi ház
Eladó családi ház

Bozsok

290 M Ft
6 szoba
370 m2
Eladó családi ház
Eladó családi ház

Dombrád

8 M Ft
2 szoba
85 m2
Eladó családi ház
Eladó családi ház

Magyarszék

48.5 M Ft
3 + 1 szoba
86 m2
Eladó ikerház
Eladó ikerház

Seregélyes

39.9 M Ft
4 szoba
150 m2
Eladó családi ház
Eladó családi ház

Tóalmás

51.9 M Ft
5 szoba
100 m2
Eladó családi ház
Eladó családi ház

Szulok, Béke utca

31.9 M Ft
3 szoba
125 m2