River Life

Eladó ikerház
Monor

+ 3 kép 1/6
80 000 000 Ft80 M Ft 1 052 632 Ft/m2
4 szoba
76 m²
építés éve:2026

Részletes adatok

Telekméret: 282 m2
Fűtés: Egyéb
Energetikai besorolás: Nem adta meg a hirdető

Az OTP Bank lakáshitel ajánlataFizetett hirdetés

3629769723
Majzikné Tóth Krisztina
referens

Érdekel az OTP Bank kedvezményes lakáshitel ajánlata? *

* A kérdésre „Igen” válasz bejelölése esetén, az „Üzenet küldése” gombra kattintva kijelentem, hogy az OTP Bank Nyrt. Adatkezelési tájékoztatójának tartalmát megismertem és tudomásul vettem.

Eladó ikerház leírása

Monoron eladó, újépítésű, 3 szoba + nappalis, tároló kapcsolatos ikerházfél, hőszivattyús fűtéssel, kb 300 nm-es kerttel!

Belső nettó hasznos élhető tér 76 nm!

Várható átadás : 2026.10 hó

Önálló helyrajzi számmal fog rendelkezni, nem osztatlan közös tulajdon, társasház alapító lesz.

10 % önerővel szerződhető!

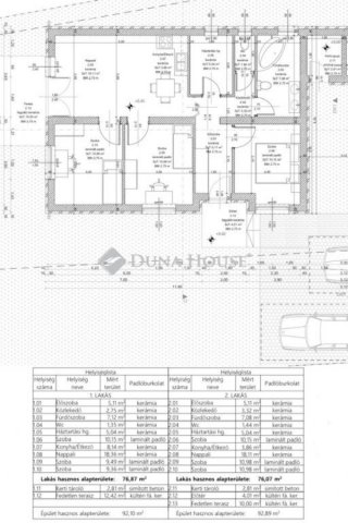
Helyiségeit tekintve nagyon jó elosztással rendelkezik, alábbiakban sorolom fel négyzetméterek megjelölésével:

- 3 önálló bejáratú szoba (10.15 nm, 10.98 nm, 10.98 nm)

- teraszkapcsolatos nappali + konyha és étkező (21.97 nm)

- előszoba (5.11 nm)

- közlekedő (3.32 nm)

- fürdőszoba (7.08 nm)

- wc (1.44 nm)

- háztartási helyiség (5 nm)

- kerti tároló, itt ér össze a két épület (2.81 nm)

- nyitott terasz (10 nm)

Műszaki leírás:

- Fischer hőszivattyús fűtés, padlófűtéssel

- burkolat meleg 8000 Ft / nm, hideg: 10 000 ft / nm

- 10 cm hőszigetelés grafitos

- 30 cm üveggyapot tető hőszigetelés

- vakolás: belső: alapvakolat + simítóvakolat

- lábazaton 8 cm XPS hőszigetelés

- nyílászárók: típus műanyag szerkezetek, fehér színben, 3 rtg.hőszig.üveggel

- festés: belsőben páraáteresztő falfestékkel, színezve igény szerint

- elektromos nagykapu

- utcafronton épített, igényes kerítés

- H tarifa

Az ár kulcsrakészen értendő!

A házakat önerőből építi! Az építő cég anyagilag biztos talpakon áll!

Monoron megtalálható:

Pékség, Cukrászda, Gyógyszertár, Posta, Vendéglő, Könyvtár, Zöldséges, Rossmann, Dm, Élelmiszer boltok, Okmányiroda, Bankok(Takarék,Otp, Budapest Bank), Piac, Bölcsöde, Óvoda, Iskola, Gimnázium,Uszoda, Elektromos autó töltő.

Monor a dél-kelet pesti agglomerációban, a dinamikusan fejlődő főváros és vonzáskörzete, a jó minőségű lakókörnyezetet egyre színvonalasabb közszolgáltatásokkal is biztosító, egyúttal a befektetők számára is vonzó település.

Monor olyan város, ahol jó élni, ahol jó befektetni.

Kiváló közlekedésének köszönhetően az ország bármely pontja könnyen elérhető Monorról.

Amennyiben felkeltettem érdeklődésed keress nyugodtan, és gyere, nézd meg velem az ingatlant!

Hitel ügyintézés, eladás és vétel teljes körű ügyintézése, ingyenes tanácsadás, értékbecslés, megbízható ügyvédi háttér biztosítása.
Érd.: Majzikné Tóth Krisztina, tel.: +36/20 927 3299, e-mail: majzikne.krisztina@dh.hu

Referencia szám: HZ084376

Hirdetés feltöltve: 2026. 04. 26.

4 szobás ikerházak ára Monoron

Ebből az összehasonlításból megtudhatod, hogyan viszonyul a lakás ára a környékbeli ikerházak átlagos árához. Ez nem azt jelenti, hogy ennyivel olcsóbb vagy drágább, mint amennyit a lakás ér, hanem hogy ennyivel tér el a környékbeli átlagtól.

Ennek a m² ára
Monor m² ár
1053 e Ft
1057 e Ft 0%
Ennek az ára
Monor átlagár
80 M Ft m Ft
89.1 m Ft 10%

Az ingatlan elhelyezkedése

Cím: Monor

Eladó ikerházak a környékről

Monor
Eladó ikerház

Monor

83.9 M Ft
4 szoba
81 m²
Monor
Eladó ikerház

Monor

83.9 M Ft
4 szoba
81 m²
Monor
Eladó ikerház

Monor

89.9 M Ft
4 szoba
80 m²
Vác
Eladó ikerház

Vác

99.7 M Ft
4 + 1 szoba
129 m²
Kiskunlacháza
Eladó ikerház

Kiskunlacháza

44.9 M Ft
2 szoba
39 m²
Hernád
Eladó ikerház

Hernád

41.3 M Ft
3 szoba
68 m²
Szentendre
Eladó ikerház

Szentendre

359 M Ft
5 + 1 szoba
289 m²
Vácrátót
Eladó ikerház

Vácrátót

94.9 M Ft
2 + 3 szoba
108 m²
Herceghalom
Eladó ikerház

Herceghalom

99 M Ft
4 szoba
106 m²
Szentendre
Eladó ikerház

Szentendre

179 M Ft
5 + 1 szoba
147 m²
Monor
Eladó ikerház

Monor

83.9 M Ft
4 szoba
81 m²
Vácrátót
Eladó ikerház

Vácrátót

99.9 M Ft
3 + 2 szoba
112 m²
Dunakeszi
Eladó ikerház

Dunakeszi

178 M Ft
6 szoba
140 m²
Monor
Eladó ikerház

Monor

83.9 M Ft
4 szoba
81 m²
Monor
Eladó ikerház

Monor

107 M Ft
5 szoba
107 m²
Monor
Eladó ikerház

Monor

107 M Ft
5 szoba
107 m²
Monor
Eladó ikerház

Monor

83.9 M Ft
4 szoba
81 m²
Vác
Eladó ikerház

Vác

149.9 M Ft
5 szoba
202 m²
Monor
Eladó ikerház

Monor

89.9 M Ft
4 szoba
80 m²
Pécel
Eladó ikerház

Pécel

149.9 M Ft
5 szoba
306 m²
Érd
Eladó ikerház

Érd

177.7 M Ft
7 szoba
181 m²
Mogyoród
Eladó ikerház

Mogyoród

129 M Ft
5 szoba
123 m²
Monor
Eladó ikerház

Monor

83.9 M Ft
4 szoba
81 m²
Diósd
Eladó ikerház

Diósd

206.25 M Ft
5 szoba
184 m²

Falusi CSOK ingatlanok

Andornaktálya
Eladó családi ház

Andornaktálya

35.9 M Ft
2 szoba
60 m²
Nagyberény
Eladó családi ház

Nagyberény

27.9 M Ft
6 szoba
130 m²
Vatta
Eladó családi ház

Vatta

28.3 M Ft
2 szoba
56 m²
Berzence
Eladó családi ház

Berzence

25 M Ft
2 szoba
200 m²
Balatonakali
Eladó ikerház

Balatonakali

560 M Ft
4 szoba
140 m²
Balástya, Tanya 86/1
Eladó családi ház

Balástya

8.28 M Ft
1 + 1 szoba
111 m²
Perőcsény
Eladó családi ház

Perőcsény

59 M Ft
3 szoba
128 m²
Hegyeshalom, Margaréta utca 12
Eladó téglalakás

Hegyeshalom

32.89 M Ft
1 szoba
27 m²