Aerogate Homes

Eladó ikerház
Monor

+ 3 kép 1/6
80 000 000 Ft80 M Ft 1 052 632 Ft/m2
4 szoba
76 m²
építés éve:2026

Részletes adatok

Telekméret: 282 m2
Fűtés: Egyéb
Energetikai besorolás: Nem adta meg a hirdető

Az OTP Bank lakáshitel ajánlataFizetett hirdetés

3629998816
Póta-Für Adrienn
referens

Érdekel az OTP Bank kedvezményes lakáshitel ajánlata? *

* A kérdésre „Igen” válasz bejelölése esetén, az „Üzenet küldése” gombra kattintva kijelentem, hogy az OTP Bank Nyrt. Adatkezelési tájékoztatójának tartalmát megismertem és tudomásul vettem.

Eladó ikerház leírása

Monoron eladó, újépítésű, 3 szoba + nappalis, tároló kapcsolatos ikerházfél, hőszivattyús fűtéssel, kb 300 nm-es kerttel!

Belső nettó hasznos élhető tér 76 nm!

Várható átadás : 2026.10 hó

Önálló helyrajzi számmal fog rendelkezni, nem osztatlan közös tulajdon, társasház alapító lesz.

10 % önerővel szerződhető!

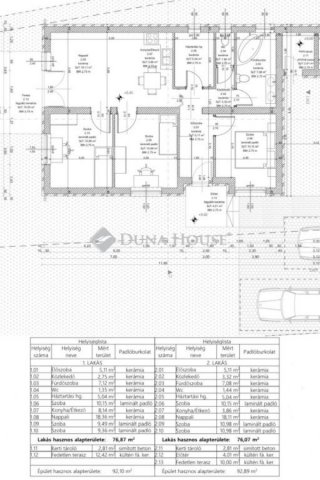
Helyiségeit tekintve nagyon jó elosztással rendelkezik, alábbiakban sorolom fel négyzetméterek megjelölésével:

- 3 önálló bejáratú szoba (10.15 nm, 10.98 nm, 10.98 nm)

- teraszkapcsolatos nappali + konyha és étkező (21.97 nm)

- előszoba (5.11 nm)

- közlekedő (3.32 nm)

- fürdőszoba (7.08 nm)

- wc (1.44 nm)

- háztartási helyiség (5 nm)

- kerti tároló, itt ér össze a két épület (2.81 nm)

- nyitott terasz (10 nm)

Műszaki leírás:

- Fischer hőszivattyús fűtés, padlófűtéssel

- burkolat meleg 8000 Ft / nm, hideg: 10 000 ft / nm

- 10 cm hőszigetelés grafitos

- 30 cm üveggyapot tető hőszigetelés

- vakolás: belső: alapvakolat + simítóvakolat

- lábazaton 8 cm XPS hőszigetelés

- nyílászárók: típus műanyag szerkezetek, fehér színben, 3 rtg.hőszig.üveggel

- festés: belsőben páraáteresztő falfestékkel, színezve igény szerint

- elektromos nagykapu

- utcafronton épített, igényes kerítés

- H tarifa

Az ár kulcsrakészen értendő!

A házakat önerőből építi! Az építő cég anyagilag biztos talpakon áll!

Monoron megtalálható:

Pékség, Cukrászda, Gyógyszertár, Posta, Vendéglő, Könyvtár, Zöldséges, Rossmann, Dm, Élelmiszer boltok, Okmányiroda, Bankok(Takarék,Otp, Budapest Bank), Piac, Bölcsöde, Óvoda, Iskola, Gimnázium,Uszoda, Elektromos autó töltő.

Monor a dél-kelet pesti agglomerációban, a dinamikusan fejlődő főváros és vonzáskörzete, a jó minőségű lakókörnyezetet egyre színvonalasabb közszolgáltatásokkal is biztosító, egyúttal a befektetők számára is vonzó település.

Monor olyan város, ahol jó élni, ahol jó befektetni.

Kiváló közlekedésének köszönhetően az ország bármely pontja könnyen elérhető Monorról.
Ha kérdése van vagy szeretné megtekinteni, keressen bizalommal a hét bármely napján!

Póta-Für Adrienn
Ezüst fokozatú ingatlanértékesítő
+36 30 115 1416
potafur.adrienn@dh.hu

Ha még nem találta meg új otthonát, esetleg a vásárláshoz előbb el kell adnia egy ingatlant, keressen a fenti elérhetőségeimen, együtt megtaláljuk a megoldást!

Irodánk pénzügyi szakértője díjmentes és bankfüggetlen hiteltanácsadással segíti a vásárlást, melynek lebonyolításához igény esetén megbízható ügyvédi hátteret biztosítunk.

Referencia szám: HZ084376

Hirdetés feltöltve: 2026. 04. 17. Utoljára módosítva: 2026. 05. 06.

4 szobás ikerházak ára Monoron

Ebből az összehasonlításból megtudhatod, hogyan viszonyul a lakás ára a környékbeli ikerházak átlagos árához. Ez nem azt jelenti, hogy ennyivel olcsóbb vagy drágább, mint amennyit a lakás ér, hanem hogy ennyivel tér el a környékbeli átlagtól.

Ennek a m² ára
Monor m² ár
1053 e Ft
1055 e Ft 0%
Ennek az ára
Monor átlagár
80 M Ft m Ft
88.3 m Ft 9%

Az ingatlan elhelyezkedése

Cím: Monor

Eladó ikerházak a környékről

Szentendre
Eladó ikerház

Szentendre

718 M Ft
10 + 2 szoba
578 m²
Monor
Eladó ikerház

Monor

107 M Ft
5 szoba
107 m²
Monor
Eladó ikerház

Monor

89.9 M Ft
4 szoba
80 m²
Monor
Eladó ikerház

Monor

83.9 M Ft
4 szoba
81 m²
Monor
Eladó ikerház

Monor

81.8 M Ft
4 szoba
83 m²
Monor
Eladó ikerház

Monor

83.9 M Ft
4 szoba
81 m²
Monor
Eladó ikerház

Monor

107 M Ft
5 szoba
107 m²
Pécel
Eladó ikerház

Pécel

149.9 M Ft
5 szoba
306 m²
Nagytarcsa
Eladó ikerház

Nagytarcsa

119.9 M Ft
4 szoba
103 m²
Monor
Eladó ikerház

Monor

89.9 M Ft
3 szoba
80 m²
Pécel
Eladó ikerház

Pécel

369 M Ft
11 szoba
430 m²
Diósd
Eladó ikerház

Diósd

206.25 M Ft
5 szoba
184 m²
Szentendre
Eladó ikerház

Szentendre

359 M Ft
5 + 1 szoba
289 m²
Pomáz
Eladó ikerház

Pomáz

129.5 M Ft
4 szoba
100 m²
Dunakeszi
Eladó ikerház

Dunakeszi

178 M Ft
6 szoba
140 m²
Monor
Eladó ikerház

Monor

83.9 M Ft
4 szoba
81 m²
Monor
Eladó ikerház

Monor

89.9 M Ft
4 szoba
80 m²
Hernád
Eladó ikerház

Hernád

41.3 M Ft
3 szoba
68 m²
Vácrátót
Eladó ikerház

Vácrátót

94.9 M Ft
2 + 3 szoba
108 m²
Pécel, Pécel - kertváros
Eladó ikerház

Pécel

127 M Ft
4 szoba
125 m²
Vác
Eladó ikerház

Vác

96.7 M Ft
4 + 1 szoba
126 m²
Monor
Eladó ikerház

Monor

89.9 M Ft
4 szoba
80 m²
Mogyoród
Eladó ikerház

Mogyoród

129 M Ft
5 szoba
123 m²
Monor
Eladó ikerház

Monor

107 M Ft
5 szoba
107 m²

Falusi CSOK ingatlanok

Márianosztra
Eladó családi ház

Márianosztra

38 M Ft
4 szoba
75 m²
Kiszombor, Óbébai utca
Eladó családi ház

Kiszombor

32.9 M Ft
4 szoba
140 m²
Sződ
Eladó családi ház

Sződ

116.9 M Ft
4 + 1 szoba
102 m²
Bag
Eladó ikerház

Bag

93 M Ft
3 szoba
67 m²
Ádánd
Eladó családi ház

Ádánd

67 M Ft
6 szoba
251 m²
Marcalgergelyi
Eladó családi ház

Marcalgergelyi

31 M Ft
2 + 1 szoba
120 m²
Tiszasziget, Sziget lakópark
Eladó sorház

Tiszasziget

33.9 M Ft
2 szoba
48 m²
Tiszasziget, Sziget u
Eladó téglalakás

Tiszasziget

37.5 M Ft
2 szoba
41 m²