Oasis Residence

Eladó ikerház
Monor

+ 3 kép 1/6
80 000 000 Ft80 M Ft 1 052 632 Ft/m2
4 szoba
76 m²
építés éve:2026

Részletes adatok

Telekméret: 282 m2
Fűtés: Egyéb
Energetikai besorolás: Nem adta meg a hirdető

Az OTP Bank lakáshitel ajánlataFizetett hirdetés

+36 1 690
Hársmán Kamilla
referens

Érdekel az OTP Bank kedvezményes lakáshitel ajánlata? *

* A kérdésre „Igen” válasz bejelölése esetén, az „Üzenet küldése” gombra kattintva kijelentem, hogy az OTP Bank Nyrt. Adatkezelési tájékoztatójának tartalmát megismertem és tudomásul vettem.

Eladó ikerház leírása

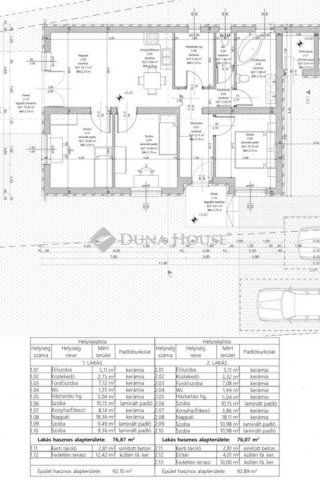
Monoron eladó, újépítésű, 3 szoba + nappalis, tároló kapcsolatos ikerházfél, hőszivattyús fűtéssel, kb 300 nm-es kerttel!Belső nettó hasznos élhető tér 76 nm!Várható átadás : 2026.10 hóÖnálló helyrajzi számmal fog rendelkezni, nem osztatlan közös tulajdon, társasház alapító lesz.10 % önerővel szerződhető!Helyiségeit tekintve nagyon jó elosztással rendelkezik, alábbiakban sorolom fel négyzetméterek megjelölésével:- 3 önálló bejáratú szoba (10.15 nm, 10.98 nm, 10.98 nm)- teraszkapcsolatos nappali + konyha és étkező (21.97 nm)- előszoba (5.11 nm)- közlekedő (3.32 nm)- fürdőszoba (7.08 nm)- wc (1.44 nm)- háztartási helyiség (5 nm)- kerti tároló, itt ér össze a két épület (2.81 nm)- nyitott terasz (10 nm)Műszaki leírás:- Fischer hőszivattyús fűtés, padlófűtéssel- burkolat meleg 8000 Ft / nm, hideg: 10 000 ft / nm- 10 cm hőszigetelés grafitos- 30 cm üveggyapot tető hőszigetelés- vakolás: belső: alapvakolat + simítóvakolat- lábazaton 8 cm XPS hőszigetelés- nyílászárók: típus műanyag szerkezetek, fehér színben, 3 rtg.hőszig.üveggel- festés: belsőben páraáteresztő falfestékkel, színezve igény szerint- elektromos nagykapu- utcafronton épített, igényes kerítés- H tarifaAz ár kulcsrakészen értendő!A házakat önerőből építi! Az építő cég anyagilag biztos talpakon áll!Monoron megtalálható:Pékség, Cukrászda, Gyógyszertár, Posta, Vendéglő, Könyvtár, Zöldséges, Rossmann, Dm, Élelmiszer boltok, Okmányiroda, Bankok(Takarék,Otp, Budapest Bank), Piac, Bölcsöde, Óvoda, Iskola, Gimnázium,Uszoda, Elektromos autó töltő.Monor a dél-kelet pesti agglomerációban, a dinamikusan fejlődő főváros és vonzáskörzete, a jó minőségű lakókörnyezetet egyre színvonalasabb közszolgáltatásokkal is biztosító, egyúttal a befektetők számára is vonzó település.Monor olyan város, ahol jó élni, ahol jó befektetni.Kiváló közlekedésének köszönhetően az ország bármely pontja könnyen elérhető Monorról.Amennyiben felkeltettem érdeklődésed keress nyugodtan, és gyere, nézd meg velem az ingatlant!Hitel ügyintézés, eladás és vétel teljes körű ügyintézése, ingyenes tanácsadás, értékbecslés, megbízható ügyvédi háttér biztosítása.

Referencia szám: HZ084376

Hirdetés feltöltve: 2026. 03. 24. Utoljára módosítva: 2026. 04. 23.

4 szobás ikerházak ára Monoron

Ebből az összehasonlításból megtudhatod, hogyan viszonyul a lakás ára a környékbeli ikerházak átlagos árához. Ez nem azt jelenti, hogy ennyivel olcsóbb vagy drágább, mint amennyit a lakás ér, hanem hogy ennyivel tér el a környékbeli átlagtól.

Ennek a m² ára
Monor m² ár
1053 e Ft
1054 e Ft 0%
Ennek az ára
Monor átlagár
80 M Ft m Ft
88.2 m Ft 9%

Az ingatlan elhelyezkedése

Cím: Monor

Eladó ikerházak a környékről

Monor
Eladó ikerház

Monor

107 M Ft
5 szoba
107 m²
Monor
Eladó ikerház

Monor

82 M Ft
4 szoba
81 m²
Monor
Eladó ikerház

Monor

107 M Ft
5 szoba
107 m²
Monor
Eladó ikerház

Monor

82 M Ft
4 szoba
81 m²
Monor
Eladó ikerház

Monor

82 M Ft
4 szoba
81 m²
Monor
Eladó ikerház

Monor

89.9 M Ft
4 szoba
80 m²
Monor
Eladó ikerház

Monor

89.9 M Ft
4 szoba
80 m²
Diósd
Eladó ikerház

Diósd

206.25 M Ft
5 szoba
184 m²
Monor
Eladó ikerház

Monor

83.9 M Ft
4 szoba
81 m²
Mogyoród
Eladó ikerház

Mogyoród

129 M Ft
5 szoba
123 m²
Monor
Eladó ikerház

Monor

82 M Ft
4 szoba
81 m²
Szentendre
Eladó ikerház

Szentendre

359 M Ft
5 + 1 szoba
289 m²
Monor
Eladó ikerház

Monor

82 M Ft
4 szoba
81 m²
Pécel, Pécel - kertváros
Eladó ikerház

Pécel

127 M Ft
4 szoba
125 m²
Monor
Eladó ikerház

Monor

107 M Ft
5 szoba
107 m²
Dunakeszi
Eladó ikerház

Dunakeszi

178 M Ft
6 szoba
140 m²
Monor
Eladó ikerház

Monor

82 M Ft
4 szoba
81 m²
Diósd
Eladó ikerház

Diósd

213.46 M Ft
5 szoba
186 m²
Monor
Eladó ikerház

Monor

89.9 M Ft
4 szoba
80 m²
Mogyoród
Eladó ikerház

Mogyoród

135 M Ft
5 szoba
137 m²
Kiskunlacháza
Eladó ikerház

Kiskunlacháza

44.9 M Ft
2 szoba
39 m²
Monor
Eladó ikerház

Monor

107 M Ft
5 szoba
107 m²
Monor
Eladó ikerház

Monor

89.9 M Ft
4 szoba
80 m²
Pécel
Eladó ikerház

Pécel

149.9 M Ft
5 szoba
306 m²

Falusi CSOK ingatlanok

Mezőzombor
Eladó családi ház

Mezőzombor

14.6 M Ft
3 szoba
81 m²
Badacsonytomaj
Eladó családi ház

Badacsonytomaj

285 M Ft
4 szoba
230 m²
Jászkarajenő
Eladó családi ház

Jászkarajenő

17.5 M Ft
2 + 1 szoba
47 m²
Tápiószőlős
Eladó családi ház

Tápiószőlős

9.5 M Ft
2 szoba
46 m²
Tibolddaróc
Eladó családi ház

Tibolddaróc

12 M Ft
2 szoba
56 m²
Tápiószőlős
Eladó családi ház

Tápiószőlős

29.8 M Ft
3 szoba
75 m²
Bükkábrány
Eladó családi ház

Bükkábrány

37.5 M Ft
5 + 1 szoba
180 m²
Verseg
Eladó családi ház

Verseg

38 M Ft
3 szoba
83 m²