City Pearl

Eladó ikerház
Marcali

+ 11 kép 1/14
35 000 000 Ft35 M Ft 411 765 Ft/m2
2 + 2 szoba
85 m²
építés éve:1978

Részletes adatok

Állapot: Átlagos
Telekméret: 797 m2
Fűtés: Egyéb
Energetikai besorolás: Nem adta meg a hirdető

Az OTP Bank lakáshitel ajánlataFizetett hirdetés

+36 70 373
Garancsi Imre
OTP Ingatlanpont Veszprém

Érdekel az OTP Bank kedvezményes lakáshitel ajánlata? *

* A kérdésre „Igen” válasz bejelölése esetén, az „Üzenet küldése” gombra kattintva kijelentem, hogy az OTP Bank Nyrt. Adatkezelési tájékoztatójának tartalmát megismertem és tudomásul vettem.

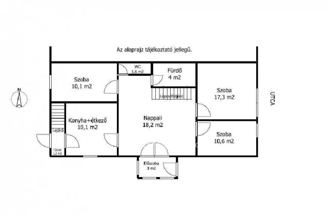
Eladó ikerház leírása

Balaton déli part környéke-ELADÓ ikerház-fél a Balatontól csupán 14 km-re!
Település: Marcali kertvárosi, központhoz közeli rész.
Lakóterület: 93 m2
Telek mérete: 797 m2
Építés éve: 1978

Eladásra kínálok egy hangulatos ikerház-felet Marcali kedvelt kertvárosi részén, a városközponthoz közel. Az ingatlan ideális lehet családoknak, de akár nyaralónak is, hiszen a Balaton mindössze 14 km-re található!

Helyiségek: Nappali, hálószoba, két kisebb szoba, konyha étkezővel, előszoba, kamra, különálló fürdőszoba és WC.
Szuterénben hangulatos olvasószoba. Tetőtér részben beépített, nappaliból feljárattal igény szerint tovább alakítható.
A szobák parkettások, a nappali laminált padlós.

További jellemzők:
- Garázs
- Nyílt tároló és utánfutó tároló
- Szépen gondozott kert
- Csendes, nyugodt környék
Közművek: Teljes közmű (víz, villany, gáz, csatorna) rendelkezésre áll. Fűtés gázkonvektorral és kandallókályhával, amely ősszel-tavasszal befűti az egész házat. A melegvizet boyler biztosítja.

Elhelyezkedés:
Marcali város járási központ, számos intézménnyel, boltokkal ( Tesco, Lidl, Aldi ), húsbolt, pékség, butikok sétáló utcával, vendéglátó helyekkel, iskolákkal, uszodával és gyógyfürdővel, kulturális programokkal. A Balaton-parti városok (pl. Balatonmáriafürdő) rövid autóútra elérhetők.

Otthon Start Hitelprogram

További információkért, a megtekintésért kérem, hívjon elérhetőségeimen.

Hirdetés feltöltve: 2026. 04. 23.

Az ingatlan elhelyezkedése

Cím: Marcali

Eladó ingatlanok a környékről

Balatonlelle
Eladó téglalakás

Balatonlelle

145.99 M Ft
3 szoba
72 m²
Balatonmáriafürdő
Eladó ikerház

Balatonmáriafürdő

44.7 M Ft
3 szoba
77 m²
Siófok
Eladó családi ház

Siófok

249.9 M Ft
6 szoba
291 m²
Fonyód
Eladó téglalakás

Fonyód

175 M Ft
3 szoba
79 m²
Balatonlelle
Eladó téglalakás

Balatonlelle

114.99 M Ft
3 szoba
69 m²
Siófok
Eladó ikerház

Siófok

169 M Ft
12 szoba
240 m²
Szólád
Eladó nyaraló

Szólád

72.9 M Ft
5 szoba
106 m²
Kaposvár, Belváros, Berzsenyi Dániel utca
Eladó iroda

Kaposvár

199 M Ft
824 m²
Kaposvár, Északnyugati városrész, Füredi utca
Eladó panellakás

Kaposvár

27.9 M Ft
1 + 1 szoba
39 m²
Somogybabod, Petőfi Sándor utca
Eladó családi ház

Somogybabod

36.9 M Ft
4 szoba
135 m²
Siófok
Eladó ikerház

Siófok

126.9 M Ft
3 szoba
118 m²
Siófok
Eladó téglalakás

Siófok

105 M Ft
2 szoba
78 m²
Andocs
Eladó családi ház

Andocs

25 M Ft
5 szoba
106 m²
Balatonfenyves
Eladó ikerház

Balatonfenyves

72 M Ft
4 szoba
145 m²
Balatonfenyves, Dér utca
Eladó ikerház

Balatonfenyves

37.9 M Ft
3 szoba
45 m²
Siófok
Eladó ikerház

Siófok

165.397 M Ft
3 szoba
122 m²
Balatonkeresztúr
Eladó telek

Balatonkeresztúr

31.5 M Ft
1511 m²
Szántód
Eladó téglalakás

Szántód

44.99 M Ft
1 szoba
29 m²
Gyékényes
Eladó nyaraló

Gyékényes

25.9 M Ft
1 szoba
35 m²
Balatonfenyves
Eladó ikerház

Balatonfenyves

45.9 M Ft
2 szoba
55 m²
Lengyeltóti, Ifjúság utca
Eladó ikerház

Lengyeltóti

69 M Ft
3 + 2 szoba
266 m²
Kaposszerdahely, Kossuth Lajos utca
Eladó családi ház

Kaposszerdahely

114 M Ft
4 szoba
93 m²
Zamárdi
Eladó családi ház

Zamárdi

170 M Ft
3 + 3 szoba
122 m²
Zamárdi
Eladó ikerház

Zamárdi

99 M Ft
1 szoba
25 m²

Falusi CSOK ingatlanok

Sály, Kossuth Lajos 128
Eladó családi ház

Sály

28.875 M Ft
6 szoba
160 m²
Bag
Eladó családi ház

Bag

110 M Ft
5 szoba
320 m²
Szepetnek
Eladó családi ház

Szepetnek

16.5 M Ft
4 szoba
75 m²
Gönc
Eladó családi ház

Gönc

28 M Ft
2 szoba
120 m²
Levelek
Eladó családi ház

Levelek

74 M Ft
7 + 1 szoba
190 m²
Hegyeshalom, Margaréta utca 12
Eladó téglalakás

Hegyeshalom

50.09 M Ft
2 szoba
43 m²
Somogyszil
Eladó családi ház

Somogyszil

27.9 M Ft
3 szoba
140 m²
Nagyszénás, Bajcsy-Zsilinszky utca 60
Eladó családi ház

Nagyszénás

11.7 M Ft
1 + 1 szoba
128 m²