Astora Olive Club House

Eladó ikerház
Kecskemét

+ 3 kép 1/6
73 000 000 Ft73 M Ft 663 636 Ft/m2
3 szoba
110 m²
építés éve:2026

Részletes adatok

Telekméret: 454 m2
Fűtés: Gázkazán
Energetikai besorolás: Nem adta meg a hirdető

Az OTP Bank lakáshitel ajánlataFizetett hirdetés

3676815036
Simigla Hajnalka
referens

Érdekel az OTP Bank kedvezményes lakáshitel ajánlata? *

* A kérdésre „Igen” válasz bejelölése esetén, az „Üzenet küldése” gombra kattintva kijelentem, hogy az OTP Bank Nyrt. Adatkezelési tájékoztatójának tartalmát megismertem és tudomásul vettem.

Eladó ikerház leírása

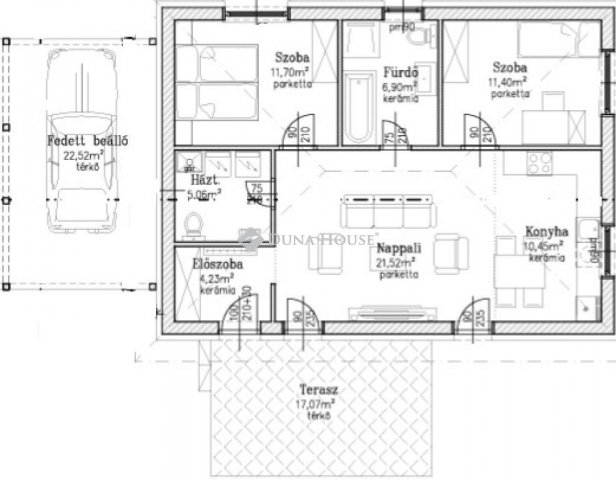
Eladó Kecskemét Kiskertek városrészben nettó 71,26 nm lakóterű, amerikai konyhás nappali + 2 szobás, 17 nm terasz, 22,52nm fedett autóbeállóval rendelkező, PRÉMIUM műszaki tartalommal megépülő ÚJ ikerház projektet 450 nm-es telken.
Műszaki tartalom:
- közművek (villany, víz, csatorna, gáz)
- kedvelt családi házas lakóövezet
- beton sávalap
- Wienerberger Porotherm 30 N+F síkra csiszolt tégla+ 15 cm EPS 80 hőszigetelés
- tégla válaszfalazat
- szeglemezes tető, födém gerendák között 30 cm vastag, fújt cellulóz, tűzgátló gipszkarton
- a műanyag nyílászárók 3 rétegű üvegezésük, Argon gáz töltettel
- 24 KW-os kondenzációs BOSCH kazán vagy vele azonos tudású kazán, padlófűtés
- a fűtés manuálisan hordozható termosztáttal szabályozható
- 3 db fűthető cseptálcás, hőszivattyús Midea 3,5 KW-os WIFI-s klíma
- Inim SmartLiving riasztórendszer
- hidegburkolatok bruttó 6.000Ft/nm- melegburkolatok bruttó 3.500 Ft/nm
- beltéri ajtók bruttó 80.000 Ft/db választható kilinccsel együtt
- szaniterek és a csaptelepek bruttó 550.000 Ft értékig

Az ár kulcsrakész átadással értendő, konyhabútor és lámpatestek nélkül, a TELEK ÁRAT TARTALMAZZA!

A Duna House teljes kínálatával, valamint díjmentes, teljeskörű hitel, CSOK plusz, babaváró ügyintézéssel kapcsolatban forduljon hozzám bizalommal!

Az energetikai tanúsítvány készítése folyamatban van, amint rendelkezésre áll, úgy azzal a hirdetés frissítésre kerül.

Hirdetés feltöltve: 2026. 04. 15. Utoljára módosítva: 2026. 05. 10.

3 szobás ikerházak ára Kecskeméten

Ebből az összehasonlításból megtudhatod, hogyan viszonyul a lakás ára a környékbeli ikerházak átlagos árához. Ez nem azt jelenti, hogy ennyivel olcsóbb vagy drágább, mint amennyit a lakás ér, hanem hogy ennyivel tér el a környékbeli átlagtól.

Ennek a m² ára
Kecskemét m² ár
664 e Ft
835 e Ft 21%
Ennek az ára
Kecskemét átlagár
73 M Ft m Ft
69.1 m Ft -6%

Az ingatlan elhelyezkedése

Cím: Kecskemét

Eladó ikerházak a környékről

Kecskemét
Eladó ikerház

Kecskemét

89.9 M Ft
530 m²
98 m²
Kecskemét
Eladó ikerház

Kecskemét

83.9 M Ft
4 szoba
151 m²
Kecskemét
Eladó ikerház

Kecskemét

99.5 M Ft
4 szoba
81 m²
Kecskemét
Eladó ikerház

Kecskemét

89.9 M Ft
3 szoba
101 m²
Kecskemét
Eladó ikerház

Kecskemét

85.9 M Ft
3 szoba
99 m²
Baja
Eladó ikerház

Baja

99 M Ft
5 szoba
150 m²
Kecskemét
Eladó ikerház

Kecskemét

99.5 M Ft
4 szoba
81 m²
Kecskemét
Eladó ikerház

Kecskemét

89.9 M Ft
530 m²
98 m²
Kecskemét, Gerlice utca 24
Eladó ikerház

Kecskemét

161 M Ft
4 szoba
122 m²
Kecskemét, Szent László város
Eladó ikerház

Kecskemét

110 M Ft
4 szoba
117 m²
Kecskemét
Eladó ikerház

Kecskemét

94.3 M Ft
3 szoba
91 m²
Kecskemét
Eladó ikerház

Kecskemét

66.9 M Ft
3 szoba
72 m²
Kecskemét
Eladó ikerház

Kecskemét

85.9 M Ft
384 m²
94 m²
Kecskemét
Eladó ikerház

Kecskemét

94.3 M Ft
3 szoba
91 m²
Kecskemét
Eladó ikerház

Kecskemét

85.9 M Ft
3 szoba
99 m²
Kecskemét
Eladó ikerház

Kecskemét

98 M Ft
4 szoba
110 m²
Bugac, Rákóczi utca
Eladó ikerház

Bugac

50.5 M Ft
4 szoba
100 m²
Kecskemét
Eladó ikerház

Kecskemét

83.9 M Ft
4 szoba
151 m²
Kecskemét, Bethlen-város, Szarvas utca
Eladó ikerház

Kecskemét

98 M Ft
4 szoba
110 m²
Kecskemét
Eladó ikerház

Kecskemét

83.9 M Ft
4 szoba
151 m²
Kecskemét
Eladó ikerház

Kecskemét

99.5 M Ft
4 szoba
81 m²
Kecskemét
Eladó ikerház

Kecskemét

89.9 M Ft
3 szoba
101 m²
Kecskemét, Szent László város
Eladó ikerház

Kecskemét

110 M Ft
4 szoba
117 m²
Kiskunmajsa
Eladó ikerház

Kiskunmajsa

45 M Ft
3 szoba
113 m²

Falusi CSOK ingatlanok

Gádoros
Eladó családi ház

Gádoros

25.5 M Ft
4 szoba
140 m²
Tihany
Eladó családi ház

Tihany

549 M Ft
8 szoba
340 m²
Hegyeshalom, Margaréta utca 12
Eladó téglalakás

Hegyeshalom

46.91 M Ft
2 szoba
43 m²
Balatonszemes
Eladó téglalakás

Balatonszemes

123.3 M Ft
2 szoba
0 m²
Törtel
Eladó családi ház

Törtel

16 M Ft
3 szoba
87 m²
Győrság
Eladó családi ház

Győrság

89.9 M Ft
4 szoba
92 m²
Balatonkenese
Eladó családi ház

Balatonkenese

165.7 M Ft
2 + 4 szoba
179 m²
Rábaszentmihály
Eladó családi ház

Rábaszentmihály

53 M Ft
3 szoba
156 m²