Astora Márvány8

Eladó ikerház
Kecskemét

1/1
69 900 000 Ft69.9 M Ft 1 027 941 Ft/m2
3 szoba
68 m²
építés éve:2026

Részletes adatok

Telekméret: 320 m2
Fűtés: Gázkazán
Energetikai besorolás: Nem adta meg a hirdető

Az OTP Bank lakáshitel ajánlataFizetett hirdetés

+36 70 633
Alt Róbertné
HOUSE36 Ingatlanbázis Kft.

Érdekel az OTP Bank kedvezményes lakáshitel ajánlata? *

* A kérdésre „Igen” válasz bejelölése esetén, az „Üzenet küldése” gombra kattintva kijelentem, hogy az OTP Bank Nyrt. Adatkezelési tájékoztatójának tartalmát megismertem és tudomásul vettem.

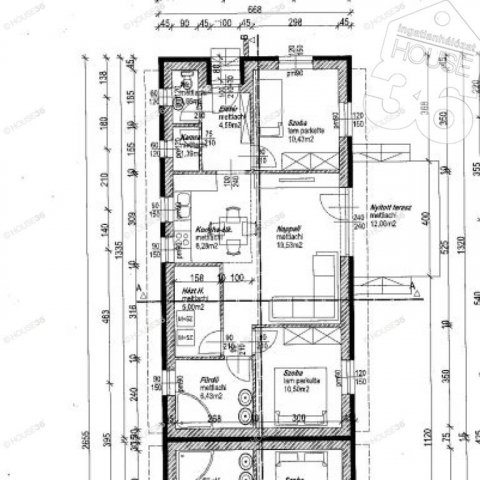
Eladó ikerház leírása

Kecskeméttől 3 percre nappali + 2 szobás, 68 m2-es ikerház egyik fele eladó!

Jellemzői:

-a építés
-320 m2 telek
-68 m2
-nappali + 2 szoba
-háztartási helyiség
-3 db klíma
-Padlófűtés Bosch 2300 kazánnal
-15 cm homlokzati szigetelés
-30 cm födém szigetelés
-Választható burkolatok, szaniterek
-Műanyag nyílászárók redőnnyel

A tulajdonos kérésére az ingatlan bemutatása egy személyes konzultáció után történik, ahol részletes tájékoztatást kaphat az ingatlan paramétereiről és egyéb kényelmi szolgáltatásairól!Figyelem az adatlap megbízónktól kapott adatok alapján készült, pontosságáért felelősséget nem tudunk vállalni!
Az iroda legfrissebb, aktuális kínálatát a HOUSE36 saját weboldalán találja!

Hirdetés feltöltve: 2026. 04. 01. Utoljára módosítva: 2026. 04. 01.

3 szobás ikerházak ára Kecskeméten

Ebből az összehasonlításból megtudhatod, hogyan viszonyul a lakás ára a környékbeli ikerházak átlagos árához. Ez nem azt jelenti, hogy ennyivel olcsóbb vagy drágább, mint amennyit a lakás ér, hanem hogy ennyivel tér el a környékbeli átlagtól.

Ennek a m² ára
Kecskemét m² ár
1028 e Ft
867 e Ft -19%
Ennek az ára
Kecskemét átlagár
69.9 M Ft m Ft
66.4 m Ft -5%

Az ingatlan elhelyezkedése

Cím: Kecskemét

Eladó ikerházak a környékről

Kecskemét
Eladó ikerház

Kecskemét

89.9 M Ft
3 szoba
101 m²
Kiskunhalas
Eladó ikerház

Kiskunhalas

18.99 M Ft
3 szoba
75 m²
Kecskemét, Szent László város, Nagyváradi utca
Eladó ikerház

Kecskemét

28.7 M Ft
3 szoba
70 m²
Kecskemét
Eladó ikerház

Kecskemét

122.5 M Ft
4 szoba
155 m²
Kecskemét, Erzsébet-város, Sulyok utca
Eladó ikerház

Kecskemét

122.5 M Ft
4 szoba
155 m²
Kecskemét, Erzsébet-város, Sulyok utca
Eladó ikerház

Kecskemét

122.5 M Ft
4 szoba
155 m²
Kiskunhalas
Eladó ikerház

Kiskunhalas

52 M Ft
4 szoba
160 m²
Kecskemét
Eladó ikerház

Kecskemét

83.9 M Ft
4 szoba
151 m²
Kecskemét
Eladó ikerház

Kecskemét

118.5 M Ft
4 szoba
113 m²
Kecskemét, Bethlen-város, Szarvas utca
Eladó ikerház

Kecskemét

98 M Ft
4 szoba
110 m²
Kecskemét, Kecskemét-Hetényegyháza
Eladó ikerház

Kecskemét

43.3 M Ft
4 szoba
70 m²
Kecskemét, Mária-város, Szélmalom utca
Eladó ikerház

Kecskemét

109 M Ft
4 szoba
102 m²
Baja
Eladó ikerház

Baja

180 M Ft
4 szoba
300 m²
Kecskemét
Eladó ikerház

Kecskemét

83.9 M Ft
4 szoba
151 m²
Bugac, Rákóczi utca
Eladó ikerház

Bugac

50.5 M Ft
4 szoba
100 m²
Kecskemét, Szent László város, Nagyváradi utca
Eladó ikerház

Kecskemét

28.7 M Ft
3 szoba
70 m²
Kecskemét
Eladó ikerház

Kecskemét

85.9 M Ft
384 m²
94 m²
Kecskemét
Eladó ikerház

Kecskemét

89.9 M Ft
530 m²
98 m²
Kecskemét
Eladó ikerház

Kecskemét

122.5 M Ft
4 szoba
155 m²
Kecskemét, Mária-város, Szélmalom utca
Eladó ikerház

Kecskemét

109 M Ft
4 szoba
102 m²
Kecskemét
Eladó ikerház

Kecskemét

85 M Ft
3 szoba
91 m²
Kecskemét
Eladó ikerház

Kecskemét

118.5 M Ft
4 szoba
113 m²
Kecskemét, Bethlen-város, Szarvas utca
Eladó ikerház

Kecskemét

98 M Ft
4 szoba
110 m²
Kecskemét
Eladó ikerház

Kecskemét

85 M Ft
3 szoba
91 m²

Falusi CSOK ingatlanok

Ostffyasszonyfa
Eladó családi ház

Ostffyasszonyfa

37.9 M Ft
5 szoba
494 m²
Csemő
Eladó családi ház

Csemő

61.9 M Ft
3 szoba
88 m²
Újszilvás
Eladó családi ház

Újszilvás

49.9 M Ft
8 szoba
310 m²
Nagyharsány
Eladó téglalakás

Nagyharsány

22.5 M Ft
3 szoba
71 m²
Osztopán
Eladó családi ház

Osztopán

26.6 M Ft
2 szoba
73 m²
Balatonvilágos
Eladó családi ház

Balatonvilágos

144.9 M Ft
3 szoba
134 m²
Ságvár
Eladó családi ház

Ságvár

53.9 M Ft
3 szoba
75 m²
Szob
Eladó sorház

Szob

16 M Ft
2 szoba
45 m²