Astora Art House

Eladó ikerház
Kecskemét

68 900 000 Ft68.9 M Ft 970 423 Ft/m2
3 szoba
71 m2

Részletes adatok

Telekméret: 352 m2
Fűtés: Gázkazán
Energetikai besorolás: Nem adta meg a hirdető

Az OTP Bank lakáshitel ajánlataFizetett hirdetés

+36 70 633
Alt Róbertné
HOUSE36 Ingatlanbázis Kft.

Érdekel az OTP Bank kedvezményes lakáshitel ajánlata? *

* A kérdésre „Igen” válasz bejelölése esetén, az „Üzenet küldése” gombra kattintva kijelentem, hogy az OTP Bank Nyrt. Adatkezelési tájékoztatójának tartalmát megismertem és tudomásul vettem.

Eladó ikerház leírása

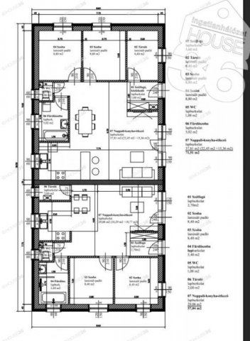
Kecskemét vonzáskörzetében Szabó Sándor Telepen, 2026 szeptemberi átadással kínáljuk megvételre, ikerház egyik felét, amely nappali + 2 szobás.

Jellemzői:

nettó 72 m2
ikerház belső része
nappali + 2 szoba
fürdő és WC külön
gáz cirkó​​, padlófűtés
klíma
tégla építés
választható burkolatok
START hitel igénybe vehető, 10% foglalóval
gardrób
terasz 9,4 m2


A tulajdonos kérésére az ingatlan bemutatása egy személyes konzultáció után történik, ahol részletes tájékoztatást kaphat az ingatlan paramétereiről és egyéb kényelmi szolgáltatásairól ! Figyelem az adatlap megbízónktól kapott adatok alapján készült, pontosságáért felelősséget nem tudunk vállalni!
Az iroda legfrissebb, aktuális kínálatát a HOUSE36 saját weboldalán találja!

Hirdetés feltöltve: 2025. 11. 03. Utoljára módosítva: 2026. 01. 26.

3 szobás ikerházak ára Kecskeméten

Ebből az összehasonlításból megtudhatod, hogyan viszonyul a lakás ára a környékbeli ikerházak átlagos árához. Ez nem azt jelenti, hogy ennyivel olcsóbb vagy drágább, mint amennyit a lakás ér, hanem hogy ennyivel tér el a környékbeli átlagtól.

Ennek a m² ára
Kecskemét m² ár
970 e Ft
869 e Ft -12%
Ennek az ára
Kecskemét átlagár
68.9 M Ft m Ft
65.3 m Ft -6%

Az ingatlan elhelyezkedése

Cím: Kecskemét

Eladó ikerházak a környékről

Eladó ikerház
Eladó ikerház

Kecskemét

87.9 M Ft
4 szoba
105 m2
Eladó ikerház
Eladó ikerház

Kecskemét

122.5 M Ft
4 szoba
155 m2
Eladó ikerház
Eladó ikerház

Kecskemét

120 M Ft
5 szoba
120 m2
Eladó ikerház
Eladó ikerház

Kecskemét

111.5 M Ft
5 szoba
171 m2
Eladó ikerház
Eladó ikerház

Kiskunmajsa

45 M Ft
3 szoba
113 m2
Eladó ikerház
Eladó ikerház

Kecskemét

49.99 M Ft
7 szoba
200 m2
Eladó ikerház
Eladó ikerház

Kecskemét

85 M Ft
3 szoba
91 m2
Eladó ikerház
Eladó ikerház

Kecskemét

85.9 M Ft
384 m²
94 m2
Eladó ikerház
Eladó ikerház

Kecskemét

110 M Ft
5 szoba
110 m2
Eladó ikerház
Eladó ikerház

Bugac, Rákóczi utca

50.5 M Ft
4 szoba
100 m2
Eladó ikerház
Eladó ikerház

Kecskemét

118.5 M Ft
4 szoba
113 m2
Eladó ikerház
Eladó ikerház

Baja

89.99 M Ft
5 szoba
150 m2
Eladó ikerház
Eladó ikerház

Kecskemét, Gerlice utca 24

152 M Ft
4 szoba
122 m2
Eladó ikerház
Eladó ikerház

Kecskemét

122.5 M Ft
4 szoba
155 m2
Eladó ikerház
Eladó ikerház

Kecskemét

83.9 M Ft
4 szoba
151 m2
Eladó ikerház
Eladó ikerház

Kecskemét, Erzsébet-város, Sulyok utca

122.5 M Ft
4 szoba
155 m2
Eladó ikerház
Eladó ikerház

Kiskunhalas

18.99 M Ft
3 szoba
75 m2
Eladó ikerház
Eladó ikerház

Kecskemét

49.99 M Ft
7 szoba
200 m2
Eladó ikerház
Eladó ikerház

Kecskemét

110 M Ft
5 szoba
110 m2
Eladó ikerház
Eladó ikerház

Kecskemét

83.9 M Ft
4 szoba
151 m2
Eladó ikerház
Eladó ikerház

Kecskemét

122.5 M Ft
4 szoba
155 m2
Eladó ikerház
Eladó ikerház

Izsák

39.9 M Ft
300 m²
67 m2
Eladó ikerház
Eladó ikerház

Kecskemét

111.5 M Ft
5 szoba
171 m2
Eladó ikerház
Eladó ikerház

Lajosmizse

75 M Ft
5 szoba
111 m2

Falusi CSOK ingatlanok

Eladó családi ház
Eladó családi ház

Nádasdladány

45.9 M Ft
1 + 1 szoba
50 m2
Eladó családi ház
Eladó családi ház

Töttös, Rákóczi utca

55.9 M Ft
4 szoba
129 m2
Eladó családi ház
Eladó családi ház

Seregélyes

75 M Ft
6 szoba
160 m2
Eladó családi ház
Eladó családi ház

Balatonudvari

79.9 M Ft
4 szoba
97 m2
Eladó családi ház
Eladó családi ház

Hosszúpereszteg

35 M Ft
4 szoba
145 m2
Eladó családi ház
Eladó családi ház

Mályi

84.9 M Ft
4 szoba
100 m2
Eladó családi ház
Eladó családi ház

Somogygeszti

10.9 M Ft
2 szoba
115 m2
Eladó családi ház
Eladó családi ház

Sárok, Kossuth Lajos utca

21.9 M Ft
3 szoba
97 m2