River Life

Eladó ikerház
Jászberény

+ 10 kép 1/13
58 900 000 Ft58.9 M Ft 709 639 Ft/m2
4 szoba
83 m2
építés éve:2025

Részletes adatok

Telekméret: 700 m2
Fűtés: Egyéb
Energetikai besorolás: Nem adta meg a hirdető

Az OTP Bank lakáshitel ajánlataFizetett hirdetés

3629998845
Mikus Kornélia
referens

Érdekel az OTP Bank kedvezményes lakáshitel ajánlata? *

* A kérdésre „Igen” válasz bejelölése esetén, az „Üzenet küldése” gombra kattintva kijelentem, hogy az OTP Bank Nyrt. Adatkezelési tájékoztatójának tartalmát megismertem és tudomásul vettem.

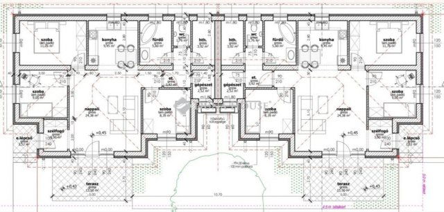
Eladó ikerház leírása

Jászberényben a Szatmári lakóparkban Eladó Csodás Környezetben Ikerházfél!

A ELSŐ ikerfél 280 m2 kizárólagos használatú telekrésszel rendelkezik.

Az ingatlan 30-as Nútféderes tégla falazóelemből épül, fa födémmel.

A tető héjazata antracit betoncserép , a homlokzatok 15 cm EPS, a padló 10 cm Austrotherm AT-N100-as, a vízszintes födém 30 cm Ásványgyapot szigeteléssel lesz ellátva.

Hat légkamrás 3 rétegű üvegekkel szerelt nyílászárók kerülnek beépítésre.

A fűtést 10 mkw-os monoblock-os hőszivattyús rendszer fogja ellátni, padlófűtéssel. A használati meleg vízről hőszivattyús bojler gondoskodik.

A műszaki tartalom választható az alábbi költségkereten belül:

-hidegburkolat:4000.- Ft./m2-ig

-melegburkolat: 4000.- Ft./m2-ig

-csaptelepek:25.000.- Ft./db

-kád vagy zuhany: 40.000.- Ft.

-beltéri ajtók:50.000.- Ft./db

Elektromos kiépítés:

-Konnektorok szobákban: 3 db

-Konnektorok nappaliban 4 db + internet és kábel tv kiállás

-Konnektorok konyhában: 6 db

-Világítás helyiségenként 1-1 db

-Kábeltévé: Előkészítés

Magasabb árú tatalom is választható a különbség finanszírozásával.

Riasztó előkészítés és kapu mozgató elektronika előkészítés is készül.

A kivitelező korábban épített, már értékesített és birtokba adott ingatlanjait komoly érdeklődés esetén szívesen megmutatom referenciaként.

Várható átadás 2026 első negyedév.

Várom megtisztelő Hívását!

Tekintsük meg új Otthonát!
Keressen bizalommal, akár eladna vagy vásárolna.
A hét minden napján állok rendelkezésére a Duna House teljes kínálatával.
Hitelügyintézőnk díjmentes segítséget nyújt.
Mikus Kornélia tel.: +36/30-208-20-06 email.: mikus.kornelia@dh.hu

Referencia szám: HZ097402-ZE

Hirdetés feltöltve: 2025. 11. 05. Utoljára módosítva: 2026. 02. 05.

4 szobás ikerházak ára Jászberényben

Ebből az összehasonlításból megtudhatod, hogyan viszonyul a lakás ára a környékbeli ikerházak átlagos árához. Ez nem azt jelenti, hogy ennyivel olcsóbb vagy drágább, mint amennyit a lakás ér, hanem hogy ennyivel tér el a környékbeli átlagtól.

Ennek a m² ára
Jászberény m² ár
710 e Ft
698 e Ft -2%
Ennek az ára
Jászberény átlagár
58.9 M Ft m Ft
59.6 m Ft 1%

Az ingatlan elhelyezkedése

Cím: Jászberény

Eladó ingatlanok a környékről

Eladó ikerház
Eladó ikerház

Jászberény

58.99 M Ft
3 szoba
83 m2
Eladó ikerház
Eladó ikerház

Szolnok

82.9 M Ft
5 szoba
140 m2
Eladó családi ház
Eladó családi ház

Jásztelek

31.99 M Ft
3 szoba
78 m2
Eladó ikerház
Eladó ikerház

Jászberény

64.95 M Ft
4 szoba
79 m2
Eladó családi ház
Eladó családi ház

Jászalsószentgyörgy

24 M Ft
3 szoba
94 m2
Eladó ikerház
Eladó ikerház

Szolnok

79 M Ft
4 szoba
210 m2
Eladó ikerház
Eladó ikerház

Jászberény

64.95 M Ft
4 szoba
79 m2
Eladó ikerház
Eladó ikerház

Jászberény

61.9 M Ft
3 szoba
69 m2
Eladó ikerház
Eladó ikerház

Szolnok

82.9 M Ft
5 szoba
140 m2
Eladó ikerház
Eladó ikerház

Jászberény

61.9 M Ft
3 szoba
87 m2
Eladó ikerház
Eladó ikerház

Újszász

13.9 M Ft
3 szoba
63 m2
Eladó ikerház
Eladó ikerház

Jászberény

65.9 M Ft
3 szoba
87 m2
Eladó családi ház
Eladó családi ház

Jászkisér

31.5 M Ft
3 + 1 szoba
76 m2
Eladó ikerház
Eladó ikerház

Jászberény

63.8 M Ft
4 szoba
79 m2
Eladó ikerház
Eladó ikerház

Szolnok

69.9 M Ft
4 szoba
100 m2
Eladó ikerház
Eladó ikerház

Jászberény

82 M Ft
4 szoba
85 m2
Eladó családi ház
Eladó családi ház

Törökszentmiklós

21.5 M Ft
667 m²
77 m2
Eladó ikerház
Eladó ikerház

Mezőtúr

14.9 M Ft
3 + 1 szoba
111 m2
Eladó ikerház
Eladó ikerház

Jászberény

61.9 M Ft
3 szoba
87 m2
Eladó ikerház
Eladó ikerház

Jászberény

63.8 M Ft
4 szoba
79 m2
Eladó ikerház
Eladó ikerház

Jászberény

59.9 M Ft
4 szoba
83 m2
Eladó téglalakás
Eladó téglalakás

Jászberény

29.9 M Ft
2 szoba
55 m2
Eladó családi ház
Eladó családi ház

Törökszentmiklós

8.5 M Ft
2 szoba
42 m2
Eladó ikerház
Eladó ikerház

Jászberény

78 M Ft
4 szoba
85 m2

Falusi CSOK ingatlanok

Eladó téglalakás
Eladó téglalakás

Herend

63 M Ft
3 szoba
69 m2
Eladó családi ház
Eladó családi ház

Tiszaroff

12.5 M Ft
2 szoba
63 m2
Eladó családi ház
Eladó családi ház

Ádánd

69.9 M Ft
6 szoba
251 m2
Eladó családi ház
Eladó családi ház

Borota

16.9 M Ft
2 szoba
75 m2
Eladó családi ház
Eladó családi ház

Bag

16.9 M Ft
6 szoba
160 m2
Eladó családi ház
Eladó családi ház

Tabdi

95 M Ft
45 szoba
1490 m2
Eladó családi ház
Eladó családi ház

Szilvásvárad

50 M Ft
3 szoba
69 m2
Eladó családi ház
Eladó családi ház

Recsk

23 M Ft
3 szoba
98 m2