Metrodom

Eladó ikerház
Gödöllő, földszint

137 900 000 Ft137.9 M Ft 919 333 Ft/m2
4 szoba
150 m2
földszint
építés éve:2026

Részletes adatok

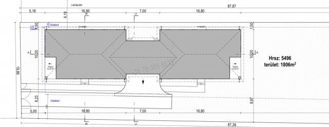
Telekméret: 1300 m2
Fűtés: Egyéb
Parkolás: Garázs
Közmű: Víz, Villany, Csatorna
Energetikai besorolás: Nem adta meg a hirdető

Az OTP Bank lakáshitel ajánlataFizetett hirdetés

+36 70 396
Kómár-Benke Nikoletta
referens

Érdekel az OTP Bank kedvezményes lakáshitel ajánlata? *

* A kérdésre „Igen” válasz bejelölése esetén, az „Üzenet küldése” gombra kattintva kijelentem, hogy az OTP Bank Nyrt. Adatkezelési tájékoztatójának tartalmát megismertem és tudomásul vettem.

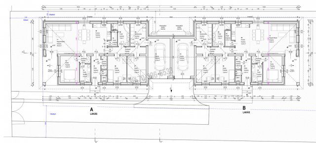
Eladó ikerház leírása

Pest Vármegyében, Budapesttől mindössze 20 percre Gödöllőn, Alvég városrészen, aszfaltozott utcában, eladásra kínálok egy 1800 nm-es telekre tervezett ikerházat.
AZ INGATLANOK GARÁZSON KERESZTŰL KAPCSOLÓDNAK EGYMÁSHOZ.
Mindkét házat földszintesre tervezték.

„A” ház jellemzői:
- 400 nm-es kert
- 150 nm ház
- tágas előtér (6,3 nm)
- mellékhelyiség (1,8 nm)
- Gardrób (1,9 nm)
- 3 szoba (12,64 nm, 12.64 nm, 12,60 nm)
- nappali, étkező (35.52 nm)
- konyha (12,54 nm)
- fürdőszoba + WC (7,84 nm)
- fürdőszoba (4,93)
- mosókonyha (9 nm)
- tároló (2,79 nm)
- közlekedő (6,71 nm)
- közlekedő (2,04 nm)
- garázs ˙(21 nm)
- terasz (10.35 nm)

„B” ház jellemzői:
- 1300 nm-es kert
- 150 nm- es ház
- tágas előtér (6,3 nm)
- mellékhelyiség (1,8 nm)
- Gardrób (1,9 nm)
- 3 szoba (12,64 nm, 12.64 nm, 12,60 nm)
- nappali, étkező (35.52 nm)
- konyha (12,54 nm)
- fürdőszoba + WC (7,84 nm)
- fürdőszoba (4,93 nm)
- mosókonyha (9 nm)
- tároló (2,79 nm)
- közlekedő (2,04 nm)
- közlekedő (6,71 nm)
- garázs ˙(21 nm)
- terasz (10.35 nm)

Mind két ingatlan minőségi anyagokból épül, energiatakarékos, hőszivattyús fűtéssel, hőleadás padlófűtés. Részletes tájékoztatást, műszaki leírást és vállalást e-mail címre továbbítok.

Kert:
- körbe kerítve (zsaluköves kerítés)
- kis és nagykapu
- térkövezett járda és parkoló
- két ház között kerítés
- építési törmelékektől megtisztítva kerül átadásra

A közelben minden…
-Tesco, Lidl, Aldi, H&M éttermek és egyéb élelmiszerboltok
- Iskola, óvoda, buszmegálló, M3
Az ingatlant nagy múltú, számos referenciával rendelkező kivitelező építi, akivel gördülékeny a munka így szívből tudom ajánlani.
A házak rugalmasan megtekinthetők, hétvégén is, referenciaházak megtekintése csakis előre egyeztetett időpontokban.

Ezekkel támogatom a vásárlást:
- teljes körű DÍJMENTES hitelügyintézés
- ügyvédi háttértámogatás

Portfóliómban további igényes, új építésű ingatlanok várják. A Referens további hirdetései gombra kattintva érheti el őket.
Keressen bizalommal.

Hirdetés feltöltve: 2025. 11. 26.

4 szobás ikerházak ára Gödöllőn

Ebből az összehasonlításból megtudhatod, hogyan viszonyul a lakás ára a környékbeli ikerházak átlagos árához. Ez nem azt jelenti, hogy ennyivel olcsóbb vagy drágább, mint amennyit a lakás ér, hanem hogy ennyivel tér el a környékbeli átlagtól.

Ennek a m² ára
Gödöllő m² ár
919 e Ft
1029 e Ft 11%
Ennek az ára
Gödöllő átlagár
137.9 M Ft m Ft
136 m Ft -1%

Az ingatlan elhelyezkedése

Cím: Gödöllő, földszint

Eladó ikerházak a környékről

Eladó ikerház
Eladó ikerház

Mogyoród, Fóti út

188 M Ft
6 szoba
182 m2
Eladó ikerház
Eladó ikerház

Vác

149.9 M Ft
5 szoba
202 m2
Eladó ikerház
Eladó ikerház

Gödöllő

94.5 M Ft
4 szoba
128 m2
Eladó ikerház
Eladó ikerház

Gödöllő

129.9 M Ft
5 szoba
130 m2
Eladó ikerház
Eladó ikerház

Szentendre

359 M Ft
5 szoba
289 m2
Eladó ikerház
Eladó ikerház

Vác

94.5 M Ft
4 + 1 szoba
126 m2
Eladó ikerház
Eladó ikerház

Szentendre

179 M Ft
5 + 1 szoba
147 m2
Eladó ikerház
Eladó ikerház

Gödöllő

115 M Ft
4 szoba
110 m2
Eladó ikerház
Eladó ikerház

Diósd

206.25 M Ft
5 szoba
184 m2
Eladó ikerház
Eladó ikerház

Gödöllő

149.9 M Ft
4 szoba
163 m2
Eladó ikerház
Eladó ikerház

Gödöllő

144.65 M Ft
5 szoba
137 m2
Eladó ikerház
Eladó ikerház

Gödöllő

144.65 M Ft
5 szoba
137 m2
Eladó ikerház
Eladó ikerház

Gödöllő

105 M Ft
4 szoba
110 m2
Eladó ikerház
Eladó ikerház

Vác

96.5 M Ft
4 + 1 szoba
129 m2
Eladó ikerház
Eladó ikerház

Gödöllő, Kertváros, Gödöllő - Pest megye

144.65 M Ft
3 + 2 szoba
120 m2
Eladó ikerház
Eladó ikerház

Üröm

249.9 M Ft
4 szoba
154 m2
Eladó ikerház
Eladó ikerház

Gödöllő

149.9 M Ft
5 szoba
126 m2
Eladó ikerház
Eladó ikerház

Érd, Érdligeten található utca

64.9 M Ft
4 szoba
112 m2
Eladó ikerház
Eladó ikerház

Gödöllő

144.65 M Ft
5 szoba
137 m2
Eladó ikerház
Eladó ikerház

Dunaharaszti

124.999 M Ft
4 szoba
105 m2
Eladó ikerház
Eladó ikerház

Gödöllő

164 M Ft
4 szoba
150 m2
Eladó ikerház
Eladó ikerház

Rád

100 M Ft
4 szoba
152 m2
Eladó ikerház
Eladó ikerház

Pécel, Pécel - kertváros

127 M Ft
4 szoba
125 m2
Eladó ikerház
Eladó ikerház

Gödöllő

129.9 M Ft
5 szoba
130 m2

Falusi CSOK ingatlanok

Eladó családi ház
Eladó családi ház

Szarvaskend

26.9 M Ft
2 szoba
83 m2
Eladó családi ház
Eladó családi ház

Ónod, Barátság 9

31.999 M Ft
3 szoba
150 m2
Eladó családi ház
Eladó családi ház

Ónod, Kossuth út 10

27.499 M Ft
3 + 2 szoba
120 m2
Eladó családi ház
Eladó családi ház

Kesztölc

129.9 M Ft
8 szoba
210 m2
Eladó családi ház
Eladó családi ház

Jászalsószentgyörgy

39.9 M Ft
2 szoba
74 m2
Eladó családi ház
Eladó családi ház

Kaposgyarmat

695 M Ft
6 szoba
610 m2
Eladó családi ház
Eladó családi ház

Pécsely, Szőlő Dülő

499 M Ft
4 + 2 szoba
183 m2
Eladó családi ház
Eladó családi ház

Sárisáp, Orgona utca

60 M Ft
4 szoba
145 m2