Metrodom

Eladó ikerház
Fót

+ 3 kép 1/6
142 600 000 Ft142.6 M Ft 1 080 303 Ft/m2
4 szoba
132 m²
építés éve:2026

Részletes adatok

Telekméret: 423 m2
Fűtés: Egyéb
Energetikai besorolás: E

Az OTP Bank lakáshitel ajánlataFizetett hirdetés

+36 30 667
Frank Zénó András
referens

Érdekel az OTP Bank kedvezményes lakáshitel ajánlata? *

* A kérdésre „Igen” válasz bejelölése esetén, az „Üzenet küldése” gombra kattintva kijelentem, hogy az OTP Bank Nyrt. Adatkezelési tájékoztatójának tartalmát megismertem és tudomásul vettem.

Eladó ikerház leírása

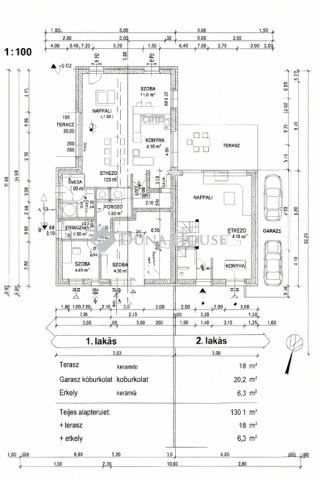
Új építésű ikerház ÁLOMOTTHON Fóton Csillagdomb projektÁtadás: 2026 márciusElhelyezkedés: Fót, Csillagdomb modern, családbarát környezetIngatlan típusa: ikerház külön bejárattal és saját telekkelFőbb paraméterek:Telek: 420 m² saját használatú területLakótér: 101,9 m² jól átgondolt, praktikus elrendezésselGépkocsi-beálló: 28,20 m²Erkély: 6,3 m2Terasz: 18 m2Fűtés-hűtés: hőszivattyú, padlófűtés és mennyezethűtés A+ energiaosztálySzigetelés: 15 cm homlokzati hőszigetelésKialakítás: nappali + 3 hálószoba, két fürdőszoba, külön háztartási helyiség.Kivitelezés: magas műszaki tartalom, modern anyaghasználatKörnyezeti előnyök:Újonnan kialakított, rendezett utcák, zöldövezet, családias lakókörnyezetKiváló megközelíthetőség: Budapest 1520 perc autóval, jó tömegközlekedési kapcsolatokIskolák, óvodák, bevásárlási lehetőségek a közelbenMiért érdemes megtekinteni?Ez az ingatlan a modern komfort és a nyugodt kertvárosi élet tökéletes kombinációja.Az energiatakarékos megoldásoknak és a minőségi kivitelezésnek köszönhetően hosszú távon is értékálló otthon.Minden aktuális állami támogatás és hitel igénybe vehető.Érdeklődés:További információért és helyszíni megtekintésért keressen bizalommal a megadott elérhetőségen.Az ár, alaprajz és műszaki dokumentáció kérésre rendelkezésre állnak. Magas fokú hitel tanácsadásban is tudok segíteni teljesen díjmentesen! Hívjon bizalommal!

Referencia szám: HZ058827

Hirdetés feltöltve: 2026. 03. 03. Utoljára módosítva: 2026. 04. 17.

4 szobás ikerházak ára Fóton

Ebből az összehasonlításból megtudhatod, hogyan viszonyul a lakás ára a környékbeli ikerházak átlagos árához. Ez nem azt jelenti, hogy ennyivel olcsóbb vagy drágább, mint amennyit a lakás ér, hanem hogy ennyivel tér el a környékbeli átlagtól.

Ennek a m² ára
Fót m² ár
1080 e Ft
1168 e Ft 8%
Ennek az ára
Fót átlagár
142.6 M Ft m Ft
136.4 m Ft -5%

Az ingatlan elhelyezkedése

Cím: Fót

Eladó ikerházak a környékről

Fót
Eladó ikerház

Fót

124.3 M Ft
4 szoba
121 m²
Fót
Eladó ikerház

Fót

121 M Ft
4 szoba
97 m²
Fót
Eladó ikerház

Fót

120 M Ft
4 szoba
108 m²
Diósd
Eladó ikerház

Diósd

213.46 M Ft
5 szoba
186 m²
Vác
Eladó ikerház

Vác

96.7 M Ft
4 + 1 szoba
126 m²
Fót
Eladó ikerház

Fót

119.99 M Ft
4 + 1 szoba
130 m²
Fót
Eladó ikerház

Fót

109 M Ft
3 szoba
89 m²
Nagytarcsa
Eladó ikerház

Nagytarcsa

119.9 M Ft
4 szoba
103 m²
Vác
Eladó ikerház

Vác

99.7 M Ft
4 + 1 szoba
129 m²
Fót
Eladó ikerház

Fót

119.99 M Ft
4 szoba
120 m²
Szentendre
Eladó ikerház

Szentendre

359 M Ft
5 + 1 szoba
289 m²
Fót
Eladó ikerház

Fót

136 M Ft
4 szoba
136 m²
Vácrátót
Eladó ikerház

Vácrátót

99.9 M Ft
3 + 2 szoba
112 m²
Vácrátót
Eladó ikerház

Vácrátót

94.9 M Ft
2 + 3 szoba
108 m²
Pécel, Pécel - kertváros
Eladó ikerház

Pécel

127 M Ft
4 szoba
125 m²
Mogyoród
Eladó ikerház

Mogyoród

129 M Ft
5 szoba
123 m²
Budakalász
Eladó ikerház

Budakalász

159 M Ft
6 szoba
140 m²
Vác
Eladó ikerház

Vác

149.9 M Ft
5 szoba
202 m²
Fót
Eladó ikerház

Fót

121 M Ft
4 szoba
111 m²
Fót
Eladó ikerház

Fót

115 M Ft
4 szoba
108 m²
Fót
Eladó ikerház

Fót

113 M Ft
4 szoba
104 m²
Szentendre
Eladó ikerház

Szentendre

179 M Ft
5 + 1 szoba
147 m²
Kiskunlacháza
Eladó ikerház

Kiskunlacháza

44.9 M Ft
2 szoba
39 m²
Fót
Eladó ikerház

Fót

121 M Ft
4 szoba
121 m²

Falusi CSOK ingatlanok

Szarvaskő, Rózsa utca
Eladó családi ház

Szarvaskő

54.9 M Ft
1 + 3 szoba
140 m²
Bag
Eladó családi ház

Bag

110 M Ft
5 szoba
320 m²
Selyeb
Eladó családi ház

Selyeb

20.5 M Ft
2 szoba
350 m²
Cece
Eladó családi ház

Cece

44.9 M Ft
4 szoba
103 m²
Szarvaskő
Eladó családi ház

Szarvaskő

49.5 M Ft
5 szoba
160 m²
Ádánd
Eladó családi ház

Ádánd

53.5 M Ft
6 szoba
180 m²
Törtel
Eladó családi ház

Törtel

40 M Ft
2 + 1 szoba
81 m²
Villány
Eladó családi ház

Villány

65 M Ft
3 szoba
95 m²