Eladó ikerház
Fót

+ 1 kép 1/4
119 990 000 Ft119.99 M Ft 923 000 Ft/m2
4 + 1 szoba
130 m2
építés éve:2026

Részletes adatok

Telekméret: 535 m2
Fűtés: Gázkazán
Parkolás: Garázs
Közmű: Víz, Gáz, Villany, Csatorna, Szélessáv, Telefon
Energetikai besorolás: Nem adta meg a hirdető

Az OTP Bank lakáshitel ajánlataFizetett hirdetés

+36 70 316
PRO-LUX Ingatlaniroda
referens

Érdekel az OTP Bank kedvezményes lakáshitel ajánlata? *

* A kérdésre „Igen” válasz bejelölése esetén, az „Üzenet küldése” gombra kattintva kijelentem, hogy az OTP Bank Nyrt. Adatkezelési tájékoztatójának tartalmát megismertem és tudomásul vettem.

Eladó ikerház leírása

Eladó Új Építésű Ikerházfél Fóton – a Sipos Pál téri Játszótér közelében!

Modern, energiatakarékos otthon Fót egyik legkedveltebb, csendes részén!

Főbb jellemzők:
Teljes telekméret: 1127 m²
Egy ikerházfélhez kb. 563,5 m² saját telekrész tartozik
Fűtés: Kondenzációs cirkó padlófűtéssel
Szigetelés:
Oldalfalak: 15 cm
Aljzat: 10 cm
Tető: 30 cm

Villamos energia: 3x16A – napelem telepítésére is alkalmas.

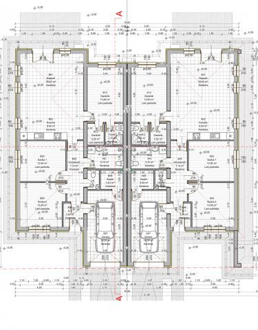
Helyiségek és méreteik (nettó alapterület):
Nappali: 28,62 m²
Szoba 1: 12,92 m²
Szoba 2: 13,43 m²
Szoba 3: 13,8 m²
Előszoba: 3,4 m²
Közlekedő: 7,4 m²
Gardrób: 2,52 m²
Fürdőszoba 1: 2,7 m²
Fürdőszoba 2: 5,7 m²
WC: 1,0 m²
Kazánház: 3,0 m²
Fűtött garázs: 18,0 m²
Összes nettó alapterület (belső tér):
112,49 m² + 18,0 m² garázs = összesen 130,49 m²
(A belső lakótér önmagában: 112,49 m²)

Extrák – benne vannak az árban:
Burkolatok, szaniterek (egyedileg választhatók)
Belső ajtók
Teljes tereprendezés
Épített kerítés
Motoros garázskapu

Megbízható kivitelező
A kivitelező már számos családi házat és ikerházat épített a Fót–Dunakeszi–Göd térségben – számos referenciával tudunk szolgálni. Tapasztalt, megbízható csapat, garanciával.

További információért vagy megtekintésért hívjon bizalommal!
Néhány adat a megbízó által közölt információ alapján került feltüntetésre, így a tévedés jogát fenntartjuk!

Egyéb információért hívjon bizalommal.
Amiben segítjük Önöket:
- hitel ügyintézés
- CSOK ügyintézés
- energetikai tanúsítvány
- földhivatali háttér
- földmérés
- értékbecslés
- ingyenes ajánlatküldés országos rendszerből, e-mail cím megadásával.

Hirdetés feltöltve: 2025. 10. 02. Utoljára módosítva: 2025. 10. 02.

5 szobás ikerházak ára Fóton

Ebből az összehasonlításból megtudhatod, hogyan viszonyul a lakás ára a környékbeli ikerházak átlagos árához. Ez nem azt jelenti, hogy ennyivel olcsóbb vagy drágább, mint amennyit a lakás ér, hanem hogy ennyivel tér el a környékbeli átlagtól.

Ennek a m² ára
Fót m² ár
923 e Ft
1005 e Ft 8%
Ennek az ára
Fót átlagár
119.99 M Ft m Ft
144.9 m Ft 17%

Az ingatlan elhelyezkedése

Cím: Fót

Eladó ikerházak a környékről

Eladó ikerház
Eladó ikerház

Fót

340 M Ft
3 szoba
267 m2
Eladó ikerház
Eladó ikerház

Fót

124.3 M Ft
4 szoba
121 m2
Eladó ikerház
Eladó ikerház

Fót

113 M Ft
4 szoba
110 m2
Eladó ikerház
Eladó ikerház

Pécel, Pécel - kertváros

127 M Ft
4 szoba
125 m2
Eladó ikerház
Eladó ikerház

Fót

136 M Ft
4 szoba
136 m2
Eladó ikerház
Eladó ikerház

Pécel

149.9 M Ft
5 szoba
306 m2
Eladó ikerház
Eladó ikerház

Tahitótfalu

88.9 M Ft
4 szoba
110 m2
Eladó ikerház
Eladó ikerház

Érd

139.9 M Ft
5 szoba
159 m2
Eladó ikerház
Eladó ikerház

Fót

95 M Ft
3 szoba
89 m2
Eladó ikerház
Eladó ikerház

Fót

95 M Ft
3 szoba
89 m2
Eladó ikerház
Eladó ikerház

Kiskunlacháza

89.1 M Ft
4 szoba
99 m2
Eladó ikerház
Eladó ikerház

Érd, Érdliget - Kutyavár, Érdligeten található utca

64.9 M Ft
4 szoba
112 m2
Eladó ikerház
Eladó ikerház

Pilisjászfalu

70.563 M Ft
4 szoba
61 m2
Eladó ikerház
Eladó ikerház

Fót

124.3 M Ft
4 szoba
96 m2
Eladó ikerház
Eladó ikerház

Fót

74.9 M Ft
2 + 2 szoba
108 m2
Eladó ikerház
Eladó ikerház

Pomáz

129.5 M Ft
4 szoba
100 m2
Eladó ikerház
Eladó ikerház

Vác

96.5 M Ft
4 + 1 szoba
129 m2
Eladó ikerház
Eladó ikerház

Fót

115 M Ft
4 szoba
108 m2
Eladó ikerház
Eladó ikerház

Mogyoród, Fóti út

188 M Ft
6 szoba
182 m2
Eladó ikerház
Eladó ikerház

Üröm

249.9 M Ft
4 szoba
154 m2
Eladó ikerház
Eladó ikerház

Fót

115 M Ft
4 szoba
108 m2
Eladó ikerház
Eladó ikerház

Szentendre

359 M Ft
5 szoba
289 m2
Eladó ikerház
Eladó ikerház

Fót

121 M Ft
4 szoba
121 m2
Eladó ikerház
Eladó ikerház

Vác

94.5 M Ft
4 + 1 szoba
126 m2

Falusi CSOK ingatlanok

Eladó téglalakás
Eladó téglalakás

Tófej

31.5 M Ft
5 szoba
85 m2
Eladó családi ház
Eladó családi ház

Szigetbecse

35.9 M Ft
3 + 2 szoba
107 m2
Eladó családi ház
Eladó családi ház

Nagybaracska

28.2 M Ft
3 szoba
100 m2
Eladó családi ház
Eladó családi ház

Rém

11 M Ft
2 szoba
60 m2
Eladó családi ház
Eladó családi ház

Jánoshida

9.5 M Ft
2 + 1 szoba
81 m2
Eladó családi ház
Eladó családi ház

Bag

86 M Ft
3 szoba
86 m2
Eladó családi ház
Eladó családi ház

Őr, Dózsa György utca 17

1.6 M Ft
1 + 1 szoba
87 m2
Eladó családi ház
Eladó családi ház

Tápiószőlős

8 M Ft
2 szoba
50 m2