Eladó ikerház
Fót

+ 2 kép 1/5
144 000 000 Ft144 M Ft 1 090 909 Ft/m2
4 szoba
132 m2
építés éve:2026

Részletes adatok

Telekméret: 423 m2
Fűtés: Egyéb
Energetikai besorolás: Nem adta meg a hirdető

Az OTP Bank lakáshitel ajánlataFizetett hirdetés

+36 1 690
Takácsné Domján Adrienn
Duna House Kispest

Érdekel az OTP Bank kedvezményes lakáshitel ajánlata? *

* A kérdésre „Igen” válasz bejelölése esetén, az „Üzenet küldése” gombra kattintva kijelentem, hogy az OTP Bank Nyrt. Adatkezelési tájékoztatójának tartalmát megismertem és tudomásul vettem.

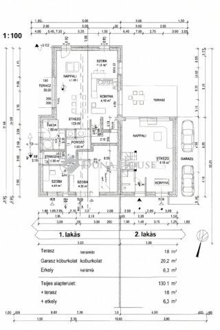
Eladó ikerház leírása

Új építésű ikerház ÁLOMOTTHON Fóton Csillagdomb projekt

Átadás: 2026 március
Elhelyezkedés: Fót, Csillagdomb modern, családbarát környezet
Ingatlan típusa: ikerház külön bejárattal és saját telekkel

Főbb paraméterek:

Telek: 420 m² saját használatú terület

Lakótér: 101,9 m² jól átgondolt, praktikus elrendezéssel

Gépkocsi-beálló: 28,20 m²
Erkély: 6,3 m2
Terasz: 18 m2

Fűtés-hűtés: hőszivattyú, padlófűtés és mennyezethűtés A+ energiaosztály

Szigetelés: 15 cm homlokzati hőszigetelés

Kialakítás: nappali + 3 hálószoba, két fürdőszoba, külön háztartási helyiség.

Kivitelezés: magas műszaki tartalom, modern anyaghasználat

Környezeti előnyök:

Újonnan kialakított, rendezett utcák, zöldövezet, családias lakókörnyezet

Kiváló megközelíthetőség: Budapest 1520 perc autóval, jó tömegközlekedési kapcsolatok

Iskolák, óvodák, bevásárlási lehetőségek a közelben

Miért érdemes megtekinteni?

Ez az ingatlan a modern komfort és a nyugodt kertvárosi élet tökéletes kombinációja.
Az energiatakarékos megoldásoknak és a minőségi kivitelezésnek köszönhetően hosszú távon is értékálló otthon.
Minden aktuális állami támogatás és hitel igénybe vehető.

Érdeklődés:

További információért és helyszíni megtekintésért keressen bizalommal a megadott elérhetőségen.
Az ár, alaprajz és műszaki dokumentáció kérésre rendelkezésre állnak. Magas fokú hitel tanácsadásban is tudok segíteni teljesen díjmentesen! Hívjon bizalommal!
Hitellel vásárlás esetén bankfüggetlen és DÍJMENTES hiteltanácsadó közreműködését biztosítjuk, aki a teljes folyamaton végigkíséri Önt.
Az adásvétel biztonságos és gördülékeny bonyolítása érdekében tapasztalt ingatlan szakjogászaink szolgáltatását is ajánlom.

Referencia szám: HZ058827

Hirdetés feltöltve: 2025. 10. 15. Utoljára módosítva: 2025. 10. 15.

4 szobás ikerházak ára Fóton

Ebből az összehasonlításból megtudhatod, hogyan viszonyul a lakás ára a környékbeli ikerházak átlagos árához. Ez nem azt jelenti, hogy ennyivel olcsóbb vagy drágább, mint amennyit a lakás ér, hanem hogy ennyivel tér el a környékbeli átlagtól.

Ennek a m² ára
Fót m² ár
1091 e Ft
1076 e Ft -1%
Ennek az ára
Fót átlagár
144 M Ft m Ft
126.9 m Ft -13%

Az ingatlan elhelyezkedése

Cím: Fót

Eladó ikerházak a környékről

Eladó ikerház
Eladó ikerház

Fót

121 M Ft
4 szoba
111 m2
Eladó ikerház
Eladó ikerház

Fót

108 M Ft
2 + 3 szoba
112 m2
Eladó ikerház
Eladó ikerház

Mogyoród, Fóti út

188 M Ft
6 szoba
182 m2
Eladó ikerház
Eladó ikerház

Fót

115 M Ft
5 szoba
122 m2
Eladó ikerház
Eladó ikerház

Szentendre, Szentendre

398 M Ft
5 szoba
267 m2
Eladó ikerház
Eladó ikerház

Dunakeszi

149 M Ft
1 + 4 szoba
127 m2
Eladó ikerház
Eladó ikerház

Fót

74.9 M Ft
2 + 2 szoba
108 m2
Eladó ikerház
Eladó ikerház

Fót

115 M Ft
4 szoba
108 m2
Eladó ikerház
Eladó ikerház

Kiskunlacháza

89.1 M Ft
4 szoba
99 m2
Eladó ikerház
Eladó ikerház

Pilisjászfalu

70.563 M Ft
4 szoba
61 m2
Eladó ikerház
Eladó ikerház

Fót

124.3 M Ft
4 szoba
121 m2
Eladó ikerház
Eladó ikerház

Üröm

249.9 M Ft
4 szoba
154 m2
Eladó ikerház
Eladó ikerház

Fót

136 M Ft
4 szoba
136 m2
Eladó ikerház
Eladó ikerház

Vác

175.356 M Ft
5 szoba
165 m2
Eladó ikerház
Eladó ikerház

Fót, Kertvárosi övezetben épülő IKERHÁZ

113 M Ft
4 szoba
130 m2
Eladó ikerház
Eladó ikerház

Rád

100 M Ft
4 szoba
152 m2
Eladó ikerház
Eladó ikerház

Fót

113 M Ft
4 szoba
110 m2
Eladó ikerház
Eladó ikerház

Fót

115 M Ft
4 szoba
108 m2
Eladó ikerház
Eladó ikerház

Fót

113 M Ft
4 szoba
104 m2
Eladó ikerház
Eladó ikerház

Fót

115 M Ft
4 szoba
108 m2
Eladó ikerház
Eladó ikerház

Dunaharaszti

124.999 M Ft
4 szoba
105 m2
Eladó ikerház
Eladó ikerház

Tahitótfalu

88.9 M Ft
4 szoba
110 m2
Eladó ikerház
Eladó ikerház

Fót

120 M Ft
3 + 1 szoba
123 m2
Eladó ikerház
Eladó ikerház

Vác

149.9 M Ft
5 szoba
202 m2

Falusi CSOK ingatlanok

Eladó családi ház
Eladó családi ház

Pécsely

399 M Ft
6 szoba
250 m2
Eladó családi ház
Eladó családi ház

Szalánta

149.9 M Ft
10 szoba
301 m2
Eladó családi ház
Eladó családi ház

Tápióság

29.9 M Ft
2 szoba
65 m2
Eladó családi ház
Eladó családi ház

Elek

15.99 M Ft
2 szoba
70 m2
Eladó családi ház
Eladó családi ház

Tápiószőlős

34 M Ft
1 + 2 szoba
85 m2
Eladó családi ház
Eladó családi ház

Ceglédbercel

45 M Ft
2 + 1 szoba
127 m2
Eladó családi ház
Eladó családi ház

Simonfa, Dózsa György utca

16.5 M Ft
1 szoba
40 m2
Eladó családi ház
Eladó családi ház

Badacsonytomaj

199.8 M Ft
3 szoba
166 m2