River Life

Eladó ikerház
Fót

+ 1 kép 1/4
144 500 000 Ft144.5 M Ft 989 726 Ft/m2
5 szoba
146 m2
építés éve:2025

Részletes adatok

Telekméret: 400 m2
Fűtés: Egyéb
Közmű: Víz, Villany, Csatorna
Energetikai besorolás: Nem adta meg a hirdető

Az OTP Bank lakáshitel ajánlataFizetett hirdetés

+36 70 418
Kovács Péter
referens

Érdekel az OTP Bank kedvezményes lakáshitel ajánlata? *

* A kérdésre „Igen” válasz bejelölése esetén, az „Üzenet küldése” gombra kattintva kijelentem, hogy az OTP Bank Nyrt. Adatkezelési tájékoztatójának tartalmát megismertem és tudomásul vettem.

Eladó ikerház leírása

Fót legújabb, panorámás lakóparkjában épülő, ikerházak eladók!!

A lakások kizárólag a garázsokkal kapcsolódnak, így a lakótérből áthallás nincs, ezáltal szinte önálló családi ház érzetet biztosíthat!

CÉGES ÉPÍTKEZÉS, a 2024-től aktuális állami támogatások valamint kedvezményes, kamattámogatott hitelek felvehetőek – akár a 3%-os OTTHON START hitel, CSOK PLUS, babaváró is igényelhető, az ügyintézésben díjmentesen segítünk!

Az építő munkájára jellemző a megbízhatóság és igényesség, leinformálható, referencia házai megtekinthetők.

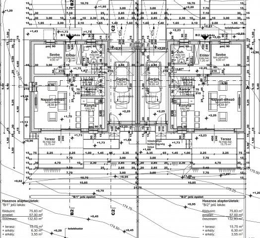
Az 1200 nm-es telekre két ikerház épül.
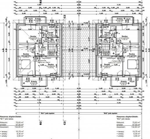
Jelen hirdetésben az B épület 1-es és 2-es lakása szerepel, mely hasznos lakóterülete a garázzsal 132,83 nm + terasz + erkélyek, amerikai-konyhás nappali + 4 szobás, dupla-komfortos, kb. 400 nm-es telekrésszel.

A földszint 75,83 nm a garázzsal + terasz: amerikai konyhás nappali + fürdőszoba zuhanyzóval + kamra + előtér + terasz
Az emelet 57 nm + 2 erkély: 3 hálószoba (mindegyik erkélykapcsolatos), fürdőszoba káddal, közlekedő

Rövid műszaki tartalom:
A főfalak Porotherm 30 N+F téglából épülnek, a válaszfalak pedig Porotherm 10 N+F téglából, 15 cm-es homlokzati szigeteléssel.
Prémium nyílászárók kerülnek beépítésre, kitűnő hő- és hangszigeteléssel
A fűtés modern hőszivattyús rendszerrel kerül kiépítésre, a hő leadás padlófűtéssel történik.

Az ingatlan kulcsrakész állapotban kerül átadásra, konyhabútor nélkül. Belső nyílászárók és a burkolatok választhatók, a belső műszaki tartalomban megjelölt összegig a vételár részét képezik.

A projekt részletes adataiért, valamint a többi lakással kapcsolatban is várjuk hívását.

Az épülő házról készült képek, a projekt másik ikerházát mutatják be.

Ára: 144,5 M Ft
Azonosító: 4639/B1-2

Hirdetés feltöltve: 2025. 10. 03. Utoljára módosítva: 2025. 11. 18.

5 szobás ikerházak ára Fóton

Ebből az összehasonlításból megtudhatod, hogyan viszonyul a lakás ára a környékbeli ikerházak átlagos árához. Ez nem azt jelenti, hogy ennyivel olcsóbb vagy drágább, mint amennyit a lakás ér, hanem hogy ennyivel tér el a környékbeli átlagtól.

Ennek a m² ára
Fót m² ár
990 e Ft
1005 e Ft 2%
Ennek az ára
Fót átlagár
144.5 M Ft m Ft
144.9 m Ft 0%

Az ingatlan elhelyezkedése

Cím: Fót

Eladó ikerházak a környékről

Eladó ikerház
Eladó ikerház

Dunakeszi

149 M Ft
1 + 4 szoba
127 m2
Eladó ikerház
Eladó ikerház

Vác

175.356 M Ft
5 szoba
165 m2
Eladó ikerház
Eladó ikerház

Fót

124.3 M Ft
4 szoba
121 m2
Eladó ikerház
Eladó ikerház

Fót

121 M Ft
4 szoba
111 m2
Eladó ikerház
Eladó ikerház

Rád

100 M Ft
4 szoba
152 m2
Eladó ikerház
Eladó ikerház

Szentendre

179 M Ft
5 + 1 szoba
147 m2
Eladó ikerház
Eladó ikerház

Solymár

150 M Ft
4 + 2 szoba
252 m2
Eladó ikerház
Eladó ikerház

Fót

115 M Ft
4 szoba
108 m2
Eladó ikerház
Eladó ikerház

Fót

121 M Ft
4 szoba
121 m2
Eladó ikerház
Eladó ikerház

Szentendre, Szentendre

398 M Ft
5 szoba
267 m2
Eladó ikerház
Eladó ikerház

Fót

74.9 M Ft
2 + 2 szoba
108 m2
Eladó ikerház
Eladó ikerház

Mogyoród, Fóti út

188 M Ft
6 szoba
182 m2
Eladó ikerház
Eladó ikerház

Fót

115 M Ft
4 szoba
108 m2
Eladó ikerház
Eladó ikerház

Vác

96.5 M Ft
4 + 1 szoba
129 m2
Eladó ikerház
Eladó ikerház

Diósd

206.25 M Ft
5 szoba
184 m2
Eladó ikerház
Eladó ikerház

Fót

115 M Ft
5 szoba
122 m2
Eladó ikerház
Eladó ikerház

Szentendre

359 M Ft
5 szoba
289 m2
Eladó ikerház
Eladó ikerház

Fót

95 M Ft
3 szoba
89 m2
Eladó ikerház
Eladó ikerház

Fót

124.3 M Ft
4 szoba
96 m2
Eladó ikerház
Eladó ikerház

Veresegyház

145 M Ft
4 szoba
120 m2
Eladó ikerház
Eladó ikerház

Vác

94.5 M Ft
4 + 1 szoba
126 m2
Eladó ikerház
Eladó ikerház

Fót

124.3 M Ft
4 szoba
96 m2
Eladó ikerház
Eladó ikerház

Dunaharaszti

124.999 M Ft
4 szoba
105 m2
Eladó ikerház
Eladó ikerház

Pomáz

129.5 M Ft
4 szoba
100 m2

Falusi CSOK ingatlanok

Eladó családi ház
Eladó családi ház

Sárisáp, Orgona utca

60 M Ft
4 szoba
145 m2
Eladó családi ház
Eladó családi ház

Besnyő

105.999 M Ft
6 szoba
189 m2
Eladó családi ház
Eladó családi ház

Tiszajenő

25.9 M Ft
3 + 1 szoba
120 m2
Eladó ikerház
Eladó ikerház

Balatonakali

165 M Ft
4 szoba
138 m2
Eladó családi ház
Eladó családi ház

Mályi

84.9 M Ft
4 szoba
100 m2
Eladó családi ház
Eladó családi ház

Nagybörzsöny

36 M Ft
2 + 1 szoba
74 m2
Eladó családi ház
Eladó családi ház

Pécsely, Szőlő Dülő

499 M Ft
4 + 2 szoba
183 m2
Eladó téglalakás
Eladó téglalakás

Nyáregyháza

61.5 M Ft
4 szoba
91 m2