River Life

Eladó ikerház
Eger

+ 17 kép 1/20
62 900 000 Ft62.9 M Ft 757 831 Ft/m2
3 szoba
83 m2
építés éve:2003

Részletes adatok

Állapot: Újszerű
Telekméret: 155 m2
Fűtés: Gázkazán
Parkolás: Garázs
Energetikai besorolás: Nem adta meg a hirdető
Zenga Premier

Friss hirdetések, amiket nem találsz meg más ingatlankereső portálon.

Fedezd fel elsőként a Zenga Premier címkés eladó ingatlanokat!

További részletek a zenga.hu-n

Az OTP Bank lakáshitel ajánlataFizetett hirdetés

+36 30 181
Molnár Tamás
referens

Érdekel az OTP Bank kedvezményes lakáshitel ajánlata? *

* A kérdésre „Igen” válasz bejelölése esetén, az „Üzenet küldése” gombra kattintva kijelentem, hogy az OTP Bank Nyrt. Adatkezelési tájékoztatójának tartalmát megismertem és tudomásul vettem.

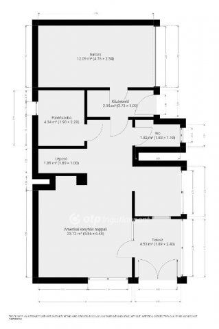
Eladó ikerház leírása

Eladó egy kiváló elrendezésű, 3 szobás ikerházi lakás, amerikai konyhás nappalival, saját kis kert résszel, garázzsal és teljes alápincézéssel. A ház jó állapotú, jól karbantartott, elrendezése és felszereltsége pedig ideális mindennapi családi használatra.

Főbb jellemzők:

-3 szoba és amerikai konyhás nappali.

-Gázcirkó fűtés és kandalló.

-Korszerű, hőszigetelt nyílászárók.

-Saját garázs.

-Saját használatú kert rész.

-Szerkezet: alsó szint Ytong, felső szint könnyűszerkezet.

-Teljesen alápincézett, sok tárolóhellyel.

A lakás egy ikerház része, jól szeparált lakótérrel és önálló használatra alkalmas udvarrésszel.

OTP Banki hátterünknek köszönhetően finanszírozási igényekben (pl. Otthon Start Program, Babaváró, Falusi CSOK, CSOK Plusz, Lakáshitel, Személyi kölcsön stb.), illetve biztosítások tekintetében is díjmentesen, soron kívüli ügyintézéssel segítem ügyfeleim! Referenciaszám: M317637

Hirdetés feltöltve: 2025. 11. 18. Utoljára módosítva: 2025. 11. 18.

Az ingatlan elhelyezkedése

Cím: Eger

Eladó ikerházak a környékről

Eladó ikerház
Eladó ikerház

Eger

98.9 M Ft
3 + 1 szoba
123 m2
Eladó ikerház
Eladó ikerház

Eger

109 M Ft
1 + 3 szoba
79 m2
Eladó ikerház
Eladó ikerház

Lőrinci

29.9 M Ft
1 + 2 szoba
58 m2
Eladó ikerház
Eladó ikerház

Eger

109 M Ft
1 + 3 szoba
79 m2
Eladó ikerház
Eladó ikerház

Eger

98.9 M Ft
4 szoba
103 m2
Eladó ikerház
Eladó ikerház

Gyöngyös, Huszár utca

89.5 M Ft
5 szoba
240 m2
Eladó ikerház
Eladó ikerház

Eger

98.9 M Ft
4 szoba
103 m2
Eladó ikerház
Eladó ikerház

Gyöngyös

38 M Ft
3 szoba
70 m2
Eladó ikerház
Eladó ikerház

Eger

57.9 M Ft
2 + 1 szoba
71 m2
Eladó ikerház
Eladó ikerház

Gyöngyös

54.9 M Ft
4 + 1 szoba
105 m2
Eladó ikerház
Eladó ikerház

Eger

98.9 M Ft
3 + 1 szoba
123 m2
Eladó ikerház
Eladó ikerház

Eger

109 M Ft
1 + 3 szoba
79 m2
Eladó ikerház
Eladó ikerház

Felsőtárkány

49 M Ft
4 szoba
205 m2
Eladó ikerház
Eladó ikerház

Eger

98.9 M Ft
3 + 1 szoba
123 m2
Eladó ikerház
Eladó ikerház

Eger

105 M Ft
6 szoba
211 m2
Eladó ikerház
Eladó ikerház

Eger

57.9 M Ft
2 + 1 szoba
71 m2
Eladó ikerház
Eladó ikerház

Eger

98.9 M Ft
3 + 1 szoba
123 m2
Eladó ikerház
Eladó ikerház

Eger

57.9 M Ft
2 + 1 szoba
71 m2
Eladó ikerház
Eladó ikerház

Parád

49.9 M Ft
4 + 1 szoba
81 m2
Eladó ikerház
Eladó ikerház

Eger

109 M Ft
1 + 3 szoba
79 m2
Eladó ikerház
Eladó ikerház

Gyöngyös

59.9 M Ft
5 szoba
89 m2
Eladó ikerház
Eladó ikerház

Eger

98.9 M Ft
3 + 1 szoba
123 m2
Eladó ikerház
Eladó ikerház

Eger

98.9 M Ft
3 + 1 szoba
123 m2
Eladó ikerház
Eladó ikerház

Eger, Csákó, Meder u. 2

105 M Ft
6 + 1 szoba
211 m2

Falusi CSOK ingatlanok

Eladó családi ház
Eladó családi ház

Törtel

10 M Ft
2 szoba
32 m2
Eladó családi ház
Eladó családi ház

Papkeszi

89.9 M Ft
9 szoba
403 m2
Eladó családi ház
Eladó családi ház

Tésenfa, Kossuth utca 23/a

5.55 M Ft
1 + 1 szoba
109 m2
Eladó családi ház
Eladó családi ház

Zengővárkony

35 M Ft
3 szoba
87 m2
Eladó családi ház
Eladó családi ház

Táborfalva

79 M Ft
4 szoba
92 m2
Eladó családi ház
Eladó családi ház

Szabadbattyán

136 M Ft
5 szoba
226 m2
Eladó családi ház
Eladó családi ház

Marcaltő

26 M Ft
3 szoba
103 m2
Eladó családi ház
Eladó családi ház

Kemeneshőgyész

6.9 M Ft
3 szoba
124 m2