NapForrás 20 - Buda

Eladó ikerház
Dömsöd, ÚJ ÉPÍTÉSŰ, Nettó 64nm, 3 szobás, 357nm telekkel

+ 4 kép 1/7
48 900 000 Ft48.9 M Ft 764 063 Ft/m2
3 szoba
64 m2
építés éve:2026

Részletes adatok

Telekméret: 357 m2
Fűtés: Egyéb
Közmű: Villany, Csatorna
Energetikai besorolás: A+

Az OTP Bank lakáshitel ajánlataFizetett hirdetés

+36 70 779
Zsuzsanna Hegedűs
Dream Credit Kft

Érdekel az OTP Bank kedvezményes lakáshitel ajánlata? *

* A kérdésre „Igen” válasz bejelölése esetén, az „Üzenet küldése” gombra kattintva kijelentem, hogy az OTP Bank Nyrt. Adatkezelési tájékoztatójának tartalmát megismertem és tudomásul vettem.

Eladó ikerház leírása

Megvételre kínálok Dömsödön ÚJ ÉPÍTÉSŰ, egyszintes,
Otthon start 3% hitelre, Zöldhitelre, Csok+ra alkalmas ikerházat!!

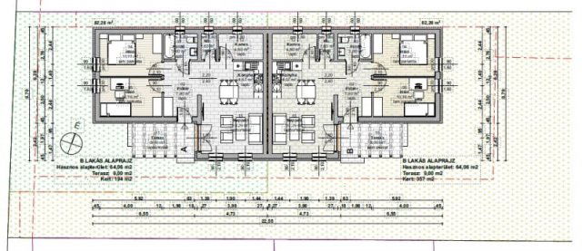
A LAKÁS Nettó 64,06 m2 Terasz: 9,00 m2 Kert: 194 m2 47,9M
-Előtér 7,9nm
-Amerikaikonyhás-Nappali 24,86nm
-szoba 11,11nm
-szoba 10,16nm
-fürdő 3.6nm
-wc 1.63nm
-kamra 4,8nm

B LAKÁS Nettó 64,06 m2 Terasz: 9,00 m2 Kert: 357 m2 48,9M
-Előtér 7,9nm
-Amerikaikonyhás-Nappali 24,86nm
-szoba 11,11nm
-szoba 10,16nm
-fürdő 3.6nm
-wc 1.63nm
-kamra 4,8nm

Az épület fűtéséről, NAPELEMMEL KOMBINÁLHATÓ, HŐSZIVATTYÚ gondoskodik, padlófűtéssel.
Pár műszaki adat: -Leier 30-as téglából épül, tégla válaszfalakkal, -külső szigetelése Dryvit rendszerű -fa tetőszerkezet, -fa födém, -gipszkarton mennyezet, -Bramac cserépfedés -műanyag hőszigetelt nyílászárók -külső Dryvit rendszerű szigetelés -A belső burkolatok kiválaszthatóak.
5 perc séta a távolsági buszmegálló.
Bölcsöde, óvoda, iskola, Kultúr és Egészség-Ház, bevásárlási lehetőségek!!

10 % foglalóval leköthető
Várható Átadás 2026 II.negyedév.
Cégünk INGYENES, iroda és bank-független Hitel ügyintézéssel is rendelkezésére áll, nem csak nálunk vásárolt ingatlanokra!!
Kérdés és-vagy időpont egyeztetés miatt hívjon bátran akár hétvégén is.
Amennyiben nem tudom felvenni visszahívom.

Hirdetés feltöltve: 2025. 12. 17. Utoljára módosítva: 2025. 12. 31.

Az ingatlan elhelyezkedése

Cím: Dömsöd, ÚJ ÉPÍTÉSŰ, Nettó 64nm, 3 szobás, 357nm telekkel

Eladó ingatlanok a környékről

Eladó ikerház
Eladó ikerház

Dömsöd

48.9 M Ft
3 szoba
64 m2
Eladó ikerház
Eladó ikerház

Dömsöd

79 M Ft
5 szoba
128 m2
Eladó ikerház
Eladó ikerház

Pécel, Pécel - kertváros

127 M Ft
4 szoba
125 m2
Eladó családi ház
Eladó családi ház

Szentendre

230 M Ft
8 szoba
531 m2
Eladó ikerház
Eladó ikerház

Mogyoród, Fóti út

188 M Ft
6 szoba
182 m2
Eladó ikerház
Eladó ikerház

Vác

149.9 M Ft
5 szoba
202 m2
Eladó ikerház
Eladó ikerház

Pusztazámor

55 M Ft
10 szoba
470 m2
Eladó téglalakás
Eladó téglalakás

Halásztelek

74.99 M Ft
3 + 1 szoba
98 m2
Eladó ikerház
Eladó ikerház

Szentendre

179 M Ft
5 + 1 szoba
147 m2
Eladó ikerház
Eladó ikerház

Dömsöd

88 M Ft
3 szoba
143 m2
Eladó ikerház
Eladó ikerház

Szentendre, Szentendre

398 M Ft
5 szoba
267 m2
Eladó családi ház
Eladó családi ház

Tápiószele

64.9 M Ft
3 szoba
92 m2
Eladó ikerház
Eladó ikerház

Pilisjászfalu

70.563 M Ft
4 szoba
61 m2
Eladó ikerház
Eladó ikerház

Dömsöd

47.9 M Ft
3 szoba
64 m2
Eladó ikerház
Eladó ikerház

Dömsöd, Fő utca utca

65 M Ft
4 szoba
140 m2
Eladó ikerház
Eladó ikerház

Dömsöd

48.9 M Ft
3 szoba
64 m2
Eladó ikerház
Eladó ikerház

Mogyoród

129 M Ft
5 szoba
123 m2
Eladó családi ház
Eladó családi ház

Szada, Szőlőhegyi utca

174.9 M Ft
5 szoba
313 m2
Eladó ikerház
Eladó ikerház

Pomáz

129.5 M Ft
4 szoba
100 m2
Eladó ikerház
Eladó ikerház

Veresegyház

145 M Ft
4 szoba
120 m2
Eladó ikerház
Eladó ikerház

Dömsöd

99.8 M Ft
3 szoba
120 m2
Eladó családi ház
Eladó családi ház

Szigetszentmiklós, Dunapart, Dunasor

41.9 M Ft
1 szoba
35 m2
Eladó ikerház
Eladó ikerház

Dömsöd

49.9 M Ft
3 szoba
64 m2
Eladó téglalakás
Eladó téglalakás

Vác, Deákvár-Óváros, Vám utca

75 M Ft
3 szoba
73 m2

Falusi CSOK ingatlanok

Eladó családi ház
Eladó családi ház

Nyírábrány

17.9 M Ft
2 szoba
65 m2
Eladó családi ház
Eladó családi ház

Sellye

21.6 M Ft
2 szoba
72 m2
Eladó családi ház
Eladó családi ház

Gönyű

111.951 M Ft
4 szoba
105 m2
Eladó családi ház
Eladó családi ház

Magyarszombatfa

80 M Ft
3 szoba
90 m2
Eladó családi ház
Eladó családi ház

Kenyeri

21.8 M Ft
2 szoba
75 m2
Eladó családi ház
Eladó családi ház

Pápakovácsi

79.9 M Ft
4 szoba
210 m2
Eladó családi ház
Eladó családi ház

Úrkút

94.9 M Ft
4 szoba
186 m2
Eladó családi ház
Eladó családi ház

Csemő

110 M Ft
5 szoba
171 m2