Seven Pearl

Eladó ikerház
Diósd

+ 9 kép 1/12
184 800 000 Ft184.8 M Ft 1 155 000 Ft/m2
5 szoba
160 m2
építés éve:2023

Részletes adatok

Telekméret: 1095 m2
Fűtés: Elektromos
Energetikai besorolás: Nem adta meg a hirdető

Az OTP Bank lakáshitel ajánlataFizetett hirdetés

3624769700
Ernszt Zsuzsanna
referens

Érdekel az OTP Bank kedvezményes lakáshitel ajánlata? *

* A kérdésre „Igen” válasz bejelölése esetén, az „Üzenet küldése” gombra kattintva kijelentem, hogy az OTP Bank Nyrt. Adatkezelési tájékoztatójának tartalmát megismertem és tudomásul vettem.

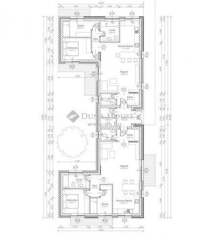
Eladó ikerház leírása

Nagycsaládosok, összeköltözők, befektetők figyelmébe ajánlom!
Diósdon, egy 2x80 nm-es, újonnan épülő ikerház eladó. A telek 1095 nm-es, két utcáról is megközelíthető.
Az épület szerkezetkész állapotbabn van, 50% készültségi szinten, így a leendő tulajdonosnak minden lehetősége adott a saját elképzeléseinek megfelelő ház kialakítására.
Az ikerház ebben az állapotában eladó. Minden közmű a területen és a házban van.A telken található még egy felújított, 50 nm-es, kétszintes, 80-as években épült, téglaépítésű, összkomfortos lakóház, zárt beépített terasszal. A tető is teljesen felújításra került a faszerkezettel együtt. A házhoz pince és melléképületekkel is tartoznak.
Érd: Ernszt Zsuzsanna, tel: +36/706154751, e-mail: ernszt.zsuzsanna@dh.hu

Referencia szám: HZ059178-ZE

Hirdetés feltöltve: 2025. 09. 24. Utoljára módosítva: 2025. 11. 27.

5 szobás ikerházak ára Diósdon

Ebből az összehasonlításból megtudhatod, hogyan viszonyul a lakás ára a környékbeli ikerházak átlagos árához. Ez nem azt jelenti, hogy ennyivel olcsóbb vagy drágább, mint amennyit a lakás ér, hanem hogy ennyivel tér el a környékbeli átlagtól.

Ennek a m² ára
Diósd m² ár
1155 e Ft
1053 e Ft -10%
Ennek az ára
Diósd átlagár
184.8 M Ft m Ft
180.3 m Ft -3%

Az ingatlan elhelyezkedése

Cím: Diósd

Eladó ikerházak a környékről

Eladó ikerház
Eladó ikerház

Dunaharaszti

124.999 M Ft
4 szoba
105 m2
Eladó ikerház
Eladó ikerház

Mogyoród, Fóti út

188 M Ft
6 szoba
182 m2
Eladó ikerház
Eladó ikerház

Diósd

197 M Ft
4 + 1 szoba
179 m2
Eladó ikerház
Eladó ikerház

Üröm

249.9 M Ft
4 szoba
154 m2
Eladó ikerház
Eladó ikerház

Érd, Érdligeten található utca

64.9 M Ft
4 szoba
112 m2
Eladó ikerház
Eladó ikerház

Szentendre, Szentendre

398 M Ft
5 szoba
267 m2
Eladó ikerház
Eladó ikerház

Szentendre

179 M Ft
5 + 1 szoba
147 m2
Eladó ikerház
Eladó ikerház

Diósd

211.9 M Ft
6 szoba
178 m2
Eladó ikerház
Eladó ikerház

Pusztazámor

55 M Ft
10 szoba
470 m2
Eladó ikerház
Eladó ikerház

Pécel

149.9 M Ft
5 szoba
306 m2
Eladó ikerház
Eladó ikerház

Diósd

179.9 M Ft
5 szoba
179 m2
Eladó ikerház
Eladó ikerház

Diósd

94.9 M Ft
3 szoba
82 m2
Eladó ikerház
Eladó ikerház

Diósd

279 M Ft
6 szoba
242 m2
Eladó ikerház
Eladó ikerház

Diósd

199 M Ft
5 szoba
186 m2
Eladó ikerház
Eladó ikerház

Pilisjászfalu

70.563 M Ft
4 szoba
61 m2
Eladó ikerház
Eladó ikerház

Szentendre

359 M Ft
5 szoba
289 m2
Eladó ikerház
Eladó ikerház

Diósd

179.9 M Ft
5 szoba
179 m2
Eladó ikerház
Eladó ikerház

Diósd

197 M Ft
4 + 1 szoba
179 m2
Eladó ikerház
Eladó ikerház

Vác

175.356 M Ft
5 szoba
165 m2
Eladó ikerház
Eladó ikerház

Diósd

179.3 M Ft
4 + 1 szoba
174 m2
Eladó ikerház
Eladó ikerház

Diósd, Szabadság út

184.8 M Ft
3 szoba
160 m2
Eladó ikerház
Eladó ikerház

Vác

175.356 M Ft
5 szoba
165 m2
Eladó ikerház
Eladó ikerház

Diósd

219.9 M Ft
5 szoba
185 m2
Eladó ikerház
Eladó ikerház

Solymár

150 M Ft
4 + 2 szoba
252 m2

Falusi CSOK ingatlanok

Eladó családi ház
Eladó családi ház

Szabadbattyán

136 M Ft
5 szoba
226 m2
Eladó családi ház
Eladó családi ház

Nagybörzsöny

79.9 M Ft
4 szoba
149 m2
Eladó családi ház
Eladó családi ház

Újhartyán

89.9 M Ft
4 szoba
99 m2
Eladó családi ház
Eladó családi ház

Törtel

10 M Ft
2 szoba
43 m2
Eladó családi ház
Eladó családi ház

Újszilvás

20.9 M Ft
3 szoba
66 m2
Eladó családi ház
Eladó családi ház

Püspökhatvan

44.9 M Ft
3 szoba
80 m2
Eladó családi ház
Eladó családi ház

Szurdokpüspöki

16 M Ft
1 szoba
45 m2
Eladó családi ház
Eladó családi ház

Németkér

149.9 M Ft
2 szoba
540 m2