City Pearl

Eladó ikerház
Debrecen

+ 2 kép 1/5
160 000 000 Ft160 M Ft 1 000 000 Ft/m2
5 szoba
160 m2
építés éve:2023

Részletes adatok

Telekméret: 639 m2
Fűtés: Egyéb
Energetikai besorolás: Nem adta meg a hirdető

Az OTP Bank lakáshitel ajánlataFizetett hirdetés

3652234102
Lévainé Julika
Projektiroda

Érdekel az OTP Bank kedvezményes lakáshitel ajánlata? *

* A kérdésre „Igen” válasz bejelölése esetén, az „Üzenet küldése” gombra kattintva kijelentem, hogy az OTP Bank Nyrt. Adatkezelési tájékoztatójának tartalmát megismertem és tudomásul vettem.

Eladó ikerház leírása

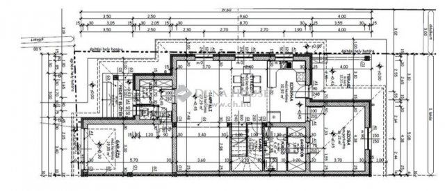
Debrecen Homokkertben belső 2 szintes, gyönyörű, tágas nappali + 4 szobás ikerházi ingatlanok épülnek. A teljes telek méret 1280 nm. A lakások földszintjén a 19 nm-es garázs mellett, 57 nm-es nappali-amerikai konyha + 1 hálószoba a hozzá tartozó gardrób és fürdőszoba kapott helyet, míg az emeleten 3 szoba 1 fürdő wc-vel és egy háztartási hekyiség is helyet kapott. A ház homlokzati képe a modern, mediterrán stílust képviseli. CSOK+-ra alkalmas ingatlanok!
Műszaki jellemzői:
- 30-as téglafalazat
- 15-ös szigeteléssel
- 3 rétegű nyílászárók
- hőszivattyús fűtés
- padló és falfűtéssel
- 19, 35 nm-es garázs
- 12,31 nm terasszal- stb....
Kérdéseivel és megtekintéssel kapcsolatban várom hívását!

Referencia szám: PR019232/HZ/17009

Hirdetés feltöltve: 2025. 12. 20. Utoljára módosítva: 2026. 01. 06.

5 szobás ikerházak ára Debrecenben

Ebből az összehasonlításból megtudhatod, hogyan viszonyul a lakás ára a környékbeli ikerházak átlagos árához. Ez nem azt jelenti, hogy ennyivel olcsóbb vagy drágább, mint amennyit a lakás ér, hanem hogy ennyivel tér el a környékbeli átlagtól.

Ennek a m² ára
Debrecen m² ár
1000 e Ft
1028 e Ft 3%
Ennek az ára
Debrecen átlagár
160 M Ft m Ft
173.5 m Ft 8%

Az ingatlan elhelyezkedése

Cím: Debrecen

Eladó ikerházak a környékről

Eladó ikerház
Eladó ikerház

Debrecen

150 M Ft
5 szoba
143 m2
Eladó ikerház
Eladó ikerház

Debrecen

237 M Ft
6 szoba
204 m2
Eladó ikerház
Eladó ikerház

Debrecen, Tégláskert, Tégláskert utca

73 M Ft
4 szoba
150 m2
Eladó ikerház
Eladó ikerház

Debrecen

185.5 M Ft
3 szoba
212 m2
Eladó ikerház
Eladó ikerház

Debrecen

150 M Ft
5 szoba
143 m2
Eladó ikerház
Eladó ikerház

Debrecen

289 M Ft
8 szoba
310 m2
Eladó ikerház
Eladó ikerház

Debrecen

237 M Ft
6 szoba
204 m2
Eladó ikerház
Eladó ikerház

Debrecen

237 M Ft
6 szoba
204 m2
Eladó ikerház
Eladó ikerház

Debrecen, Széchenyikert, Széchenyi utca

175 M Ft
5 szoba
120 m2
Eladó ikerház
Eladó ikerház

Debrecen

150 M Ft
5 szoba
143 m2
Eladó ikerház
Eladó ikerház

Debrecen

119 M Ft
3 szoba
107 m2
Eladó ikerház
Eladó ikerház

Debrecen

66 M Ft
1 + 2 szoba
59 m2
Eladó ikerház
Eladó ikerház

Debrecen

192 M Ft
5 szoba
212 m2
Eladó ikerház
Eladó ikerház

Debrecen, Tégláskert, Tégláskert utca

73 M Ft
4 szoba
150 m2
Eladó ikerház
Eladó ikerház

Debrecen

150 M Ft
5 szoba
143 m2
Eladó ikerház
Eladó ikerház

Debrecen

73 M Ft
4 szoba
150 m2
Eladó ikerház
Eladó ikerház

Debrecen

79.9 M Ft
3 szoba
130 m2
Eladó ikerház
Eladó ikerház

Debrecen

159 M Ft
3 szoba
143 m2
Eladó ikerház
Eladó ikerház

Debrecen

150 M Ft
5 szoba
143 m2
Eladó ikerház
Eladó ikerház

Debrecen

189 M Ft
4 szoba
212 m2
Eladó ikerház
Eladó ikerház

Debrecen

159 M Ft
3 szoba
133 m2
Eladó ikerház
Eladó ikerház

Debrecen

237 M Ft
6 szoba
204 m2
Eladó ikerház
Eladó ikerház

Debrecen

74.99 M Ft
3 szoba
110 m2
Eladó ikerház
Eladó ikerház

Létavértes

45 M Ft
3 szoba
75 m2

Falusi CSOK ingatlanok

Eladó családi ház
Eladó családi ház

Úrkút

94.9 M Ft
4 szoba
186 m2
Eladó ikerház
Eladó ikerház

Balatonakali

129 M Ft
4 szoba
145 m2
Eladó családi ház
Eladó családi ház

Orci

119.9 M Ft
6 szoba
200 m2
Eladó családi ház
Eladó családi ház

Tiszaroff

12.5 M Ft
2 szoba
63 m2
Eladó családi ház
Eladó családi ház

Gönyű

111.951 M Ft
4 szoba
105 m2
Eladó családi ház
Eladó családi ház

Álmosd

13.9 M Ft
2 szoba
80 m2
Eladó családi ház
Eladó családi ház

Dunafalva

66 M Ft
3 szoba
116 m2
Eladó családi ház
Eladó családi ház

Körösszakál

5.9 M Ft
3 szoba
100 m2