Oasis Residence

Eladó ikerház
Csörög

+ 1 kép 1/4
89 990 000 Ft89.99 M Ft 703 047 Ft/m2
5 szoba
128 m²
építés éve:2026

Részletes adatok

Telekméret: 1085 m2
Fűtés: Egyéb
Energetikai besorolás: Nem adta meg a hirdető

Az OTP Bank lakáshitel ajánlataFizetett hirdetés

3628814716
Czine Jenifer
referens

Érdekel az OTP Bank kedvezményes lakáshitel ajánlata? *

* A kérdésre „Igen” válasz bejelölése esetén, az „Üzenet küldése” gombra kattintva kijelentem, hogy az OTP Bank Nyrt. Adatkezelési tájékoztatójának tartalmát megismertem és tudomásul vettem.

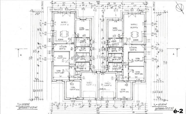
Eladó ikerház leírása

ÚJ ÉPÍTÉSŰ IKERHÁZ LEKÖTHETŐ CSÖRÖGÖN SAJÁT IGÉNYEK SZERINT, ÜTEMEZETT ÉPÍTÉSSEL!

Csörög csendes, zöldövezeti részén kínálunk megvételre egy új építésű ikerházat, amely jelenleg tervezési fázisban van, így a leendő tulajdonos még több ponton alakíthatja saját igényei szerint.

Az ingatlan főbb adatai:

Összesen 128 m² alapterület (garázzsal együtt)

Tágas, világos amerikai konyhás nappali teraszkapcsolattal

Több külön nyíló szoba

2 fürdőszoba + háztartási helyiség

Saját kertkapcsolat

Praktikus, jól átgondolt elrendezés

Építés és fizetési ütemezés

Az ingatlan egy megbízható, tapasztalt kivitelező cég által kerül megépítésre, előre egyeztetett műszaki tartalommal.

A kivitelezés szakaszosan történik, az alábbi módon:

A vásárlás kezdeti befizetéssel indul

Az építkezés előrehaladtával, készültségi fokhoz igazodó részletekben történik a fizetés

Minden részlet egy-egy elkészült munkafázishoz kapcsolódik

Ez a konstrukció átlátható, biztonságos, és lehetőséget ad arra, hogy a vevő végig nyomon kövesse az építkezést.

Irányár: 89.990.000 Ft alkuképes!

Elhelyezkedés: Csörög ideális választás azoknak, akik nyugodt környezetben szeretnének élni, mégis elérhető közelségben maradnának a városhoz.

Tökéletes lehetőség, ha nem csak egy házat keres, hanem egy saját igényekre szabható, új otthon megszületésében szeretne részt venni.

Bármilyen kérdés esetén keress bizalommal

Hirdetés feltöltve: 2026. 04. 02. Utoljára módosítva: 2026. 05. 13.

Az ingatlan elhelyezkedése

Cím: Csörög

Eladó ingatlanok a környékről

Bugyi
Eladó családi ház

Bugyi

92.5 M Ft
4 szoba
100 m²
Csörög, Homokbánya utca
Eladó ikerház

Csörög

69.9 M Ft
4 szoba
86 m²
Vác
Eladó ikerház

Vác

96.7 M Ft
4 + 1 szoba
126 m²
Csörög
Eladó ikerház

Csörög

99.9 M Ft
2 + 3 szoba
106 m²
Csörög
Eladó ikerház

Csörög

93.5 M Ft
2 + 2 szoba
100 m²
Mogyoród
Eladó ikerház

Mogyoród

135 M Ft
5 szoba
137 m²
Szentendre
Eladó ikerház

Szentendre

359 M Ft
5 + 1 szoba
289 m²
Hernád
Eladó ikerház

Hernád

41.3 M Ft
3 szoba
68 m²
Nagytarcsa
Eladó ikerház

Nagytarcsa

119.9 M Ft
4 szoba
103 m²
Mogyoród
Eladó ikerház

Mogyoród

129 M Ft
5 szoba
123 m²
Csörög, Liliom utca
Eladó ikerház

Csörög

66.2 M Ft
3 szoba
84 m²
Csörög
Eladó ikerház

Csörög

93 M Ft
4 szoba
91 m²
Csörög, Kolozsvári utca
Eladó ikerház

Csörög

89.99 M Ft
5 szoba
128 m²
Herceghalom
Eladó ikerház

Herceghalom

99 M Ft
4 szoba
106 m²
Abony
Eladó családi ház

Abony

24.9 M Ft
2 szoba
144 m²
Vácrátót
Eladó ikerház

Vácrátót

99.9 M Ft
3 + 2 szoba
112 m²
Szentendre
Eladó ikerház

Szentendre

179 M Ft
5 + 1 szoba
147 m²
Csörög
Eladó ikerház

Csörög

159 M Ft
7 szoba
193 m²
Mogyoród
Eladó ikerház

Mogyoród

135 M Ft
5 szoba
137 m²
Kiskunlacháza
Eladó ikerház

Kiskunlacháza

44.9 M Ft
2 szoba
39 m²
Csörög
Eladó ikerház

Csörög

93.5 M Ft
4 szoba
106 m²
Csörög
Eladó ikerház

Csörög

79.2 M Ft
2 + 2 szoba
99 m²
Budaörs
Eladó családi ház

Budaörs

159 M Ft
3 szoba
155 m²
Csörög
Eladó ikerház

Csörög

99.9 M Ft
4 + 1 szoba
98 m²

Falusi CSOK ingatlanok

Balatonszepezd
Eladó családi ház

Balatonszepezd

299 M Ft
5 szoba
220 m²
Bag
Eladó ikerház

Bag

93 M Ft
3 szoba
67 m²
Balatonudvari
Eladó családi ház

Balatonudvari

230 M Ft
9 szoba
260 m²
Zalaszentiván
Eladó ikerház

Zalaszentiván

54.99 M Ft
5 szoba
160 m²
Szigliget, Soponyai út
Eladó ikerház

Szigliget

429 M Ft
7 + 2 szoba
212 m²
Tótszentmárton
Eladó családi ház

Tótszentmárton

31.5 M Ft
5 szoba
130 m²
Maráza
Eladó családi ház

Maráza

29.9 M Ft
3 szoba
96 m²
Szigetújfalu
Eladó családi ház

Szigetújfalu

66 M Ft
3 szoba
118 m²