River Life

Eladó ikerház
Bükkábrány

Figyelem!

Ez az ingatlan a 2019.07.01-től induló falusi CSOK által támogatott településen található

+ 15 kép 1/18
28 900 000 Ft28.9 M Ft 225 781 Ft/m2
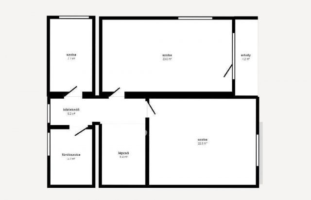
3 + 1 szoba
128 m2
építés éve:1985

Részletes adatok

Állapot: Átlagos
Telekméret: 536 m2
Fűtés: Gázkazán
Energetikai besorolás: Nem adta meg a hirdető

Az OTP Bank lakáshitel ajánlataFizetett hirdetés

+36 20 260
Hegedűs Csaba
OTP Ingatlanpont Miskolc Szemere

Érdekel az OTP Bank kedvezményes lakáshitel ajánlata? *

* A kérdésre „Igen” válasz bejelölése esetén, az „Üzenet küldése” gombra kattintva kijelentem, hogy az OTP Bank Nyrt. Adatkezelési tájékoztatójának tartalmát megismertem és tudomásul vettem.

Eladó ikerház leírása

Ladó tágas ikerház Bükkábrányban, ideális családi otthon csendes környezetben! Bükkábrány kedvelt, nyugodt részén kínálok megvételre egy 128,8 nm-es, kétszintes ikerházat, mely 1985-ben épült szilikát falazattal és hullámpala tetőfedéssel. A ház összkomfortos, igény szerint felújítandó, de kis ráfordítással azonnal költözhető állapotban van. Az ingatlan 3 egész szobával és 1 félszobával rendelkezik, így ideális lehet nagyobb családnak, vagy otthoni munkavégzéshez is. A fűtést gáz-cirkó rendszer biztosítja, a meleg vizet pedig villanybojler szolgáltatja. A 536 nm-es telek kellemes méretű füves udvarnak van kialakítva. Az udvaron több autó parkolása is megoldható. Ez a ház tökéletes választás lehet azok számára, akik egy nagyobb alapterületű otthont keresnek egy nyugodt, vidéki településen, de mégis jó megközelíthetőséggel. Az iskola, óvoda és a bolt is nagyon közel található, a község központi elhelyezkedésének köszönhetően a közösségi közlekedés is igen jó. Az ingatlan alkalmas az Otthon Start, falusi CSOK támogatásokra. OTP Banki hátterünknek köszönhetően finanszírozási igényekben (pl. Otthon Start Hitelprogram , Babaváró, Falusi CSOK, CSOK Plusz, Lakáshitel, Személyi kölcsön stb.), illetve biztosítások tekintetében is díjmentesen, ügyvédi háttérrel, soron kívüli ügyintézéssel segítem ügyfeleim! Ha érdekli az ingatlan, kérem hívjon, és hivatkozzon az M312262 referencia számra!

Referencia szám: M312262

Hirdetés feltöltve: 2025. 11. 04. Utoljára módosítva: 2026. 01. 28.

Az ingatlan elhelyezkedése

Cím: Bükkábrány

Eladó ingatlanok a környékről

Eladó ikerház
Eladó ikerház

Miskolc

35 M Ft
2 szoba
84 m2
Eladó családi ház
Eladó családi ház

Miskolc

30 M Ft
4 szoba
71 m2
Eladó családi ház
Eladó családi ház

Múcsony, Kossuth Lajos út

21.9 M Ft
3 szoba
82 m2
Eladó ikerház
Eladó ikerház

Sajóivánka

37.5 M Ft
3 + 1 szoba
120 m2
Eladó téglalakás
Eladó téglalakás

Miskolc

21.9 M Ft
1 szoba
35 m2
Eladó családi ház
Eladó családi ház

Taktaharkány

15.8 M Ft
3 szoba
118 m2
Eladó téglalakás
Eladó téglalakás

Miskolc, Belváros, Széchenyi utca

80 M Ft
5 + 2 szoba
700 m2
Eladó nyaraló
Eladó nyaraló

Miskolc

14.9 M Ft
1 szoba
636 m2
Eladó ikerház
Eladó ikerház

Miskolc

48.49 M Ft
2 + 1 szoba
65 m2
Eladó családi ház
Eladó családi ház

Szendrő

19.9 M Ft
4 szoba
150 m2
Eladó családi ház
Eladó családi ház

Telkibánya

25.9 M Ft
2 szoba
92 m2
Eladó családi ház
Eladó családi ház

Miskolc

109.9 M Ft
4 szoba
119 m2
Eladó családi ház
Eladó családi ház

Sajópetri, Deák Ferenc utca

19.98 M Ft
2 szoba
67 m2
Eladó ikerház
Eladó ikerház

Miskolc

23.99 M Ft
3 szoba
90 m2
Eladó ikerház
Eladó ikerház

Sárospatak

63.7 M Ft
4 szoba
189 m2
Eladó ipari ingatlan
Eladó ipari ingatlan

Miskolc

55.9 M Ft
4 + 1 szoba
100 m2
Eladó ikerház
Eladó ikerház

Bükkábrány

28.9 M Ft
3 + 1 szoba
128 m2
Eladó családi ház
Eladó családi ház

Sajószentpéter

24.9 M Ft
3 szoba
88 m2
Eladó családi ház
Eladó családi ház

Múcsony

37.5 M Ft
4 + 1 szoba
190 m2
Eladó ikerház
Eladó ikerház

Csokvaomány

15.9 M Ft
2 + 2 szoba
63 m2
Eladó téglalakás
Eladó téglalakás

Miskolc

26.9 M Ft
2 szoba
57 m2
Eladó családi ház
Eladó családi ház

Alacska

14.9 M Ft
2 szoba
92 m2
Eladó ikerház
Eladó ikerház

Hidasnémeti

15 M Ft
2 szoba
60 m2
Eladó ikerház
Eladó ikerház

Sárospatak, Hunyadi utca

63.7 M Ft
4 szoba
189 m2

Falusi CSOK ingatlanok

Eladó családi ház
Eladó családi ház

Dág

26.9 M Ft
3 szoba
68 m2
Eladó családi ház
Eladó családi ház

Pannonhalma

83.9 M Ft
4 szoba
97 m2
Eladó családi ház
Eladó családi ház

Recsk

35 M Ft
2 szoba
90 m2
Eladó családi ház
Eladó családi ház

Szentbékkálla, Szentbékkálla

63.9 M Ft
2 szoba
143 m2
Eladó családi ház
Eladó családi ház

Nádasdladány

45.9 M Ft
1 + 1 szoba
50 m2
Eladó családi ház
Eladó családi ház

Parád

20 M Ft
3 szoba
90 m2
Eladó családi ház
Eladó családi ház

Zalalövő

34.99 M Ft
3 szoba
110 m2
Eladó családi ház
Eladó családi ház

Felsőlajos

100 M Ft
4 szoba
140 m2

Falusi CSOK ingatlanok

Eladó családi ház
Eladó családi ház

Magyarszék

48.5 M Ft
3 + 1 szoba
86 m2
Eladó családi ház
Eladó családi ház

Zalalövő

34.99 M Ft
3 szoba
110 m2
Eladó családi ház
Eladó családi ház

Törtel

34.9 M Ft
3 szoba
66 m2
Eladó családi ház
Eladó családi ház

Sirok

35 M Ft
3 szoba
104 m2
Eladó családi ház
Eladó családi ház

Recsk

40 M Ft
3 + 1 szoba
130 m2
Eladó családi ház
Eladó családi ház

Nagyhegyes

80 M Ft
2 szoba
94 m2
Eladó családi ház
Eladó családi ház

Recsk

22 M Ft
2 szoba
80 m2
Eladó ikerház
Eladó ikerház

Balatonakali

370 M Ft
4 szoba
140 m2