Eladó ikerház
Bugyi

+ 7 kép 1/10
118 110 000 Ft118.11 M Ft 937 381 Ft/m2
4 szoba
126 m2
építés éve:2025

Részletes adatok

Telekméret: 767 m2
Fűtés: Egyéb
Energetikai besorolás: Nem adta meg a hirdető

Az OTP Bank lakáshitel ajánlataFizetett hirdetés

+36 1 690
Papp Tiborné Erika
referens

Érdekel az OTP Bank kedvezményes lakáshitel ajánlata? *

* A kérdésre „Igen” válasz bejelölése esetén, az „Üzenet küldése” gombra kattintva kijelentem, hogy az OTP Bank Nyrt. Adatkezelési tájékoztatójának tartalmát megismertem és tudomásul vettem.

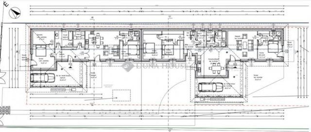
Eladó ikerház leírása

Egy ház, ami valóban a jövőt képviseli okosan, stílusosan, elérhető áron.Ha olyan otthonra vágyik, ami egyszerre modern, energiatakarékos és kényelmes, ez a ház akkor Önre vár!Megbízható, referenciákkal rendelkező kivitelezőtől Bugyi csendes, kertvárosi részén kínálunk eladásra egy tágas, földszintes ikerházfelet nagy, 767 m²-es saját telekkel.A 126 m²-es otthonban nappali + 3 hálószoba, 2 fürdőszoba, külön WC, konyha-étkező, kamra és gardrób találhatók minden a család kényelmét szolgálja.Fedett autóbeálló és több parkolóhely is rendelkezésre áll.Főbb műszaki jellemzők:30 cm vázkerámia fal + min. 15 cm hőszigetelés40 cm kőzetgyapot födémszigetelés2 rétegű hőszigetelt nyílászárók, redőnyökkel és szúnyoghálóvalHőszivattyús padlófűtés, vizes helyiségekben törölközőszárító radiátorral,napelem rendszerEnergetikai besorolás: várhatóan AA++Antracit tető, törtfehér homlokzatA ház korszerű hőszigeteléssel, hőszivattyús fűtéssel és napelemrendszerrel készül, várható AA++ energiabesorolással.A beépített okos otthon rendszer pedig lehetővé teszi, hogy akár a telefonról irányítható a fűtés, világítás vagy biztonsági funkciók.Nyugodt környezet, barátságos szomszédság, minden elérhető a közelben és Budapest is csak 35 percnyire van.Egy otthon, ahol a modern építészet és a jövő technológiája találkozik.Hívjon akár hétvégén is, hogy megmutathassam Önnek álmai ingatlanát.

Referencia szám: HZ056936-ZE

Hirdetés feltöltve: 2025. 10. 28. Utoljára módosítva: 2025. 10. 29.

4 szobás ikerházak ára Bugyin

Ebből az összehasonlításból megtudhatod, hogyan viszonyul a lakás ára a környékbeli ikerházak átlagos árához. Ez nem azt jelenti, hogy ennyivel olcsóbb vagy drágább, mint amennyit a lakás ér, hanem hogy ennyivel tér el a környékbeli átlagtól.

Ennek a m² ára
Bugyi m² ár
937 e Ft
756 e Ft -24%
Ennek az ára
Bugyi átlagár
118.11 M Ft m Ft
80.6 m Ft -46%

Az ingatlan elhelyezkedése

Cím: Bugyi

Eladó ingatlanok a környékről

Eladó ikerház
Eladó ikerház

Solymár

150 M Ft
4 + 2 szoba
252 m2
Eladó ikerház
Eladó ikerház

Pomáz

129.5 M Ft
4 szoba
100 m2
Eladó családi ház
Eladó családi ház

Nagykőrös

69.9 M Ft
3 szoba
130 m2
Eladó ikerház
Eladó ikerház

Tahitótfalu

88.9 M Ft
4 szoba
110 m2
Eladó családi ház
Eladó családi ház

Halásztelek

69 M Ft
5 szoba
140 m2
Eladó telek
Eladó telek

Kerepes

26.5 M Ft
550 m²
Eladó panellakás
Eladó panellakás

Budaörs, Lévai utca

66.5 M Ft
3 szoba
51 m2
Eladó ikerház
Eladó ikerház

Pilisjászfalu

70.563 M Ft
4 szoba
61 m2
Eladó ikerház
Eladó ikerház

Bugyi

118.111 M Ft
4 szoba
127 m2
Eladó ikerház
Eladó ikerház

Dunakeszi

149 M Ft
1 + 4 szoba
127 m2
Eladó családi ház
Eladó családi ház

Dunavarsány

125 M Ft
5 szoba
113 m2
Eladó ikerház
Eladó ikerház

Szentendre

179 M Ft
5 + 1 szoba
147 m2
Eladó ikerház
Eladó ikerház

Bugyi

49.9 M Ft
5 + 1 szoba
153 m2
Eladó ikerház
Eladó ikerház

Rád

100 M Ft
4 szoba
152 m2
Eladó telek
Eladó telek

Kerepes

25.9 M Ft
1001 m²
Eladó ikerház
Eladó ikerház

Veresegyház

145 M Ft
4 szoba
120 m2
Eladó családi ház
Eladó családi ház

Gyömrő

108 M Ft
4 szoba
93 m2
Eladó panellakás
Eladó panellakás

Dunakeszi

95 M Ft
3 szoba
63 m2
Eladó családi ház
Eladó családi ház

Csomád

147 M Ft
4 szoba
340 m2
Eladó nyaraló
Eladó nyaraló

Ráckeve

99.5 M Ft
4 szoba
109 m2
Eladó családi ház
Eladó családi ház

Cegléd

15 M Ft
1 szoba
59 m2
Eladó családi ház
Eladó családi ház

Cegléd

71.5 M Ft
3 szoba
96 m2
Eladó családi ház
Eladó családi ház

Üllő

99.8 M Ft
3 szoba
161 m2
Eladó ikerház
Eladó ikerház

Dunaharaszti

124.999 M Ft
4 szoba
105 m2

Falusi CSOK ingatlanok

Eladó családi ház
Eladó családi ház

Dunaegyháza

34.6 M Ft
3 szoba
70 m2
Eladó családi ház
Eladó családi ház

Pannonhalma

159 M Ft
5 szoba
176 m2
Eladó családi ház
Eladó családi ház

Balatonfenyves

430 M Ft
4 szoba
274 m2
Eladó családi ház
Eladó családi ház

Kisnána

27.9 M Ft
4 szoba
180 m2
Eladó családi ház
Eladó családi ház

Szigliget

125 M Ft
2 + 2 szoba
137 m2
Eladó ikerház
Eladó ikerház

Balatonkenese

84.99 M Ft
3 szoba
76 m2
Eladó családi ház
Eladó családi ház

Sükösd

18.5 M Ft
3 szoba
89 m2
Eladó családi ház
Eladó családi ház

Nick

64 M Ft
4 szoba
140 m2