Oasis Residence

Eladó ikerház
Budapest, XVIII. kerület

1/2
149 900 000 Ft149.9 M Ft 914 024 Ft/m2
4 szoba
164 m²
építés éve:2025

Részletes adatok

Telekméret: 500 m2
Fűtés: Egyéb
Energetikai besorolás: Nem adta meg a hirdető

Az OTP Bank lakáshitel ajánlataFizetett hirdetés

+36 1 690
Csizmazia Gábor Zsolt
Duna House Kispest

Érdekel az OTP Bank kedvezményes lakáshitel ajánlata? *

* A kérdésre „Igen” válasz bejelölése esetén, az „Üzenet küldése” gombra kattintva kijelentem, hogy az OTP Bank Nyrt. Adatkezelési tájékoztatójának tartalmát megismertem és tudomásul vettem.

Eladó ikerház leírása

18.kerület legkedveltebb részén Almáskertben

Almáskertben modern környezetben eladó új építésű ikerházfél.
A kivitelező sok éves múlttal és rengeteg elégedett ügyféllel rendelkezik, referenciák akár itt a lakóparkban is megtekinthetőek.

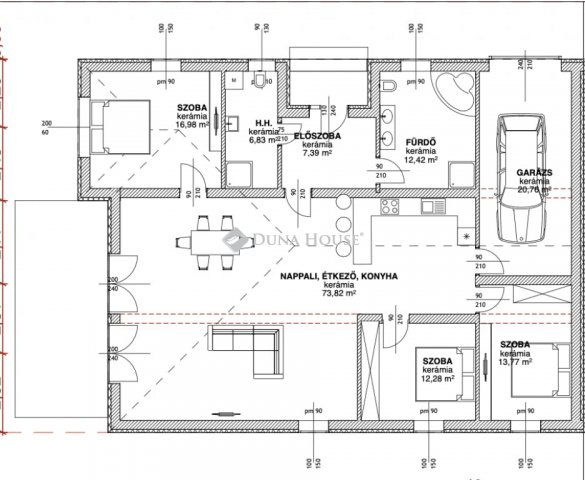
164,25 négyzetméter hasznos lakótérrel rendelkezik, mely egy 500 négyzetméteres telken fekszik. Nappali+3hálószobával rendelkezik, a szobák minimum 12 négyzetméteresek. A földszinten elhelyezkedő 73négyzetméteres nappali+amerikai konyha tágas életteret biztosít, melyből egy csodás privát teraszon keresztül juthatunk ki a saját privát kertünkbe.

Autóval garázsban és az udvaron is lehet parkolni.

Műszaki adatok:

-30-as Prototherm tégla falazat

-15 cm-es homlokzati szigetelés

-29 cm-es szigetelés az aljzat felől

-35 cm-es szigetelés a födém felől

-3 rétegű műanyag nyílászárók, fehér színnel

-a tető szerkezete fafödém cserépfedéssel

-elektromos garázskapu fehér színnel

-elektromos kertikapu

-Hőszivattyús fűtés, padlófűtéssel

-1db hűtő-fűtő klíma

-mosókonyha

-riasztó és kamerarendszer

-térkövezett autóbeálló

Burkolatok/beltéri ajtók/szaniterek még választhatóak.

A HÁZAK CSAK GARÁZZSAL ÉRINTKEZNEK!

A lakópark teljesen új modern környezet, összetartó közösség jellemzi. Közlekedést tekintve autóval a Gyorsforgalmi út, Üllői út, Gyömrői út az M0-ás, M5-ös és a 4-es út mind-mind maximum 5 perc alatt megközelíthető.

Tömegközlekedés 3 perc sétára, ahonnan a buszok Kőbánya Kispest vasútállomásig, illetve Határ úti metrómegálló, Ferihegyi vasútállomás is megközelíthető. 10 perc busz távolságra Ferihegyi vasútállomás, melyről a Nyugati pályaudvarig közlekedhetünk. Séta távolságra: Gyógyszertár, Spar, Iskola, Óvoda, Posta

Felkeltette érdeklődését keressen bizalommal a hét bármely napján!

Referencia szám: HZ094200

Hirdetés feltöltve: 2026. 01. 24. Utoljára módosítva: 2026. 01. 26.

4 szobás ikerházak ára Budapesten

Ebből az összehasonlításból megtudhatod, hogyan viszonyul a lakás ára a környékbeli ikerházak átlagos árához. Ez nem azt jelenti, hogy ennyivel olcsóbb vagy drágább, mint amennyit a lakás ér, hanem hogy ennyivel tér el a környékbeli átlagtól.

Ennek a m² ára
XVIII. kerület m² ár
Budapest m² ár
914 e Ft
995 e Ft 8%
1230 e Ft 26%
Ennek az ára
XVIII. kerület átlagár
Budapest átlagár
149.9 M Ft m Ft
135.5 m Ft -11%
175.6 m Ft 15%

Az ingatlan elhelyezkedése

Cím: Budapest, XVIII. kerület

Eladó ingatlanok a környékről

XVIII. kerület
Eladó ikerház

Budapest, XVIII. kerület

249 M Ft
4 szoba
164 m²
XIV. kerület, Alsórákos, Telepes utca 82-86
Eladó téglalakás

Budapest, XIV. kerület

78.5 M Ft
1 + 1 szoba
40 m²
XVIII. kerület, Almáskert
Eladó ikerház

Budapest, XVIII. kerület

149.9 M Ft
5 szoba
137 m²
XIV. kerület, Alsórákos, Telepes utca 82-86
Eladó téglalakás

Budapest, XIV. kerület

117.9 M Ft
1 + 2 szoba
58 m²
XVIII. kerület
Eladó ikerház

Budapest, XVIII. kerület

74.5 M Ft
4 szoba
110 m²
I. kerület, Krisztinaváros, Feszty Árpád utca
Eladó téglalakás

Budapest, I. kerület

78.99 M Ft
1 szoba
28 m²
XIV. kerület, Alsórákos, Telepes utca 82-86
Eladó téglalakás

Budapest, XIV. kerület

92.9 M Ft
1 + 2 szoba
52 m²
XVIII. kerület
Eladó ikerház

Budapest, XVIII. kerület

49.9 M Ft
2 szoba
70 m²
XVIII. kerület
Eladó ikerház

Budapest, XVIII. kerület

131.9 M Ft
5 szoba
140 m²
XIV. kerület, Alsórákos, Telepes utca 82-86
Eladó téglalakás

Budapest, XIV. kerület

119 M Ft
1 + 3 szoba
71 m²
XVIII. kerület, Erzsébettelep
Eladó ikerház

Budapest, XVIII. kerület

122 M Ft
4 + 1 szoba
117 m²
XVIII. kerület, Gloriett-telep, Sólyom utca
Eladó ikerház

Budapest, XVIII. kerület

49.9 M Ft
2 szoba
40 m²
XVIII. kerület, Almáskert
Eladó ikerház

Budapest, XVIII. kerület

149.9 M Ft
5 szoba
136 m²
XVIII. kerület
Eladó ikerház

Budapest, XVIII. kerület

99.9 M Ft
4 szoba
110 m²
III. kerület, Óbuda, Szomolnok utca
Eladó téglalakás

Budapest, III. kerület

89.9 M Ft
2 + 2 szoba
96 m²
XIV. kerület, Alsórákos, Telepes utca 82-86
Eladó téglalakás

Budapest, XIV. kerület

109.5 M Ft
1 + 2 szoba
54 m²
XIV. kerület, Alsórákos, Telepes utca 82-86
Eladó téglalakás

Budapest, XIV. kerület

79.99 M Ft
1 + 1 szoba
46 m²
XVIII. kerület, Újpéteritelep
Eladó ikerház

Budapest, XVIII. kerület

119.9 M Ft
5 szoba
144 m²
I. kerület, Víziváros, Széna tér
Eladó iroda

Budapest, I. kerület

189 M Ft
4 szoba
90 m²
XVIII. kerület
Eladó ikerház

Budapest, XVIII. kerület

74.5 M Ft
4 szoba
110 m²
XIV. kerület, Alsórákos, Telepes utca 82-86
Eladó téglalakás

Budapest, XIV. kerület

114.5 M Ft
1 + 2 szoba
59 m²
XIV. kerület, Alsórákos, Telepes utca 82-86
Eladó téglalakás

Budapest, XIV. kerület

111.5 M Ft
1 + 2 szoba
59 m²
XVIII. kerület
Eladó ikerház

Budapest, XVIII. kerület

135 M Ft
5 szoba
140 m²
XIV. kerület, Alsórákos, Telepes utca 82-86
Eladó téglalakás

Budapest, XIV. kerület

109.9 M Ft
1 + 2 szoba
59 m²

Falusi CSOK ingatlanok

Rédics
Eladó családi ház

Rédics

64.351 M Ft
3 szoba
180 m²
Somlóvásárhely
Eladó családi ház

Somlóvásárhely

54.99 M Ft
2 szoba
71 m²
Csemő
Eladó családi ház

Csemő

54.9 M Ft
4 szoba
108 m²
Kaposgyarmat
Eladó családi ház

Kaposgyarmat

695 M Ft
6 szoba
610 m²
Szőlősgyörök
Eladó családi ház

Szőlősgyörök

61.9 M Ft
3 szoba
119 m²
Somogygeszti
Eladó családi ház

Somogygeszti

10.9 M Ft
2 szoba
115 m²
Maráza
Eladó családi ház

Maráza

49.99 M Ft
4 szoba
130 m²
Balatonhenye
Eladó családi ház

Balatonhenye

120 M Ft
4 szoba
130 m²