Stay Family Park

Eladó ikerház
Budapest, XVIII. kerület

1/2
159 900 000 Ft159.9 M Ft 980 982 Ft/m2
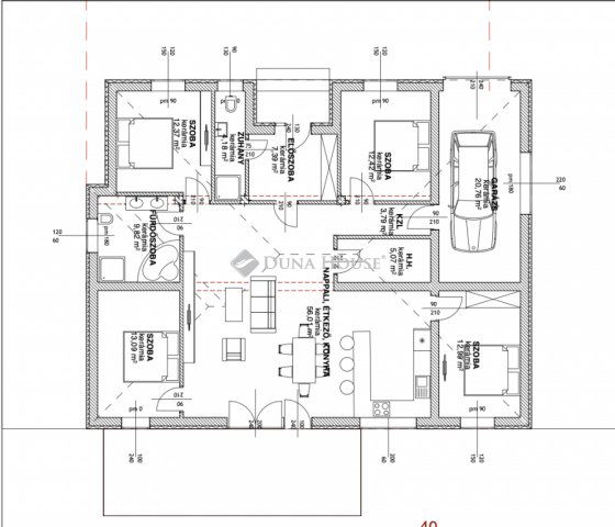
5 szoba
163 m2
építés éve:2025

Részletes adatok

Telekméret: 658 m2
Fűtés: Egyéb
Energetikai besorolás: Nem adta meg a hirdető

Az OTP Bank lakáshitel ajánlataFizetett hirdetés

+36 1 444
Fazekas Istvánné Nóra
referens

Érdekel az OTP Bank kedvezményes lakáshitel ajánlata? *

* A kérdésre „Igen” válasz bejelölése esetén, az „Üzenet küldése” gombra kattintva kijelentem, hogy az OTP Bank Nyrt. Adatkezelési tájékoztatójának tartalmát megismertem és tudomásul vettem.

Eladó ikerház leírása

18.kerület legkedveltebb részén Almáskertben

Almáskertben modern környezetben eladó új építésű egyszintes önálló családi ház..
A kivitelező sok éves múlttal és rengeteg elégedett ügyféllel rendelkezik, referenciák akár itt a lakóparkban is megtekinthetőek.

163 négyzetméter hasznos lakótérrel rendelkezik, mely egy 660 négyzetméteres telken fekszik. Nappali+4hálószobával rendelkezik, a szobák minimum 12 négyzetméteresek. Az 56 négyzetméteres tágas nappaliból egy privát teraszon keresztül juthatunk ki a csodás kertünkbe.
Autóval garázsban és az udvaron is lehet parkolni.

Műszaki adatok:

-30-as Prototherm tégla falazat

-15 cm-es homlokzati szigetelés

-29 cm-es szigetelés az aljzat felől

-35 cm-es szigetelés a födém felől

-3 rétegű műanyag nyílászárók, kívül antracit, belül fehér színnel

-a tető szerkezete fafödém cserépfedéssel

-elektromos garázskapu

-elektromos kertikapu

-Hőszivattyús fűtés, padlófűtéssel

-1db hűtő-fűtő klíma

-riasztó és kamerarendszer

-térkövezett autóbeálló

-2 fürdőszoba

-mosókonyha

Burkolatok/beltéri ajtók/szaniterek még választhatóak.

Átadás 2026. III. negyedévében.

A lakópark teljesen új modern környezet, összetartó közösség jellemzi. Közlekedést tekintve autóval a Gyorsforgalmi út, Üllői út, Gyömrői út az M0-ás, M5-ös és a 4-es út mind-mind maximum 5 perc alatt megközelíthető.

Tömegközlekedés 3 perc sétára, ahonnan a buszok Kőbánya Kispest vasútállomásig, illetve Határ úti metrómegálló, Ferihegyi vasútállomás is megközelíthető. 10 perc busz távolságra Ferihegyi vasútállomás, melyről a Nyugati pályaudvarig közlekedhetünk. Séta távolságra: Gyógyszertár, Spar, Iskola, Óvoda, Posta

Felkeltette érdeklődését keressen bizalommal a hét bármely napján!

Referencia szám: HZ072154

Hirdetés feltöltve: 2025. 11. 06. Utoljára módosítva: 2025. 11. 11.

5 szobás ikerházak ára Budapesten

Ebből az összehasonlításból megtudhatod, hogyan viszonyul a lakás ára a környékbeli ikerházak átlagos árához. Ez nem azt jelenti, hogy ennyivel olcsóbb vagy drágább, mint amennyit a lakás ér, hanem hogy ennyivel tér el a környékbeli átlagtól.

Ennek a m² ára
XVIII. kerület m² ár
Budapest m² ár
981 e Ft
960 e Ft -2%
1153 e Ft 15%
Ennek az ára
XVIII. kerület átlagár
Budapest átlagár
159.9 M Ft m Ft
135.3 m Ft -18%
196.4 m Ft 19%

Az ingatlan elhelyezkedése

Cím: Budapest, XVIII. kerület

Eladó ingatlanok a környékről

Eladó ikerház
Eladó ikerház

XVIII. kerület, Újpéteritelep

69.9 M Ft
4 szoba
155 m2
Eladó ikerház
Eladó ikerház

XVIII. kerület, Gloriett-telep, Sólyom utca

49.9 M Ft
2 szoba
40 m2
Eladó ikerház
Eladó ikerház

III. kerület, Remetehegy

398.4 M Ft
5 szoba
189 m2
Eladó ikerház
Eladó ikerház

XVIII. kerület

49.9 M Ft
2 szoba
40 m2
Eladó ikerház
Eladó ikerház

XVIII. kerület, Almáskert

150 M Ft
3 szoba
212 m2
Eladó ikerház
Eladó ikerház

XVIII. kerület

129.9 M Ft
5 szoba
152 m2
Eladó ikerház
Eladó ikerház

XVIII. kerület, Gloriett-telep, Sólyom utca

49.9 M Ft
2 szoba
70 m2
Eladó ikerház
Eladó ikerház

XVIII. kerület

49.9 M Ft
2 szoba
70 m2
Eladó ikerház
Eladó ikerház

XVIII. kerület

124.9 M Ft
5 szoba
163 m2
Eladó téglalakás
Eladó téglalakás

VI. kerület

125 M Ft
3 + 1 szoba
96 m2
Eladó téglalakás
Eladó téglalakás

VII. kerület

139.9 M Ft
3 szoba
69 m2
Eladó ikerház
Eladó ikerház

XVIII. kerület

135 M Ft
5 szoba
140 m2
Eladó ikerház
Eladó ikerház

XVIII. kerület

129.9 M Ft
5 szoba
143 m2
Eladó téglalakás
Eladó téglalakás

XX. kerület

74.9 M Ft
3 szoba
76 m2
Eladó ikerház
Eladó ikerház

XVIII. kerület, Gloriett-telep, Sólyom utca

99.9 M Ft
4 szoba
110 m2
Eladó ikerház
Eladó ikerház

XVIII. kerület, Ganzkertváros

129.9 M Ft
5 szoba
143 m2
Eladó téglalakás
Eladó téglalakás

XI. kerület

47 M Ft
2 szoba
39 m2
Eladó panellakás
Eladó panellakás

XV. kerület

78 M Ft
4 szoba
69 m2
Eladó ikerház
Eladó ikerház

XVIII. kerület

99.9 M Ft
4 szoba
110 m2
Eladó ikerház
Eladó ikerház

XVIII. kerület

129.9 M Ft
5 szoba
143 m2
Eladó ipari ingatlan
Eladó ipari ingatlan

IX. kerület

10.9 M Ft
26 m2
Eladó téglalakás
Eladó téglalakás

XIV. kerület, Istvánmező

81.5 M Ft
2 szoba
64 m2
Eladó téglalakás
Eladó téglalakás

XVIII. kerület

101 M Ft
3 szoba
67 m2
Eladó ikerház
Eladó ikerház

XVIII. kerület

99.9 M Ft
4 szoba
110 m2

Falusi CSOK ingatlanok

Eladó családi ház
Eladó családi ház

Iváncsa

73.9 M Ft
1 + 3 szoba
97 m2
Eladó családi ház
Eladó családi ház

Mezőfalva

39 M Ft
3 szoba
77 m2
Eladó családi ház
Eladó családi ház

Gyöngyöshalász

59 M Ft
4 + 3 szoba
214 m2
Eladó családi ház
Eladó családi ház

Kondorfa

71 M Ft
2 szoba
82 m2
Eladó téglalakás
Eladó téglalakás

Balatonszemes

123.3 M Ft
2 szoba
70 m2
Eladó családi ház
Eladó családi ház

Zalacsány

75 M Ft
3 szoba
90 m2
Eladó családi ház
Eladó családi ház

Bükkábrány

46.9 M Ft
4 szoba
120 m2
Eladó családi ház
Eladó családi ház

Egyházasrádóc

69.5 M Ft
3 szoba
100 m2