Eladó ikerház
Budapest, XVIII. kerület

1/2
159 900 000 Ft159.9 M Ft 980 982 Ft/m2
5 szoba
163 m2
építés éve:2025

Részletes adatok

Telekméret: 658 m2
Fűtés: Egyéb
Energetikai besorolás: Nem adta meg a hirdető

Az OTP Bank lakáshitel ajánlataFizetett hirdetés

3629998495
Nagy Judit
referens

Érdekel az OTP Bank kedvezményes lakáshitel ajánlata? *

* A kérdésre „Igen” válasz bejelölése esetén, az „Üzenet küldése” gombra kattintva kijelentem, hogy az OTP Bank Nyrt. Adatkezelési tájékoztatójának tartalmát megismertem és tudomásul vettem.

Eladó ikerház leírása

18.kerület legkedveltebb részén Almáskertben

Almáskertben modern környezetben eladó új építésű egyszintes önálló családi ház..
A kivitelező sok éves múlttal és rengeteg elégedett ügyféllel rendelkezik, referenciák akár itt a lakóparkban is megtekinthetőek.

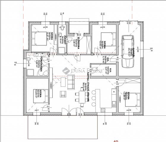
163 négyzetméter hasznos lakótérrel rendelkezik, mely egy 660 négyzetméteres telken fekszik. Nappali+4hálószobával rendelkezik, a szobák minimum 12 négyzetméteresek. Az 56 négyzetméteres tágas nappaliból egy privát teraszon keresztül juthatunk ki a csodás kertünkbe.
Autóval garázsban és az udvaron is lehet parkolni.

Műszaki adatok:

-30-as Prototherm tégla falazat

-15 cm-es homlokzati szigetelés

-29 cm-es szigetelés az aljzat felől

-35 cm-es szigetelés a födém felől

-3 rétegű műanyag nyílászárók, kívül antracit, belül fehér színnel

-a tető szerkezete fafödém cserépfedéssel

-elektromos garázskapu

-elektromos kertikapu

-Hőszivattyús fűtés, padlófűtéssel

-1db hűtő-fűtő klíma

-riasztó és kamerarendszer

-térkövezett autóbeálló

-2 fürdőszoba

-mosókonyha

Burkolatok/beltéri ajtók/szaniterek még választhatóak.

Átadás 2026. III. negyedévében.

A lakópark teljesen új modern környezet, összetartó közösség jellemzi. Közlekedést tekintve autóval a Gyorsforgalmi út, Üllői út, Gyömrői út az M0-ás, M5-ös és a 4-es út mind-mind maximum 5 perc alatt megközelíthető.

Tömegközlekedés 3 perc sétára, ahonnan a buszok Kőbánya Kispest vasútállomásig, illetve Határ úti metrómegálló, Ferihegyi vasútállomás is megközelíthető. 10 perc busz távolságra Ferihegyi vasútállomás, melyről a Nyugati pályaudvarig közlekedhetünk. Séta távolságra: Gyógyszertár, Spar, Iskola, Óvoda, Posta

Felkeltette érdeklődését keressen bizalommal a hét bármely napján!
Forduljon hozzám bizalommal a Duna House teljes kínálatával kapcsolatban, illetve eladási szándékával!
Szolgáltatásaink között megtalálható:
-Ingyenes hitelügyintézés a nemzetközileg elismert Credipass segítségével, garantáltan a legjobb feltételekkel és a leggyorsabb ügyintézéssel.
-Teljes körű ügyintézés ingatlan eladásához és vételéhez.
-Energetikai tanúsítvány készítése gyorsan és megbízhatóan.
-Ingyenes tanácsadás és értékbecslés, hogy a legjobb döntést hozhassa meg.
-Megbízható ügyvédi háttér biztosítása az adásvétel zökkenőmentes lebonyolításához.

Érd.: Nagy Judit +36/30-638-9866 nagy.judit@dh.hu

Referencia szám: HZ072154

Hirdetés feltöltve: 2025. 10. 07.

5 szobás ikerházak ára Budapesten

Ebből az összehasonlításból megtudhatod, hogyan viszonyul a lakás ára a környékbeli ikerházak átlagos árához. Ez nem azt jelenti, hogy ennyivel olcsóbb vagy drágább, mint amennyit a lakás ér, hanem hogy ennyivel tér el a környékbeli átlagtól.

Ennek a m² ára
XVIII. kerület m² ár
Budapest m² ár
981 e Ft
943 e Ft -4%
1132 e Ft 13%
Ennek az ára
XVIII. kerület átlagár
Budapest átlagár
159.9 M Ft m Ft
138.3 m Ft -16%
203.8 m Ft 22%

Az ingatlan elhelyezkedése

Cím: Budapest, XVIII. kerület

Eladó ingatlanok a környékről

Eladó panellakás
Eladó panellakás

XIII. kerület, Angyalföld

90 M Ft
3 szoba
67 m2
Eladó ikerház
Eladó ikerház

XXII. kerület

114 M Ft
4 szoba
80 m2
Eladó téglalakás
Eladó téglalakás

XVII. kerület

69.9 M Ft
2 szoba
42 m2
Eladó családi ház
Eladó családi ház

XVI. kerület

174.99 M Ft
5 szoba
250 m2
Eladó ikerház
Eladó ikerház

XVIII. kerület

150 M Ft
3 szoba
212 m2
Eladó ikerház
Eladó ikerház

XVIII. kerület, Ganztelep, Hubay Jenő utca

35 M Ft
2 szoba
50 m2
Eladó ikerház
Eladó ikerház

XVIII. kerület

125 M Ft
5 szoba
143 m2
Eladó panellakás
Eladó panellakás

IV. kerület, Újpest, Deák Ferenc utca

73.5 M Ft
1 + 2 szoba
59 m2
Eladó ikerház
Eladó ikerház

XVIII. kerület, Almáskert

249 M Ft
4 szoba
164 m2
Eladó családi ház
Eladó családi ház

XVIII. kerület, Miklóstelep, Cserép utca

199.9 M Ft
5 szoba
210 m2
Eladó ikerház
Eladó ikerház

XVIII. kerület

135 M Ft
5 szoba
140 m2
Eladó téglalakás
Eladó téglalakás

VIII. kerület, Tisztviselőtelep, Orczy út

39.99 M Ft
1 szoba
23 m2
Eladó ipari ingatlan
Eladó ipari ingatlan

XXI. kerület

245 M Ft
70000 m²
1868 m2
Eladó ikerház
Eladó ikerház

XVIII. kerület, Újpéteritelep

130 M Ft
5 szoba
141 m2
Eladó ikerház
Eladó ikerház

XVIII. kerület

150 M Ft
3 szoba
212 m2
Eladó téglalakás
Eladó téglalakás

X. kerület, Óhegy, Román utca

65 M Ft
2 szoba
49 m2
Eladó ikerház
Eladó ikerház

XVIII. kerület

150 M Ft
3 szoba
212 m2
Eladó ipari ingatlan
Eladó ipari ingatlan

III. kerület, Óbuda, Folyamőr utca

4.15 M Ft
3 m2
Eladó téglalakás
Eladó téglalakás

IV. kerület, Újpest, Batthyány utca

56.9 M Ft
2 + 1 szoba
55 m2
Eladó ikerház
Eladó ikerház

XVIII. kerület, Almáskert

150 M Ft
3 szoba
212 m2
Eladó téglalakás
Eladó téglalakás

IV. kerület, Újpest, Závodszky Zoltán utca

43 M Ft
1 szoba
27 m2
Eladó téglalakás
Eladó téglalakás

XI. kerület, Gellérthegy

142 M Ft
2 + 1 szoba
71 m2
Eladó iroda
Eladó iroda

XXII. kerület, Budatétény

380 M Ft
1275 m2
Eladó telek
Eladó telek

XVI. kerület, Árpádföld, Bekecs utca

79 M Ft
2 szoba
100 m2

Falusi CSOK ingatlanok

Eladó családi ház
Eladó családi ház

Fényeslitke

29.5 M Ft
3 + 1 szoba
127 m2
Eladó családi ház
Eladó családi ház

Bugac

15 M Ft
3 szoba
52 m2
Eladó családi ház
Eladó családi ház

Tápióbicske

24.9 M Ft
4 szoba
83 m2
Eladó családi ház
Eladó családi ház

Mezőzombor

19.99 M Ft
3 szoba
91 m2
Eladó családi ház
Eladó családi ház

Görcsöny

79.9 M Ft
4 szoba
213 m2
Eladó családi ház
Eladó családi ház

Vaskút

24.9 M Ft
4 szoba
150 m2
Eladó családi ház
Eladó családi ház

Törtel

39 M Ft
1 + 1 szoba
118 m2
Eladó családi ház
Eladó családi ház

Sárosd

34 M Ft
3 + 2 szoba
95 m2