River Life

Eladó ikerház
Budapest, XVIII. kerület, Almáskert

1/2
159 900 000 Ft159.9 M Ft 975 000 Ft/m2
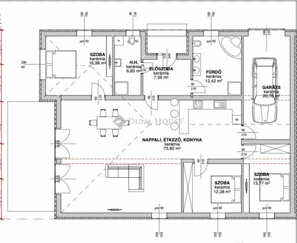
4 szoba
164 m2
építés éve:2025

Részletes adatok

Telekméret: 500 m2
Fűtés: Egyéb
Energetikai besorolás: Nem adta meg a hirdető

Az OTP Bank lakáshitel ajánlataFizetett hirdetés

+36 1 690
Zöldi Norbert
referens

Érdekel az OTP Bank kedvezményes lakáshitel ajánlata? *

* A kérdésre „Igen” válasz bejelölése esetén, az „Üzenet küldése” gombra kattintva kijelentem, hogy az OTP Bank Nyrt. Adatkezelési tájékoztatójának tartalmát megismertem és tudomásul vettem.

Eladó ikerház leírása

18.kerület legkedveltebb részén, Almáskertben

Almáskertben modern környezetben eladó új építésű ikerházfél.
A kivitelező sok éves múlttal és rengeteg elégedett ügyféllel rendelkezik, referenciák akár itt a lakóparkban is megtekinthetők.

164,25 négyzetméter hasznos lakótérrel rendelkezik, mely egy 500 négyzetméteres telken fekszik. Nappali + 3 hálószobával rendelkezik, a szobák minimum 12 négyzetméteresek.
A földszinten elhelyezkedő 73 négyzetméteres nappali+amerikai konyha tágas életteret biztosít, melyből egy csodás privát teraszon keresztül juthatunk ki a saját privát kertünkbe.

Autóval garázsban és az udvaron is lehet parkolni.

Műszaki adatok:
-30-as Prototherm tégla falazat
-15 cm-es homlokzati szigetelés
-29 cm-es szigetelés az aljzat felől
-35 cm-es szigetelés a födém felől
-3 rétegű műanyag nyílászárók, fehér színnel
-a tető szerkezete fafödém cserépfedéssel
-elektromos garázskapu fehér színnel
-elektromos kertikapu
-Hőszivattyús fűtés, padlófűtéssel
-1db hűtő-fűtő klíma
-mosókonyha
-riasztó és kamerarendszer
-térkövezett autóbeálló

Burkolatok/beltéri ajtók/szaniterek még választhatóak.

A HÁZAK CSAK GARÁZZSAL ÉRINTKEZNEK!

A lakópark teljesen új modern környezet, összetartó közösség jellemzi. Közlekedést tekintve autóval a Gyorsforgalmi út, Üllői út, Gyömrői út az M0-ás, M5-ös és a 4-es út mind-mind maximum 5 perc alatt megközelíthető.

Tömegközlekedés 3 perc sétára, ahonnan a buszok Kőbánya Kispest vasútállomásig, illetve Határ úti metrómegálló, Ferihegyi vasútállomás is megközelíthető. 10 perc busz távolságra Ferihegyi vasútállomás, melyről a Nyugati pályaudvarig közlekedhetünk. Séta távolságra: Gyógyszertár, Spar, Iskola, Óvoda, Posta

Felkeltette érdeklődését keressen bizalommal a hét bármely napján!
Zöldi Norbert +36709450148

Referencia szám: HZ094200

Hirdetés feltöltve: 2025. 10. 06. Utoljára módosítva: 2025. 11. 02.

4 szobás ikerházak ára Budapesten

Ebből az összehasonlításból megtudhatod, hogyan viszonyul a lakás ára a környékbeli ikerházak átlagos árához. Ez nem azt jelenti, hogy ennyivel olcsóbb vagy drágább, mint amennyit a lakás ér, hanem hogy ennyivel tér el a környékbeli átlagtól.

Ennek a m² ára
Almáskert m² ár
XVIII. kerület m² ár
Budapest m² ár
975 e Ft
1047 e Ft 7%
901 e Ft -8%
1275 e Ft 24%
Ennek az ára
Almáskert átlagár
XVIII. kerület átlagár
Budapest átlagár
159.9 M Ft m Ft
160.5 m Ft 0%
129.7 m Ft -23%
184.9 m Ft 13%

Az ingatlan elhelyezkedése

Cím: Budapest, XVIII. kerület, Almáskert

Eladó ingatlanok a környékről

Eladó téglalakás
Eladó téglalakás

VI. kerület, Külső Terézváros, Szófia utca

119.9 M Ft
4 szoba
103 m2
Eladó téglalakás
Eladó téglalakás

XIII. kerület

72.9 M Ft
2 szoba
50 m2
Eladó téglalakás
Eladó téglalakás

III. kerület, Rómaifürdő, Királyok útja

139 M Ft
3 szoba
65 m2
Eladó ikerház
Eladó ikerház

XVIII. kerület, Újpéteritelep

69.9 M Ft
4 szoba
155 m2
Eladó családi ház
Eladó családi ház

XXII. kerület, Budafok, Baross utca

199 M Ft
6 + 1 szoba
200 m2
Eladó ikerház
Eladó ikerház

XVIII. kerület, Gloriett-telep, Sólyom utca

49.9 M Ft
2 szoba
40 m2
Eladó üzlethelyiség
Eladó üzlethelyiség

II. kerület, Országút, Margit körút

6.999 M Ft
5 m2
Eladó ikerház
Eladó ikerház

XVIII. kerület

100 M Ft
4 szoba
158 m2
Eladó téglalakás
Eladó téglalakás

VII. kerület, Belső Erzsébetváros, Erzsébet körút

160 M Ft
3 szoba
88 m2
Eladó ikerház
Eladó ikerház

XVIII. kerület, Almáskert

249 M Ft
4 szoba
164 m2
Eladó téglalakás
Eladó téglalakás

VII. kerület, Belső Erzsébetváros, Erzsébet körút

89.9 M Ft
1 + 1 szoba
71 m2
Eladó ikerház
Eladó ikerház

XVIII. kerület

154.9 M Ft
6 szoba
172 m2
Eladó ikerház
Eladó ikerház

XVIII. kerület, Ganzkertváros

129.9 M Ft
5 szoba
143 m2
Eladó ikerház
Eladó ikerház

XVIII. kerület

49.9 M Ft
2 szoba
70 m2
Eladó családi ház
Eladó családi ház

XXII. kerület

119 M Ft
3 szoba
70 m2
Eladó ikerház
Eladó ikerház

XVIII. kerület

150 M Ft
3 szoba
212 m2
Eladó ikerház
Eladó ikerház

XVIII. kerület

129.9 M Ft
5 szoba
143 m2
Eladó téglalakás
Eladó téglalakás

V. kerület, Belváros, Belgrád rakpart

78 M Ft
1 + 1 szoba
42 m2
Eladó téglalakás
Eladó téglalakás

V. kerület, Belváros, Petőfi Sándor utca

134 M Ft
2 szoba
59 m2
Eladó ikerház
Eladó ikerház

XVIII. kerület, Gloriett-telep, Sólyom utca

99.9 M Ft
4 szoba
110 m2
Eladó ikerház
Eladó ikerház

XVIII. kerület

150 M Ft
3 szoba
212 m2
Eladó téglalakás
Eladó téglalakás

I. kerület, Krisztinaváros, Feszty Árpád utca

78.99 M Ft
1 szoba
28 m2
Eladó ikerház
Eladó ikerház

XVIII. kerület

135 M Ft
5 szoba
140 m2
Eladó ikerház
Eladó ikerház

XVIII. kerület, Gloriett-telep, Sólyom utca

49.9 M Ft
2 szoba
70 m2

Falusi CSOK ingatlanok

Eladó családi ház
Eladó családi ház

Pápadereske

28 M Ft
2 szoba
78 m2
Eladó családi ház
Eladó családi ház

Jakabszállás

320 M Ft
15 szoba
665 m2
Eladó családi ház
Eladó családi ház

Rábaszentmihály

65 M Ft
3 szoba
156 m2
Eladó családi ház
Eladó családi ház

Badacsonytomaj

199.8 M Ft
3 szoba
166 m2
Eladó családi ház
Eladó családi ház

Nagyberki, Újváros u

20.9 M Ft
3 szoba
88 m2
Eladó családi ház
Eladó családi ház

Vilonya

71.9 M Ft
5 szoba
105 m2
Eladó családi ház
Eladó családi ház

Tokod

89 M Ft
6 szoba
187 m2
Eladó családi ház
Eladó családi ház

Vasvár

64.9 M Ft
3 szoba
91 m2