Astora Márvány8

Eladó ikerház
Budapest, XVIII. kerület

1/2
159 900 000 Ft159.9 M Ft 980 982 Ft/m2
5 szoba
163 m²
építés éve:2025

Részletes adatok

Telekméret: 658 m2
Fűtés: Egyéb
Energetikai besorolás: A++

Az OTP Bank lakáshitel ajánlataFizetett hirdetés

+36 1 690
Zöldi Norbert
referens

Érdekel az OTP Bank kedvezményes lakáshitel ajánlata? *

* A kérdésre „Igen” válasz bejelölése esetén, az „Üzenet küldése” gombra kattintva kijelentem, hogy az OTP Bank Nyrt. Adatkezelési tájékoztatójának tartalmát megismertem és tudomásul vettem.

Eladó ikerház leírása

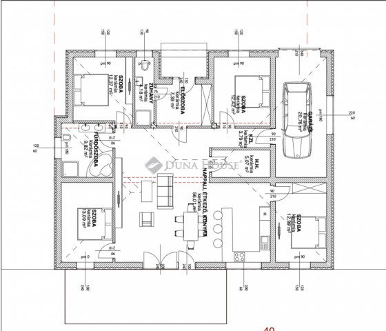
Almáskertben modern környezetben eladó új építésű, 163 nm-es, nappali + 4 hálószobás, egyszintes önálló családi ház.

A kivitelező sok éves múlttal és rengeteg elégedett ügyféllel rendelkezik, referenciák akár itt a lakóparkban is megtekinthetők.

163 négyzetméter hasznos lakótérrel rendelkezik, mely egy 660 négyzetméteres telken fekszik. Nappali + 4 hálószobával rendelkezik, a szobák minimum 12 négyzetméteresek. Az 56 négyzetméteres tágas nappaliból egy privát teraszon keresztül juthatunk ki a csodás kertünkbe.

Autóval garázsban és az udvaron is lehet parkolni.

Műszaki adatok:
-30-as Prototherm tégla falazat
-15 cm-es homlokzati szigetelés
-29 cm-es szigetelés az aljzat felől
-35 cm-es szigetelés a födém felől
-3 rétegű műanyag nyílászárók, kívül antracit, belül fehér színnel
-a tető szerkezete fafödém cserépfedéssel
-elektromos garázskapu
-elektromos kertikapu
-Hőszivattyús fűtés, padlófűtéssel
-1db hűtő-fűtő klíma
-riasztó és kamerarendszer
-térkövezett autóbeálló
-2 fürdőszoba
-mosókonyha

Burkolatok/beltéri ajtók/szaniterek még választhatóak.

Átadás 2026. III. negyedévében.

A lakópark teljesen új modern környezet, összetartó közösség jellemzi. Közlekedést tekintve autóval a Gyorsforgalmi út, Üllői út, Gyömrői út az M0-ás, M5-ös és a 4-es út mind-mind maximum 5 perc alatt megközelíthető.

Tömegközlekedés 3 perc sétára, ahonnan a buszok Kőbánya Kispest vasútállomásig, illetve Határ úti metrómegálló, Ferihegyi vasútállomás is megközelíthető. 10 perc busz távolságra Ferihegyi vasútállomás, melyről a Nyugati pályaudvarig közlekedhetünk. Séta távolságra: Gyógyszertár, Spar, Iskola, Óvoda, Posta

Felkeltette érdeklődését keressen bizalommal a hét bármely napján!
Zöldi Norbert +36709450148

Referencia szám: HZ072154

Hirdetés feltöltve: 2025. 10. 06. Utoljára módosítva: 2026. 04. 01.

5 szobás ikerházak ára Budapesten

Ebből az összehasonlításból megtudhatod, hogyan viszonyul a lakás ára a környékbeli ikerházak átlagos árához. Ez nem azt jelenti, hogy ennyivel olcsóbb vagy drágább, mint amennyit a lakás ér, hanem hogy ennyivel tér el a környékbeli átlagtól.

Ennek a m² ára
XVIII. kerület m² ár
Budapest m² ár
981 e Ft
1014 e Ft 3%
1182 e Ft 17%
Ennek az ára
XVIII. kerület átlagár
Budapest átlagár
159.9 M Ft m Ft
142 m Ft -13%
208.8 m Ft 23%

Az ingatlan elhelyezkedése

Cím: Budapest, XVIII. kerület

Eladó ingatlanok a környékről

XIII. kerület, Vizafogó, Sólyatér utca 15
Eladó téglalakás

Budapest, XIII. kerület

94.743 M Ft
2 szoba
43 m²
XIII. kerület, Vizafogó, Sólyatér utca 15
Eladó téglalakás

Budapest, XIII. kerület

103.583 M Ft
2 szoba
49 m²
XIII. kerület, Vizafogó, Sólyatér utca 15
Eladó téglalakás

Budapest, XIII. kerület

91.298 M Ft
2 szoba
40 m²
XIII. kerület, Vizafogó, Sólyatér utca 15
Eladó téglalakás

Budapest, XIII. kerület

76.553 M Ft
1 szoba
40 m²
XIII. kerület, Vizafogó, Sólyatér utca 15
Eladó téglalakás

Budapest, XIII. kerület

91.118 M Ft
2 szoba
47 m²
XIII. kerület, Vizafogó, Sólyatér utca 15
Eladó téglalakás

Budapest, XIII. kerület

102.258 M Ft
2 szoba
47 m²
XIII. kerület, Vizafogó, Sólyatér utca 15
Eladó téglalakás

Budapest, XIII. kerület

138.987 M Ft
3 szoba
67 m²
XIII. kerület, Vizafogó, Sólyatér utca 15
Eladó téglalakás

Budapest, XIII. kerület

155.703 M Ft
3 szoba
69 m²
XVIII. kerület
Eladó ikerház

Budapest, XVIII. kerület

154.9 M Ft
5 szoba
134 m²
XVIII. kerület
Eladó ikerház

Budapest, XVIII. kerület

149.9 M Ft
5 szoba
137 m²
XVIII. kerület
Eladó ikerház

Budapest, XVIII. kerület

122 M Ft
4 + 1 szoba
117 m²
XIII. kerület, Vizafogó, Sólyatér utca 15
Eladó téglalakás

Budapest, XIII. kerület

79.489 M Ft
1 szoba
40 m²
XIII. kerület, Vizafogó, Sólyatér utca 15
Eladó téglalakás

Budapest, XIII. kerület

100.35 M Ft
2 szoba
50 m²
XIII. kerület, Vizafogó, Sólyatér utca 15
Eladó téglalakás

Budapest, XIII. kerület

91.234 M Ft
2 szoba
43 m²
XVIII. kerület
Eladó ikerház

Budapest, XVIII. kerület

139.99 M Ft
5 szoba
140 m²
XIII. kerület, Vizafogó, Sólyatér utca 15
Eladó téglalakás

Budapest, XIII. kerület

111.862 M Ft
3 szoba
59 m²
XIII. kerület, Vizafogó, Sólyatér utca 15
Eladó téglalakás

Budapest, XIII. kerület

134.673 M Ft
2 szoba
54 m²
XIII. kerület, Vizafogó, Sólyatér utca 15
Eladó téglalakás

Budapest, XIII. kerület

79.585 M Ft
1 szoba
34 m²
XIII. kerület, Vizafogó, Sólyatér utca 15
Eladó téglalakás

Budapest, XIII. kerület

152.439 M Ft
3 szoba
68 m²
XVIII. kerület
Eladó ikerház

Budapest, XVIII. kerület

154.9 M Ft
5 szoba
134 m²
XVIII. kerület
Eladó ikerház

Budapest, XVIII. kerület

125 M Ft
7 szoba
270 m²
XIII. kerület, Vizafogó, Sólyatér utca 15
Eladó téglalakás

Budapest, XIII. kerület

96.534 M Ft
2 szoba
50 m²
XIII. kerület, Vizafogó, Sólyatér utca 15
Eladó téglalakás

Budapest, XIII. kerület

92.209 M Ft
2 szoba
43 m²
XVIII. kerület
Eladó ikerház

Budapest, XVIII. kerület

149.9 M Ft
5 szoba
137 m²

Falusi CSOK ingatlanok

Bogács
Eladó családi ház

Bogács

64.95 M Ft
7 szoba
125 m²
Gelse
Eladó családi ház

Gelse

49.9 M Ft
3 szoba
97 m²
Bag
Eladó családi ház

Bag

16.9 M Ft
6 szoba
160 m²
Ostffyasszonyfa
Eladó családi ház

Ostffyasszonyfa

37.9 M Ft
5 szoba
494 m²
Mártély
Eladó családi ház

Mártély

75 M Ft
1107 m²
0 m²
Tápióbicske
Eladó ikerház

Tápióbicske

93.5 M Ft
7 szoba
136 m²
Seregélyes
Eladó családi ház

Seregélyes

75 M Ft
6 szoba
160 m²
Pálfa
Eladó családi ház

Pálfa

26.99 M Ft
3 szoba
90 m²