City Pearl

Eladó ikerház
Budapest, XVII. kerület

+ 9 kép 1/12
210 000 000 Ft210 M Ft 1 105 263 Ft/m2
4 szoba
190 m2
építés éve:2025

Részletes adatok

Telekméret: 695 m2
Fűtés: Egyéb
Energetikai besorolás: G

Az OTP Bank lakáshitel ajánlataFizetett hirdetés

+36 1 444
Barczi Bernadett
referens

Érdekel az OTP Bank kedvezményes lakáshitel ajánlata? *

* A kérdésre „Igen” válasz bejelölése esetén, az „Üzenet küldése” gombra kattintva kijelentem, hogy az OTP Bank Nyrt. Adatkezelési tájékoztatójának tartalmát megismertem és tudomásul vettem.

Eladó ikerház leírása

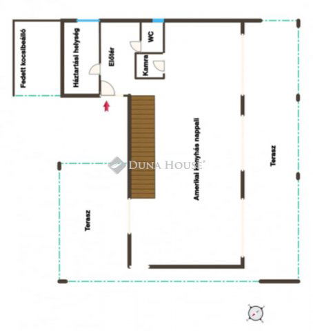
Újépítésű prémium ikerház a Szőlőliget Ökoparkban természetközeli, modern élet fiatal családoknak!Ha mindig is olyan otthonról álmodtál, ahol a modern technológia és a természet közelsége kéz a kézben jár, akkor ez a Szőlőliget Ökoparkban épülő új prémium ikerházfél neked szól!Ez a 70%-os készültségű, két szintes, közel 200 m²-es modern otthon 695 m²-es saját kerttel, két tágas, 40 m²-es terasszal, 20 m²-es erkéllyel és önálló garázzsal rendelkezik, minden adott egy kényelmes, nyugodt családi élethez.A garázs ára: 26 M Ft, az ikerházfél ára együtt: 225 M Ft.A ház elrendezése:A földszinten egy 79 m²-es, 3,2 méteres belmagasságú amerikai konyhás nappali, kamra, háztartási helyiség és vendég-WC található, közvetlen kijárattal a 40 m²-es fedett teraszra és kertbe.Az emeleten négy tágas hálószoba, két fürdőszoba, gardrób és egy 20 m²-es napfényes terasz kapott helyet.Főbb műszaki jellemzők:Falazat: 30 cm Porotherm + 15 cm hőszigetelésTető: Lindab lemezfedésNyílászárók: 3 rétegű üvegezés, elektromos alumínium redőnyFűtéshűtés: 16 kW-os levegővíz hőszivattyú, padlófűtés és mennyezethűtésSzellőzés: Wolf hővisszanyerős szellőztető rendszerExtrák: elektromos kertkapu, riasztó-előkészítés, üvegkorlátos terasz, prémium anyaghasználatBurkolatok és szaniterek még választhatók így teljesen a saját ízlésedre formálhatod új otthonodat.Miért különleges a Szőlőliget Ökopark?A Szőlőliget Ökopark prémium lakóövezet, ahol a fenntarthatóság és a közösségi szemlélet találkozik a modern építészeti megoldásokkal. Rendezett utcák, újépítésű házak, csendes és biztonságos környezet, valamint gyermekbarát közösség várja az ide költöző családokat.Ideális választás, ha...fiatal családként szeretnél nyugodt, biztonságos környezetben élni, fontos számodra a korszerű technológia és az alacsony rezsi, és olyan otthont keresel, ami értékálló befektetés is egyben.Ár: 225.000.000 Ft (garázzsal együtt)Készültség: 70% a belső kialakítás még személyre szabhatóA hirdetésben szereplő fotók között látványfotók is vannak.Ha szeretnéd megtapasztalni, milyen a modern családi élet a természet közelében,keress bizalommal, és mutatom a Szőlőliget Ökopark egyik legszebb otthonát!

Hirdetés feltöltve: 2025. 11. 25. Utoljára módosítva: 2026. 01. 13.

4 szobás ikerházak ára Budapesten

Ebből az összehasonlításból megtudhatod, hogyan viszonyul a lakás ára a környékbeli ikerházak átlagos árához. Ez nem azt jelenti, hogy ennyivel olcsóbb vagy drágább, mint amennyit a lakás ér, hanem hogy ennyivel tér el a környékbeli átlagtól.

Ennek a m² ára
XVII. kerület m² ár
Budapest m² ár
1105 e Ft
1162 e Ft 5%
1243 e Ft 11%
Ennek az ára
XVII. kerület átlagár
Budapest átlagár
210 M Ft m Ft
137 m Ft -53%
179.9 m Ft -17%

Az ingatlan elhelyezkedése

Cím: Budapest, XVII. kerület

Eladó ingatlanok a környékről

Eladó ikerház
Eladó ikerház

XVII. kerület

145 M Ft
4 szoba
116 m2
Eladó ikerház
Eladó ikerház

XVII. kerület

110 M Ft
4 szoba
96 m2
Eladó ikerház
Eladó ikerház

XVII. kerület

249 M Ft
1 + 3 szoba
233 m2
Eladó ikerház
Eladó ikerház

XVII. kerület

109 M Ft
4 szoba
156 m2
Eladó ikerház
Eladó ikerház

XVII. kerület

155 M Ft
4 szoba
134 m2
Eladó téglalakás
Eladó téglalakás

XIII. kerület, Angyalföld, Fiastyúk utca

39.9 M Ft
1 + 1 szoba
34 m2
Eladó ikerház
Eladó ikerház

XVII. kerület, Rákoscsaba

145 M Ft
6 szoba
152 m2
Eladó téglalakás
Eladó téglalakás

VII. kerület, Belső Erzsébetváros, Rózsa utca

170 M Ft
5 szoba
124 m2
Eladó ikerház
Eladó ikerház

XVII. kerület

160 M Ft
5 szoba
196 m2
Eladó téglalakás
Eladó téglalakás

VI. kerület, Külső Terézváros, Szív utca

124.9 M Ft
3 szoba
94 m2
Eladó téglalakás
Eladó téglalakás

I. kerület, Krisztinaváros, Feszty Árpád utca

78.99 M Ft
1 szoba
28 m2
Eladó ikerház
Eladó ikerház

XVII. kerület

139 M Ft
1 + 3 szoba
83 m2
Eladó ikerház
Eladó ikerház

XVII. kerület, Rákosliget

155 M Ft
4 szoba
134 m2
Eladó téglalakás
Eladó téglalakás

V. kerület, Belváros, Belgrád rakpart

78 M Ft
1 + 1 szoba
42 m2
Eladó ikerház
Eladó ikerház

XVII. kerület, Rákoscsaba

129.9 M Ft
5 szoba
130 m2
Eladó téglalakás
Eladó téglalakás

VII. kerület, Belső Erzsébetváros, Erzsébet körút

160 M Ft
3 szoba
88 m2
Eladó ikerház
Eladó ikerház

XVII. kerület

110 M Ft
100 m2
Eladó téglalakás
Eladó téglalakás

III. kerület, Óbudaisziget, Folyamőr utca

69.9 M Ft
1 szoba
25 m2
Eladó téglalakás
Eladó téglalakás

IV. kerület

87.5 M Ft
3 szoba
60 m2
Eladó téglalakás
Eladó téglalakás

XI. kerület, Gellérthegy, Gyula utca

130 M Ft
2 szoba
56 m2
Eladó téglalakás
Eladó téglalakás

XI. kerület, Lágymányos, Móricz Zsigmond körtér

89.5 M Ft
2 szoba
52 m2
Eladó iroda
Eladó iroda

I. kerület, Víziváros, Széna tér

189 M Ft
4 szoba
90 m2
Eladó ikerház
Eladó ikerház

XVII. kerület

70 M Ft
150 m²
165 m2
Eladó ikerház
Eladó ikerház

XVII. kerület

160 M Ft
5 szoba
196 m2

Falusi CSOK ingatlanok

Eladó családi ház
Eladó családi ház

Szentbékkálla, Szentbékkálla

63.9 M Ft
2 szoba
143 m2
Eladó családi ház
Eladó családi ház

Kenyeri

21.8 M Ft
2 szoba
75 m2
Eladó családi ház
Eladó családi ház

Nagyváty, Kossuth utca

51.9 M Ft
4 szoba
125 m2
Eladó téglalakás
Eladó téglalakás

Várbalog

38.9 M Ft
3 szoba
45 m2
Eladó családi ház
Eladó családi ház

Szenyér

6.5 M Ft
2 szoba
67 m2
Eladó családi ház
Eladó családi ház

Baté

21.8 M Ft
2 szoba
60 m2
Eladó családi ház
Eladó családi ház

Gáborján

5.5 M Ft
2 szoba
68 m2
Eladó családi ház
Eladó családi ház

Somogygeszti

10.9 M Ft
2 szoba
115 m2