River Life

Eladó ikerház
Budapest, III. kerület, Attila utca

+ 17 kép 1/20
218 000 000 Ft218 M Ft 1 816 667 Ft/m2
3 + 2 szoba
120 m2
építés éve:2017

Részletes adatok

Állapot: Újszerű
Telekméret: 380 m2
Fűtés: Egyéb
Parkolás: Kocsibeálló
Közmű: Víz, Villany, Csatorna
Energetikai besorolás: Nem adta meg a hirdető

Az OTP Bank lakáshitel ajánlataFizetett hirdetés

+36 70 682
Györe Zsuzsanna
Balla Ingatlan - IV. kerület

Érdekel az OTP Bank kedvezményes lakáshitel ajánlata? *

* A kérdésre „Igen” válasz bejelölése esetén, az „Üzenet küldése” gombra kattintva kijelentem, hogy az OTP Bank Nyrt. Adatkezelési tájékoztatójának tartalmát megismertem és tudomásul vettem.

Eladó ikerház leírása

CSILLAGHEGYEN ÚJSZERŰ IKERHÁZ ELADÓ!

Megvételre kínálok a III. kerület, Csillaghegy egyik legjobb részén, a
Duna felöli oldalon, a Római part szomszédságában, egy 2017-ben épült, modern ikerházat!

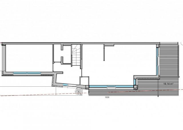
A két szintes, kb. 120 m²-es otthon kiváló elosztású: tágas amerikai konyhás nappali, összesen 3 +2 félszobás, 2 fürdő, gardrób, két terasz, valamint egy kizárólagos használatú, parkosított kert tartozik hozzá. Az ingatlan jogi jellege: társasház!

Földszint
• napfényes, 34 m²-es amerikai konyhás nappali nagy üvegfelületekkel
• fedett, 19 m²-es terasz és közvetlen kertkapcsolat
• két kisebb szoba (egybenyithatók vagy más funkcióra alakíthatók)
• zuhanyzós fürdő + WC
• külön kamra

Emelet
• két világos hálószoba
• nagy fürdő káddal, dupla mosdóval
• külön gardróbhelyiség
• 6,8 m²-es terasz

Műszaki tartalom
• Porotherm falazat + grafitos szigetelés
• 4 rétegű ablakok, riasztó, videó kaputelefon
• H tarifára kötött Toshiba hőszivattyú biztosítja a teljes ház melegvízellátását 300l HMV tartállyal, a fűtését és hűtését pedig padlófűtéssel illetve fali/mennyezeti fűtő/hűtő panelekkel. Minden helyiség hőmérséklete egyedileg, internetről is vezérelhető digitális termosztáttal szabályozható. A rendszert a tetőn 9 kW teljesítményű napelemrendszer támogatja (még 7 évig szaldó elszámolásban), így minimális a rezsiköltség.
• alumínium zsaluzia + redőnyök, szúnyogháló

Telek és környék
A telek 380 nm, a gondozott kertje teljesen szeparált, automata öntözőrendszerrel, elektromos kapuval, tárolóval, kényelmes autóbeállóval.

A környék csendes, zöld, mégis minden a közelben megtalálható: Csillag Center, Lidl, Aldi, HÉV, buszok, óvoda, iskola, Római-part, strandok. Az Árpád híd gyorsan elérhető.

Megtisztelő hívását várom a hét minden napján.

Hirdetés feltöltve: 2025. 12. 05. Utoljára módosítva: 2026. 01. 13.

5 szobás ikerházak ára Budapesten

Ebből az összehasonlításból megtudhatod, hogyan viszonyul a lakás ára a környékbeli ikerházak átlagos árához. Ez nem azt jelenti, hogy ennyivel olcsóbb vagy drágább, mint amennyit a lakás ér, hanem hogy ennyivel tér el a környékbeli átlagtól.

Ennek a m² ára
III. kerület m² ár
Budapest m² ár
1817 e Ft
1543 e Ft -18%
1159 e Ft -57%
Ennek az ára
III. kerület átlagár
Budapest átlagár
218 M Ft m Ft
282.9 m Ft 23%
199.9 m Ft -9%

Az ingatlan elhelyezkedése

Cím: Budapest, III. kerület, Attila utca

Eladó ingatlanok a környékről

Eladó ikerház
Eladó ikerház

III. kerület, Aranyhegy

324.9 M Ft
4 szoba
177 m2
Eladó téglalakás
Eladó téglalakás

XIV. kerület, Kiszugló, Kövér Lajos utca

168 M Ft
3 + 1 szoba
84 m2
Eladó téglalakás
Eladó téglalakás

V. kerület, Belváros, Petőfi Sándor utca

134 M Ft
2 szoba
59 m2
Eladó ikerház
Eladó ikerház

III. kerület

269.9 M Ft
5 szoba
164 m2
Eladó téglalakás
Eladó téglalakás

III. kerület, Óbudaisziget, Folyamőr utca

69.9 M Ft
1 szoba
25 m2
Eladó téglalakás
Eladó téglalakás

IV. kerület, Újpest, Kassai utca

84.9 M Ft
2 + 1 szoba
71 m2
Eladó ikerház
Eladó ikerház

III. kerület, Ürömhegy

295 M Ft
5 + 1 szoba
185 m2
Eladó ikerház
Eladó ikerház

III. kerület

249.99 M Ft
5 szoba
168 m2
Eladó ikerház
Eladó ikerház

III. kerület, Filatorigát, Bécsi út

220 M Ft
4 szoba
150 m2
Eladó ikerház
Eladó ikerház

III. kerület, Ürömhegy

389 M Ft
4 szoba
230 m2
Eladó téglalakás
Eladó téglalakás

VII. kerület, Belső Erzsébetváros, Erzsébet körút

160 M Ft
3 szoba
88 m2
Eladó ikerház
Eladó ikerház

III. kerület, Ürömhegy, Kőpor utca

265 M Ft
5 szoba
193 m2
Eladó téglalakás
Eladó téglalakás

III. kerület

175.6 M Ft
5 szoba
166 m2
Eladó ikerház
Eladó ikerház

III. kerület

365 M Ft
4 + 1 szoba
181 m2
Eladó ikerház
Eladó ikerház

III. kerület, ARANYHEGY

265 M Ft
5 szoba
210 m2
Eladó téglalakás
Eladó téglalakás

XIII. kerület

139 M Ft
4 szoba
93 m2
Eladó ikerház
Eladó ikerház

III. kerület

249.9 M Ft
5 szoba
164 m2
Eladó téglalakás
Eladó téglalakás

XI. kerület, Lágymányos, Móricz Zsigmond körtér

89.5 M Ft
2 szoba
52 m2
Eladó panellakás
Eladó panellakás

XIII. kerület

81 M Ft
2 szoba
54 m2
Eladó téglalakás
Eladó téglalakás

I. kerület, Krisztinaváros, Feszty Árpád utca

78.99 M Ft
1 szoba
28 m2
Eladó ipari ingatlan
Eladó ipari ingatlan

II. kerület

84.475 M Ft
109 m2
Eladó ikerház
Eladó ikerház

III. kerület

345 M Ft
5 + 2 szoba
189 m2
Eladó ikerház
Eladó ikerház

III. kerület, Rómaifürdő

312 M Ft
8 + 2 szoba
390 m2
Eladó téglalakás
Eladó téglalakás

VIII. kerület, Palotanegyed, Rákóczi út

185 M Ft
5 szoba
121 m2

Falusi CSOK ingatlanok

Eladó családi ház
Eladó családi ház

Bátmonostor

22.9 M Ft
3 szoba
82 m2
Eladó családi ház
Eladó családi ház

Somogygeszti

38.6 M Ft
3 + 1 szoba
98 m2
Eladó családi ház
Eladó családi ház

Szentbékkálla, Szentbékkálla

63.9 M Ft
2 szoba
143 m2
Eladó családi ház
Eladó családi ház

Röszke

99.99 M Ft
4 szoba
122 m2
Eladó családi ház
Eladó családi ház

Vilonya

27 M Ft
2 szoba
70 m2
Eladó családi ház
Eladó családi ház

Máriahalom

29.9 M Ft
3 szoba
83 m2
Eladó családi ház
Eladó családi ház

Mencshely

99 M Ft
3 szoba
126 m2
Eladó családi ház
Eladó családi ház

Nagypall, Szabadság utca

35.9 M Ft
3 szoba
125 m2