Kedves Felhasználónk! Rendszerfrissítés miatt az oldalunk 2026. február 9-én 12 órától várhatóan 20 óráig nem lesz elérhető. Köszönjük megértésed!
NapForrás 20 - Buda

Eladó ikerház
Albertirsa

+ 17 kép 1/20
118 000 000 Ft118 M Ft 929 134 Ft/m2
5 szoba
127 m2
építés éve:2025

Részletes adatok

Telekméret: 600 m2
Fűtés: Egyéb
Parkolás: Garázs
Energetikai besorolás: Nem adta meg a hirdető

Az OTP Bank lakáshitel ajánlataFizetett hirdetés

+36 20 326
Szuhai Andrea
referens

Érdekel az OTP Bank kedvezményes lakáshitel ajánlata? *

* A kérdésre „Igen” válasz bejelölése esetén, az „Üzenet küldése” gombra kattintva kijelentem, hogy az OTP Bank Nyrt. Adatkezelési tájékoztatójának tartalmát megismertem és tudomásul vettem.

Eladó ikerház leírása

ELADÓ ALBERTIRSÁN, egy KÖZPONTI, ÖSSZKÖZMŰVES, ASZFALTOZOTT UTCÁBAN ÚJ ÉPÍTÉSŰ, FÖLDSZINTES, AKADÁLYMENTES, AZONNAL BEKÖLTÖZHETŐ családi ház (kétlakásos társasház) SAJÁT KERTTEL, KÜLÖN BEJÁRATTAL. KÉT GENERÁCIÓNAK IS ALKALMAS, KIEMELKEDŐ MŰSZAKI TARTALOMMAL + H tarifával.

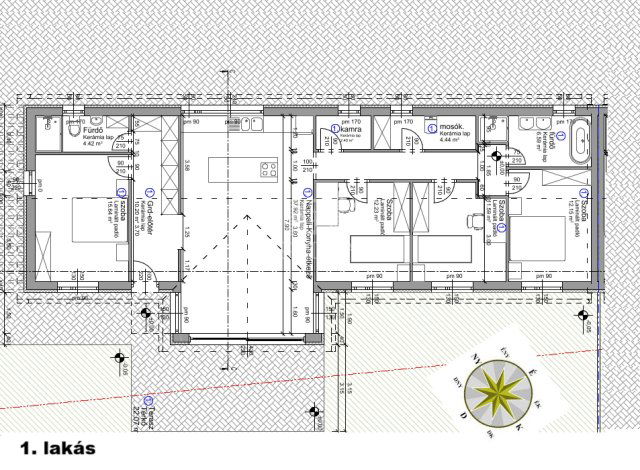
1. lakás GARÁZS épülettel
- Elrendezés: 4 hálószoba + nappali + 2 fürdő + kamra + háztartási helyiség
- Lakótér: 127 m2
- Terasz: 22 m2, 600m2-es SAJÁT KERT
- Külön épület: 37 m2, KÉTÁLLÁSOS GARÁZS
- Teljes hasznos nettó terület: 175 m2 (127 + 37 + 11)
- Ár: 118 M Ft

2. lakás
- Elrendezés: 4 hálószoba + nappali + 2 fürdő + kamra + háztartási helyiség
- Lakótér: 124 m2
- Terasz: 26 m2, 730m2-es SAJÁT KERT
- Teljes hasznos nettó terület: 137 m2 (124 + 13)
- Ár: 102 M Ft

Szerkezet és hőszigetelés:

- Főfal: Leier 30 NF tégla
- Válaszfalak: Leier 20 S és 10 tégla
- Padló alatti szigetelés: EPS 100 (10 cm)
- Külső nyílászárók: fehér műanyag, 3 rétegű üvegezéssel
- Födémszigetelés: 30 cm ásványgyapot
- Fa tetőszerkezet, tetőhéjazat: Bramac betoncserép
- Homlokzati szigetelés: 10 cm EPS
- Lábazati szigetelés: 5 cm + barna szemcsés díszvakolat

Gépészet és komfort:

VILLANYSZERELÉS: 3x16 A +1x25A H tarifás kiépítéssel.

- Hőszivattyú: japán Fujitsu High Power fűtésre és melegvíz-ellátásra
- Hidegburkolatos helyiségekben PADLÓFŰTÉS
- Szobákban és nappaliban digitális vezérlésű, HŰTŐ-FŰTŐ Galletti Flat FANCOILOK
- Fürdőszobánként 1 db törölközőszárító fali radiátor

Vízszerelés:
- 2 db fürdőszoba: fürdőnként törölközőszárítós RADIÁTOR; RAVAK ROSA II akril SAROKKÁD + zuhanyzó; GEBERIT WC falsík mögötti tartály nyomólappal.
A másik fürdőben zuhanyzó, + GEBERIT WC.

Elhelyezkedés és megközelítés
- ÖNÁLLÓ MEGKÖZELÍTHETŐSÉG, SAJÁT MÉRŐÓRÁK
- Vasútállomás: 15 perc séta / 2 perc autó
- Óvoda: ~900 m, bevásárlás: ~1 km
- Budapest: ~35 km

Praktikus, MINDENKI számára jól használható terek, korszerű gépészet és igényes szerkezet – MEGBÍZHATÓ, ÉRTÉKÁLLÓ választás.

Amennyiben felkeltette a meghirdetett ingatlan az érdeklődését, keressen bizalommal.

Kihagyhatatlan ajánlatok: CSOK+, kedvezményes kamatozású lakáshitelek.
Az ország szinte összes bankjának a hiteleit is kínáljuk, egyedi, általunk igénybe vehető kedvezményekkel, díjmentes ügyintézéssel. ...TOVÁBBI, TÖBBEZRES INGATLAN KÍNÁLAT: www.gdn-ingatlan.hu - GDN azonosító: 388700

Hirdetés feltöltve: 2025. 10. 21. Utoljára módosítva: 2026. 01. 13.

5 szobás ikerházak ára Albertirsán

Ebből az összehasonlításból megtudhatod, hogyan viszonyul a lakás ára a környékbeli ikerházak átlagos árához. Ez nem azt jelenti, hogy ennyivel olcsóbb vagy drágább, mint amennyit a lakás ér, hanem hogy ennyivel tér el a környékbeli átlagtól.

Ennek a m² ára
Albertirsa m² ár
929 e Ft
395 e Ft -135%
Ennek az ára
Albertirsa átlagár
118 M Ft m Ft
39.5 m Ft -199%

Az ingatlan elhelyezkedése

Cím: Albertirsa

Eladó ikerházak a környékről

Eladó ikerház
Eladó ikerház

Albertirsa

59.9 M Ft
3 szoba
144 m2
Eladó ikerház
Eladó ikerház

Pilisjászfalu

82.279 M Ft
4 szoba
73 m2
Eladó ikerház
Eladó ikerház

Albertirsa

59.9 M Ft
3 szoba
92 m2
Eladó ikerház
Eladó ikerház

Albertirsa

69 M Ft
3 szoba
65 m2
Eladó ikerház
Eladó ikerház

Albertirsa

69 M Ft
3 szoba
65 m2
Eladó ikerház
Eladó ikerház

Vácrátót

94.9 M Ft
2 + 3 szoba
108 m2
Eladó ikerház
Eladó ikerház

Érd

177.7 M Ft
7 szoba
181 m2
Eladó ikerház
Eladó ikerház

Szentendre

718 M Ft
10 + 2 szoba
578 m2
Eladó ikerház
Eladó ikerház

Albertirsa

65.427 M Ft
3 szoba
102 m2
Eladó ikerház
Eladó ikerház

Vác

96.7 M Ft
4 + 1 szoba
126 m2
Eladó ikerház
Eladó ikerház

Albertirsa

124 M Ft
4 + 1 szoba
127 m2
Eladó ikerház
Eladó ikerház

Albertirsa

69 M Ft
3 szoba
65 m2
Eladó ikerház
Eladó ikerház

Vác

89.9 M Ft
4 szoba
91 m2
Eladó ikerház
Eladó ikerház

Albertirsa

65.427 M Ft
3 szoba
102 m2
Eladó ikerház
Eladó ikerház

Mogyoród

135 M Ft
5 szoba
137 m2
Eladó ikerház
Eladó ikerház

Pomáz

129.5 M Ft
4 szoba
100 m2
Eladó ikerház
Eladó ikerház

Szentendre

179 M Ft
5 + 1 szoba
147 m2
Eladó ikerház
Eladó ikerház

Albertirsa

98 M Ft
5 szoba
127 m2
Eladó ikerház
Eladó ikerház

Albertirsa

65.427 M Ft
3 szoba
102 m2
Eladó ikerház
Eladó ikerház

Veresegyház

145 M Ft
4 szoba
120 m2
Eladó ikerház
Eladó ikerház

Kiskunlacháza

41 M Ft
2 szoba
39 m2
Eladó ikerház
Eladó ikerház

Albertirsa

98 M Ft
5 szoba
124 m2
Eladó ikerház
Eladó ikerház

Albertirsa

59.5 M Ft
3 szoba
73 m2
Eladó ikerház
Eladó ikerház

Albertirsa

64 M Ft
4 szoba
102 m2

Falusi CSOK ingatlanok

Eladó családi ház
Eladó családi ház

Recsk

28 M Ft
3 szoba
91 m2
Eladó családi ház
Eladó családi ház

Szederkény

107.9 M Ft
6 szoba
224 m2
Eladó családi ház
Eladó családi ház

Pécsvárad

140 M Ft
2 szoba
79 m2
Eladó családi ház
Eladó családi ház

Szarvaskend

26.9 M Ft
2 szoba
83 m2
Eladó családi ház
Eladó családi ház

Magyarszék

48.5 M Ft
3 + 1 szoba
86 m2
Eladó sorház
Eladó sorház

Szob

16 M Ft
2 szoba
45 m2
Eladó téglalakás
Eladó téglalakás

Seregélyes

69 M Ft
2 szoba
51 m2
Eladó családi ház
Eladó családi ház

Kisfalud

91.5 M Ft
2 szoba
70 m2