Kedves Felhasználónk! Rendszerfrissítés miatt az oldalunk 2026. február 9-én 12 órától várhatóan 20 óráig nem lesz elérhető. Köszönjük megértésed!
Seven Pearl

Eladó hotel
Csongrád

+ 17 kép 1/20
165 000 000 Ft165 M Ft 825 000 Ft/m2
200 m2
építés éve:1940

Részletes adatok

Állapot: Felújított
Fűtés: Gázkazán
Energetikai besorolás: Nem adta meg a hirdető

Az OTP Bank lakáshitel ajánlataFizetett hirdetés

+36 20 985
Petkov Gyöngyi Katalin
Csongrád OTP Ingatlanpont Iroda

Érdekel az OTP Bank kedvezményes lakáshitel ajánlata? *

* A kérdésre „Igen” válasz bejelölése esetén, az „Üzenet küldése” gombra kattintva kijelentem, hogy az OTP Bank Nyrt. Adatkezelési tájékoztatójának tartalmát megismertem és tudomásul vettem.

Eladó hotel leírása

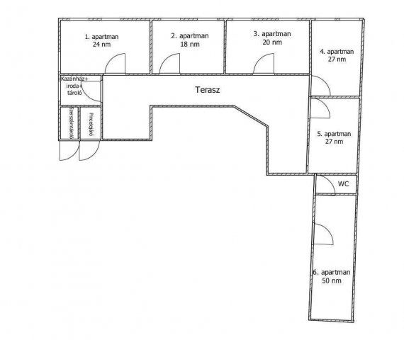
***VENDÉGHÁZ ELADÓ*** Az OTP INGATLANPONT KÍNÁLATÁBAN ***Csongrád-Csanád vármegyében, Csongrádon. A 6 apartmanból álló, jelenleg is jól működő 3 csillagos vendégház a városközpontban helyezkedik el. Az épület 2022-ben teljes felújításon esett át. Új a tető, új a teljes vízvezeték, a csatornahálózat, a fűtés, a gázrendszer, a villanyhálózat és ipari áram is van. Új műanyag nyílászárók vannak beépítve, minden ablakon van szúnyogháló és redőny. A fűtést és a meleg vizet kombi gázkazánok biztosítják. Mindenhol van füstérzékelő. Az utcán és az udvaron biztonsági kamerákat helyeztek el. A 2 helyiségből álló, összesen 56 nm-es száraz, fűthető pince remek hely kisebb rendezvények megtartásához. Az udvarban 10, az utcán további 3 autó parkolására van lehetőség. A sok visszatérő és a számos új vendégnek köszönhetően egy igazán előnyös üzleti lehetőséget jelenthet befektetők számára, vagy megélhetést biztosíthat családi vállalkozóknak.
Amennyiben az OTP Ingatlanpont kínálatából választ, számíthat szakmai támogatásunkra a teljes vételi folyamat során az adásvételi szerződés megkötésétől a hitelügyintézésen át az ingatlan átadásáig. Kedvező hitelajánlatokkal várjuk jelentkezését, számos konstrukció közül választhat. Irodáink Szentes, Petőfi u. 12. a buszmegálló felől és Csongrád, Fő u. 54. szám alatt várja a személyes érdeklődőket. *** VÁLASSZUK KI EGYÜTT AZ ÖNNEK LEGMEGFELELŐBB AJÁNLATOT! BANKI SORBAN ÁLLÁS NÉLKÜL!***

Referencia szám: M308187-ZE

Hirdetés feltöltve: 2026. 02. 07. Utoljára módosítva: 2026. 02. 07.

Az ingatlan elhelyezkedése

Cím: Csongrád

Eladó ingatlanok a környékről

Eladó családi ház
Eladó családi ház

Csongrád

75 M Ft
6 szoba
238 m2
Eladó családi ház
Eladó családi ház

Szentes

22 M Ft
3 szoba
96 m2
Eladó hotel
Eladó hotel

Csongrád

165 M Ft
887 m²
200 m2
Eladó panellakás
Eladó panellakás

Szeged

61.99 M Ft
3 szoba
70 m2
Eladó panellakás
Eladó panellakás

Szeged

61.7 M Ft
3 szoba
69 m2
Eladó családi ház
Eladó családi ház

Szentes

60 M Ft
2 + 2 szoba
85 m2
Eladó téglalakás
Eladó téglalakás

Hódmezővásárhely

34.5 M Ft
2 szoba
56 m2
Eladó telek
Eladó telek

Csongrád

15.9 M Ft
888 m²
Eladó családi ház
Eladó családi ház

Csongrád

33 M Ft
3 + 2 szoba
98 m2
Eladó téglalakás
Eladó téglalakás

Szeged, Újszeged, Béke utca

77.4 M Ft
2 szoba
61 m2
Eladó családi ház
Eladó családi ház

Csongrád

10.9 M Ft
3 szoba
86 m2
Eladó téglalakás
Eladó téglalakás

Szeged

89.6 M Ft
3 szoba
64 m2
Eladó családi ház
Eladó családi ház

Szentes

42.99 M Ft
3 szoba
130 m2
Eladó családi ház
Eladó családi ház

Apátfalva, Széchenyi utca 50

45 M Ft
3 szoba
160 m2
Eladó telek
Eladó telek

Csongrád

6 M Ft
786 m²
Eladó hotel
Eladó hotel

Szatymaz

232 M Ft
9 szoba
384 m2
Eladó családi ház
Eladó családi ház

Csongrád

9 M Ft
2 szoba
30 m2
Eladó hotel
Eladó hotel

Szeged

190 M Ft
5 szoba
268 m2
Eladó hotel
Eladó hotel

Szeged

795 M Ft
692 m²
585 m2
Eladó hotel
Eladó hotel

Szeged

429.9 M Ft
11 szoba
396 m2
Eladó panellakás
Eladó panellakás

Szeged

59.9 M Ft
4 szoba
72 m2
Eladó mezogazdasagi ingatlan
Eladó mezogazdasagi ingatlan

Szatymaz

24.9 M Ft
46543 m²
80 m2
Eladó nyaraló
Eladó nyaraló

Csongrád

29 M Ft
1 + 2 szoba
49 m2
Eladó téglalakás
Eladó téglalakás

Szeged

68.9 M Ft
3 szoba
76 m2

Falusi CSOK ingatlanok

Eladó családi ház
Eladó családi ház

Parád

25 M Ft
2 szoba
80 m2
Eladó családi ház
Eladó családi ház

Szarvaskend

26.9 M Ft
2 szoba
83 m2
Eladó családi ház
Eladó családi ház

Bábolna

69.9 M Ft
5 szoba
172 m2
Eladó családi ház
Eladó családi ház

Nyírtura

69.9 M Ft
4 szoba
120 m2
Eladó téglalakás
Eladó téglalakás

Felsőszentiván, Jókai Mór u 9 fszt 2

17.56 M Ft
1 + 1 szoba
90 m2
Eladó családi ház
Eladó családi ház

Galambok

118 M Ft
7 szoba
249 m2
Eladó családi ház
Eladó családi ház

Darnózseli

79.9 M Ft
4 szoba
104 m2
Eladó téglalakás
Eladó téglalakás

Kőröshegy

68 M Ft
2 szoba
65 m2