City Pearl

Eladó családi ház
Zalaegerszeg

+ 2 kép 1/5
104 900 000 Ft104.9 M Ft 806 923 Ft/m2
4 szoba
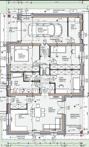
130 m²
építés éve:2026

Részletes adatok

Telekméret: 700 m2
Fűtés: Egyéb
Energetikai besorolás: Nem adta meg a hirdető

Az OTP Bank lakáshitel ajánlataFizetett hirdetés

+36 70 465
Kovács Rita
Otthon Centrum - Zalaegerszeg - Eötvös utca

Érdekel az OTP Bank kedvezményes lakáshitel ajánlata? *

* A kérdésre „Igen” válasz bejelölése esetén, az „Üzenet küldése” gombra kattintva kijelentem, hogy az OTP Bank Nyrt. Adatkezelési tájékoztatójának tartalmát megismertem és tudomásul vettem.

Eladó családi ház leírása

Van egy pont, amikor már nem kompromisszumot keresi, hanem végre azt, ami igazán Önhöz illik. Ez a 130 nm-es, egyszintes családi ház pontosan erről szól.

Tágas nappali + 3 külön nyíló szoba – ahol mindenki megtalálja a saját terét. Letisztult formák, modern megoldások és egy otthon, ami már az első pillanatban megérinti.

Amitől igazán különleges:

- 700 nm-es telek
- Nappali +3 szoba
- Garázs
– Masszív Porotherm 30 N+F neo Rapid Dryfix falazat + 20 cm hőszigetelés → nyugalom és energiatakarékosság
– 3 rétegű, barna fóliás nyílászárók → elegancia kívül-belül
– Rejtett redőnyrendszer szúnyoghálóval → praktikum kompromisszumok nélkül
– Bramac Tectura Novo antracit tető → karakteres megjelenés
– BOSCH hőszivattyús rendszer padlófűtéssel → jövőálló technológia, alacsony rezsi
– Prémium Ravak és Grohe fürdőszobai szaniterek → válassza ki, ami igazán Ön
– Szabadon választható burkolatok → formálja a saját stílusára

A kulcsrakész állapot nem csak ígéret:

– térkövezett kocsibeálló
– járda
– minden készen áll, hogy beköltözzön

Ez nem egy sablonház. Ez egy lehetőség arra, hogy végre olyan otthona legyen, ami Önről szól.

Nekeresdi városrész – nyugodt környezet, mégis közel mindenhez.

Amennyiben a képek és a leírás alapján az ingatlan felkeltette az érdeklődését, keressen bizalommal a megadott elérhetőségeken, keresse az ingatlant a honlapunkon, több kép is segíti Önt a választásban!
Irodánk teljes körű, díjmentes szolgáltatást nyújt kereső ügyfeleinknek, amennyiben Önnek hitelre van szüksége, segítünk! Szakszerű tanácsadással, hitel ügyintézéssel, energetikai tanúsítvány elkészítésével és kedvező díjszabású ügyvéddel nyújtunk segítséget!

Az energetikai tanúsítvány készítése folyamatban van, amint rendelkezésre áll, úgy azzal a hirdetés frissítésre kerül.

Hirdetés feltöltve: 2026. 04. 01. Utoljára módosítva: 2026. 05. 12.

4 szobás családi házak ára Zalaegerszegen

Ebből az összehasonlításból megtudhatod, hogyan viszonyul a lakás ára a környékbeli családi házak átlagos árához. Ez nem azt jelenti, hogy ennyivel olcsóbb vagy drágább, mint amennyit a lakás ér, hanem hogy ennyivel tér el a környékbeli átlagtól.

Ennek a m² ára
Zalaegerszeg m² ár
807 e Ft
741 e Ft -9%
Ennek az ára
Zalaegerszeg átlagár
104.9 M Ft m Ft
100.4 m Ft -4%

Az ingatlan elhelyezkedése

Cím: Zalaegerszeg

Eladó családi házak a környékről

Hévíz, Park
Eladó családi ház

Hévíz

169 M Ft
5 szoba
220 m²
Zalaegerszeg
Eladó családi ház

Zalaegerszeg

49.9 M Ft
3 szoba
65 m²
Hévíz
Eladó családi ház

Hévíz

80 M Ft
5 + 3 szoba
275 m²
Zalaegerszeg
Eladó családi ház

Zalaegerszeg

59 M Ft
2 szoba
78 m²
Zalaegerszeg
Eladó családi ház

Zalaegerszeg

200 M Ft
7 szoba
355 m²
Balatongyörök
Eladó családi ház

Balatongyörök

89.8 M Ft
5 szoba
140 m²
Zalaegerszeg
Eladó családi ház

Zalaegerszeg

55 M Ft
5 szoba
126 m²
Zalaegerszeg
Eladó családi ház

Zalaegerszeg

200 M Ft
7 szoba
355 m²
Vindornyafok
Eladó családi ház

Vindornyafok

38.9 M Ft
3 szoba
120 m²
Zalaegerszeg
Eladó családi ház

Zalaegerszeg

114 M Ft
4 szoba
163 m²
Zalaegerszeg
Eladó családi ház

Zalaegerszeg

59 M Ft
2 szoba
78 m²
Zalaegerszeg
Eladó családi ház

Zalaegerszeg

12 M Ft
2 szoba
18 m²
Zalacsány
Eladó családi ház

Zalacsány

120 M Ft
5 + 1 szoba
220 m²
Zalaegerszeg
Eladó családi ház

Zalaegerszeg

38.9 M Ft
4 szoba
95 m²
Zalaegerszeg
Eladó családi ház

Zalaegerszeg

200 M Ft
7 szoba
355 m²
Kehidakustány
Eladó családi ház

Kehidakustány

124.443 M Ft
5 + 2 szoba
192 m²
Zalaegerszeg, Patkó utca
Eladó családi ház

Zalaegerszeg

135 M Ft
5 szoba
310 m²
Cserszegtomaj
Eladó családi ház

Cserszegtomaj

420 M Ft
4 + 1 szoba
338 m²
Nagykanizsa
Eladó családi ház

Nagykanizsa

299 M Ft
7 szoba
1800 m²
Zalaszentgrót
Eladó családi ház

Zalaszentgrót

12.9 M Ft
2 szoba
80 m²
Hévíz
Eladó családi ház

Hévíz

169 M Ft
5 + 1 szoba
240 m²
Zalaegerszeg
Eladó családi ház

Zalaegerszeg

295 M Ft
7 szoba
788 m²
Zalaszántó
Eladó családi ház

Zalaszántó

14.9 M Ft
2 szoba
66 m²
Hévíz
Eladó családi ház

Hévíz

120 M Ft
7 + 1 szoba
280 m²

Falusi CSOK ingatlanok

Kétegyháza
Eladó családi ház

Kétegyháza

21 M Ft
3 szoba
105 m²
Tápiószőlős
Eladó családi ház

Tápiószőlős

9.9 M Ft
3 szoba
0 m²
Gyékényes
Eladó családi ház

Gyékényes

16.9 M Ft
3 szoba
83 m²
Győrság
Eladó családi ház

Győrság

79.9 M Ft
4 szoba
92 m²
Igal
Eladó családi ház

Igal

45.9 M Ft
5 szoba
280 m²
Szigetújfalu
Eladó családi ház

Szigetújfalu

66 M Ft
3 szoba
118 m²
Bag
Eladó családi ház

Bag

16.9 M Ft
6 szoba
160 m²
Ibafa
Eladó családi ház

Ibafa

285 M Ft
4 szoba
141 m²