Aerogate Homes

Eladó családi ház
Vizsoly

Figyelem!

Ez az ingatlan a 2019.07.01-től induló falusi CSOK által támogatott településen található

29 500 000 Ft29.5 M Ft 210 714 Ft/m2
4 szoba
140 m²

Részletes adatok

Állapot: Átlagos
Telekméret: 908 m2
Fűtés: Házközponti
Energetikai besorolás: Nem adta meg a hirdető

Az OTP Bank lakáshitel ajánlataFizetett hirdetés

+36 20 447
Takács Alán
referens

Érdekel az OTP Bank kedvezményes lakáshitel ajánlata? *

* A kérdésre „Igen” válasz bejelölése esetén, az „Üzenet küldése” gombra kattintva kijelentem, hogy az OTP Bank Nyrt. Adatkezelési tájékoztatójának tartalmát megismertem és tudomásul vettem.

Eladó családi ház leírása

Vizsoly, csendes mellékutcájában, 90-es években, szilikátból és téglából épült, földszint +emelet kialakítású, 4 szobás, 140 m²-es családi ház, 908 m²-es telekkel eladó!

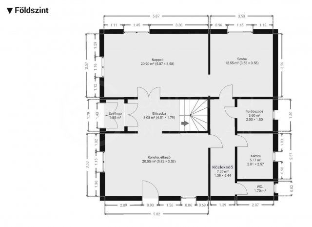
Helyiséglista:
Földszint
- Nappali
- Hálószoba
- Étkezős konyha
- Fürdőszoba
- WC.
- Kamra
- Közlekedő
- Előszoba
- Szélfogó

Emelet
- 2 db szoba
- Fürdőszoba
- Tároló
- Közlekedő
- Loggia

Műszaki leírás:
A felépítmény beton sáv alapra, tégla és szilikát felhasználásával épült a 90-es években. Vízszintes teherhordó előre gyártott vasbeton gerendás. Tető szerkezet fa, síkpala héjalással. A teljes alapterület alatt pince található.
Fűtése vegyes tüzelésű néhány hónapos kazán, emellett gázkazánhoz ki van építve a rendszer, hőleadók radiátorok. Meleg vizet villanybojler állítja elő.
Homlokzat 5 cm-es hőszigeteléssel van ellátva nemes vakolattal.

Környezet:
Csendes, rendezett mellékutca.

Hirdetés feltöltve: 2026. 02. 27. Utoljára módosítva: 2026. 02. 27.

Az ingatlan elhelyezkedése

Cím: Vizsoly

Eladó ingatlanok a környékről

Miskolc
Eladó családi ház

Miskolc

54.99 M Ft
4 szoba
103 m²
Gönc, Kossuth Lajos utca
Eladó családi ház

Gönc

26 M Ft
2 + 1 szoba
130 m²
Szikszó
Eladó családi ház

Szikszó

56.99 M Ft
6 szoba
200 m²
Tiszalúc, Gyöngyvirág utca
Eladó családi ház

Tiszalúc

22.2 M Ft
3 szoba
118 m²
Miskolc
Eladó panellakás

Miskolc

19.5 M Ft
1 + 1 szoba
35 m²
Homrogd
Eladó családi ház

Homrogd

14.9 M Ft
4 szoba
62 m²
Ózd
Eladó családi ház

Ózd

13 M Ft
5 szoba
150 m²
Miskolc, Avas Dél városrész, Ifjúság útja
Eladó panellakás

Miskolc

31.99 M Ft
2 + 1 szoba
61 m²
Miskolc
Eladó téglalakás

Miskolc

19.9 M Ft
1 szoba
35 m²
Edelény
Eladó családi ház

Edelény

31.5 M Ft
2 szoba
75 m²
Vizsoly
Eladó családi ház

Vizsoly

85 M Ft
5 szoba
190 m²
Miskolc, Belváros, Herman Ottó utca
Eladó panellakás

Miskolc

21 M Ft
1 + 1 szoba
35 m²
Komlóska
Eladó családi ház

Komlóska

55.9 M Ft
7 szoba
247 m²
Sajókaza
Eladó családi ház

Sajókaza

13.9 M Ft
3 szoba
77 m²
Miskolc
Eladó családi ház

Miskolc

149 M Ft
4 szoba
463 m²
Sajószentpéter
Eladó üzlethelyiség

Sajószentpéter

26.9 M Ft
4 szoba
104 m²
Tiszalúc
Eladó családi ház

Tiszalúc

19.9 M Ft
4 szoba
180 m²
Miskolc
Eladó panellakás

Miskolc

34.49 M Ft
3 szoba
61 m²
Tiszalúc, Alkotmány utca
Eladó családi ház

Tiszalúc

16.9 M Ft
4 szoba
137 m²
Ózd
Eladó családi ház

Ózd

15 M Ft
7 szoba
225 m²
Miskolc
Eladó téglalakás

Miskolc

23.9 M Ft
1 szoba
35 m²
Szikszó
Eladó családi ház

Szikszó

89.9 M Ft
3 szoba
100 m²
Erdőhorváti
Eladó családi ház

Erdőhorváti

72.9 M Ft
6 szoba
154 m²
Miskolc
Eladó téglalakás

Miskolc

58.9 M Ft
2 szoba
63 m²

Falusi CSOK ingatlanok

Magyarpolány
Eladó családi ház

Magyarpolány

90 M Ft
2 szoba
70 m²
Sződ
Eladó családi ház

Sződ

116.9 M Ft
4 + 1 szoba
102 m²
Mályi
Eladó családi ház

Mályi

42.9 M Ft
3 szoba
128 m²
Nyáregyháza
Eladó családi ház

Nyáregyháza

68.9 M Ft
4 szoba
142 m²
Kemeneshőgyész
Eladó családi ház

Kemeneshőgyész

8 M Ft
2 szoba
60 m²
Magyarszék
Eladó családi ház

Magyarszék

48.5 M Ft
3 + 1 szoba
86 m²
Badacsonytomaj
Eladó családi ház

Badacsonytomaj

124.9 M Ft
4 + 1 szoba
138 m²
Ceglédbercel
Eladó családi ház

Ceglédbercel

67 M Ft
4 szoba
165 m²

Falusi CSOK ingatlanok

Balatonfenyves
Eladó családi ház

Balatonfenyves

430 M Ft
4 szoba
274 m²
Seregélyes
Eladó családi ház

Seregélyes

75 M Ft
6 szoba
160 m²
Balatonkenese
Eladó családi ház

Balatonkenese

189.9 M Ft
5 szoba
205 m²
Ceglédbercel
Eladó családi ház

Ceglédbercel

67 M Ft
4 szoba
165 m²
Ceglédbercel
Eladó családi ház

Ceglédbercel

43 M Ft
3 szoba
67 m²
Balatonszepezd
Eladó családi ház

Balatonszepezd

299 M Ft
5 szoba
220 m²
Kenyeri
Eladó családi ház

Kenyeri

39.9 M Ft
3 szoba
94 m²
Lepsény
Eladó családi ház

Lepsény

18.9 M Ft
4 szoba
80 m²