Aerogate Homes

Eladó családi ház
Veszprém, Dózsaváros

+ 8 kép 1/11
106 000 000 Ft106 M Ft 1 177 778 Ft/m2
4 szoba
90 m²
építés éve:2026

Részletes adatok

Telekméret: 455 m2
Fűtés: Egyéb
Komfort: Összkomfortos
Energetikai besorolás: Nem adta meg a hirdető

Az OTP Bank lakáshitel ajánlataFizetett hirdetés

+36 70 705
Hock Adrienn
referens

Érdekel az OTP Bank kedvezményes lakáshitel ajánlata? *

* A kérdésre „Igen” válasz bejelölése esetén, az „Üzenet küldése” gombra kattintva kijelentem, hogy az OTP Bank Nyrt. Adatkezelési tájékoztatójának tartalmát megismertem és tudomásul vettem.

Eladó családi ház leírása

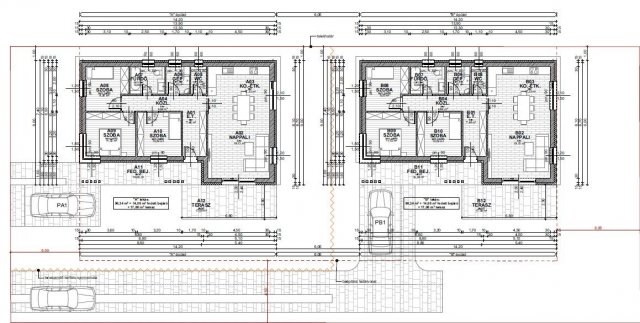
Eladó új építésű családi ház Gyulafirátóton!

A 910 m²-es telken két különálló családi ház kerül kialakításra saját kerttel.

Az épület 90,37 m2-es, 3 szoba + nappali kialakítású, 14,56 m2-es fedett bejáróval és 17 m2-es terasszal.

Elosztása:
- nappali/konyha/étkező: 36,34 m2
- szoba: 11,1 m2
- szoba: 9,9 m2
- szoba: 9,52 m2
- fürdőszoba: 5,2 m2
- gépészeti helység: 3,6 m2
- közlekedő: 4,95 m2
- előtér: 7,56 m2
- WC: 2,2 m2
---------------------------------------------
- fedett bejáró: 14,56 m2
- terasz: 17 m2

A projekt főbb műszaki paraméterei:
- 30-as tégla falazat
- 15 cm hungarocell szigetelés, fehér színű homlokzati vakolattal.
- monoblokkos, hőszivattyús fűtésrendszer, padlófűtéssel (a használati melegvizet is
előállítja)
- Antracit Leier Toscana cserép héjazat
- hő,- és hangszigetelt, 3 rétegű üvegezéssel ellátott műanyag nyílászárók.

A vételár a kulcsrakész állapotra vonatkozik, és magában foglalja a térkövezett gépkocsibeálló és a murvás behajtó kialakítását is.

Tereprendezést tartalmazza az ár, de a füvesítést és a telek körbe kerítését nem!

Az ingatlan konyhabútor nélkül kerül átadásra!

Bővebb műszaki részletekért, kérem keressen bizalommal!

Kivitelezés várható befejezése: 2026. III. negyedév

Amennyiben hirdetésem felkeltette az érdeklődését, kérem keressen elérhetőségeimen!

A hirdetésben szereplő látványtervek és alaprajzok tájékoztató jellegűek, illusztrációként szolgálnak, a tényleges kialakítás és méretek eltérhetnek.

Teljeskörű szolgáltatást vállalok a megbízástól a beköltözésig:
- Ingatlanértékesítés
- Ingatlan értékbecslés
- Energetikai tanúsítvány
- Hitelügyintézés, Biztosítás
- Ügyvéd
- Lakberendezés 3D tervezéssel
- Napelemes rendszerek
- Épülettakarítás
- Kivitelezés, felújítás
- Villamos biztonsági felülvizsgálat

Hock Adrienn
Ingatlanszakértő, Ingatlanvagyon értékelő, Lakberendező

Hirdetés feltöltve: 2026. 04. 10. Utoljára módosítva: 2026. 05. 22.

4 szobás családi házak ára Veszprémben

Ebből az összehasonlításból megtudhatod, hogyan viszonyul a lakás ára a környékbeli családi házak átlagos árához. Ez nem azt jelenti, hogy ennyivel olcsóbb vagy drágább, mint amennyit a lakás ér, hanem hogy ennyivel tér el a környékbeli átlagtól.

Ennek a m² ára
Veszprém m² ár
1178 e Ft
929 e Ft -27%
Ennek az ára
Veszprém átlagár
106 M Ft m Ft
112.8 m Ft 6%

Az ingatlan elhelyezkedése

Cím: Veszprém, Dózsaváros

Eladó családi házak a környékről

Veszprém
Eladó családi ház

Veszprém

149 M Ft
6 + 1 szoba
243 m²
Veszprém
Eladó családi ház

Veszprém

80 M Ft
3 + 3 szoba
112 m²
Veszprém
Eladó családi ház

Veszprém

149 M Ft
4 + 1 szoba
250 m²
Veszprém
Eladó családi ház

Veszprém

80 M Ft
3 + 3 szoba
112 m²
Veszprém
Eladó családi ház

Veszprém

150 M Ft
2 + 2 szoba
100 m²
Pápa
Eladó családi ház

Pápa

29.9 M Ft
4 szoba
100 m²
Veszprém
Eladó családi ház

Veszprém

139.8 M Ft
4 szoba
157 m²
Balatonakarattya
Eladó családi ház

Balatonakarattya

169 M Ft
4 szoba
149 m²
Veszprém, Belváros, Festő utca
Eladó családi ház

Veszprém

149 M Ft
5 + 1 szoba
195 m²
Veszprém, Dózsaváros
Eladó családi ház

Veszprém

99.99 M Ft
4 szoba
110 m²
Veszprém
Eladó családi ház

Veszprém

350 M Ft
4 szoba
550 m²
Dörgicse
Eladó családi ház

Dörgicse

39.9 M Ft
2 + 1 szoba
66 m²
Veszprém
Eladó családi ház

Veszprém

149 M Ft
4 + 1 szoba
250 m²
Veszprém
Eladó családi ház

Veszprém

150 M Ft
2 + 2 szoba
100 m²
Veszprém, Dózsaváros
Eladó családi ház

Veszprém

350 M Ft
10 szoba
310 m²
Csabrendek
Eladó családi ház

Csabrendek

98 M Ft
9 szoba
600 m²
Veszprém
Eladó családi ház

Veszprém

189.99 M Ft
7 szoba
180 m²
Várpalota
Eladó családi ház

Várpalota

156.7 M Ft
4 szoba
130 m²
Pápa
Eladó családi ház

Pápa

39.9 M Ft
4 + 1 szoba
148 m²
Veszprém
Eladó családi ház

Veszprém

96.9 M Ft
5 szoba
100 m²
Várpalota
Eladó családi ház

Várpalota

156.7 M Ft
4 szoba
130 m²
Monoszló
Eladó családi ház

Monoszló

1759.884 M Ft
9 szoba
2250 m²
Ábrahámhegy
Eladó családi ház

Ábrahámhegy

190 M Ft
5 szoba
112 m²
Monoszló
Eladó családi ház

Monoszló

1759.884 M Ft
9 szoba
2250 m²

Falusi CSOK ingatlanok

Kaposgyarmat
Eladó családi ház

Kaposgyarmat

695 M Ft
6 szoba
610 m²
Balatonszemes
Eladó téglalakás

Balatonszemes

244.5 M Ft
3 szoba
0 m²
Tass
Eladó családi ház

Tass

37 M Ft
2 szoba
75 m²
Újlengyel
Eladó családi ház

Újlengyel

75.9 M Ft
4 szoba
0 m²
Tápiógyörgye
Eladó családi ház

Tápiógyörgye

29.49 M Ft
2 szoba
60 m²
Nagykarácsony
Eladó családi ház

Nagykarácsony

34.9 M Ft
3 szoba
112 m²
Hévízgyörk
Eladó családi ház

Hévízgyörk

94.8 M Ft
8 szoba
254 m²
Fonyód
Eladó téglalakás

Fonyód

175 M Ft
3 szoba
79 m²