Pesti Házak

Eladó családi ház
Versend

Figyelem!

Ez az ingatlan a 2019.07.01-től induló falusi CSOK által támogatott településen található

+ 16 kép 1/19
16 900 000 Ft16.9 M Ft 135 200 Ft/m2
4 szoba
125 m2
építés éve:1974

Részletes adatok

Állapot: Átlagos
Telekméret: 1685 m2
Fűtés: Gázkonvektor
Energetikai besorolás: Nem adta meg a hirdető

Az OTP Bank lakáshitel ajánlataFizetett hirdetés

+36 20 509
Szabó Ágnes
OTPIP - Pécs, Rákóczi út 19.

Érdekel az OTP Bank kedvezményes lakáshitel ajánlata? *

* A kérdésre „Igen” válasz bejelölése esetén, az „Üzenet küldése” gombra kattintva kijelentem, hogy az OTP Bank Nyrt. Adatkezelési tájékoztatójának tartalmát megismertem és tudomásul vettem.

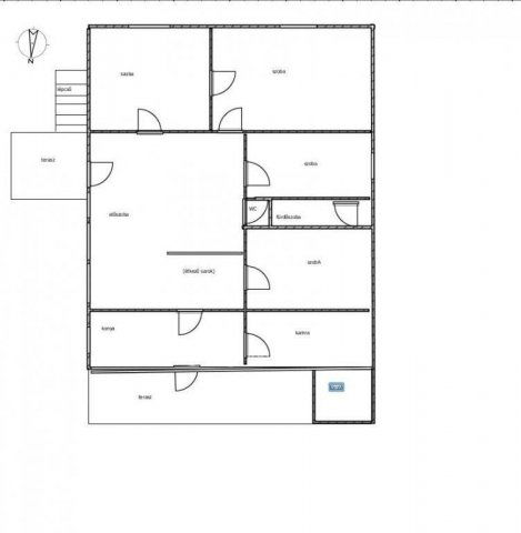
Eladó családi ház leírása

Bóly vonzáskörzetében eladó egy tágas, világos családi ház csendes, intim telken! Versend településén eladásra kínálok egy 125 nm-es, 4 szobás családi házat, ami 1 685nm-es telken helyezkedik el. Az ingatlan1974-ben épült, tégla falazatú, szerkezetileg stabil, belső terei átlagosak, de ízlés szerint korszerűsíthető. Fűtése gázkonvektorral és villanyradiátorral megoldott. A telek intim, az utcáról nem látható, ami maximális magánszférát biztosít. Az udvaron található ólak és melléképületek további lehetőségeket rejtenek magukban, ami érték növelést eredményezhet. Ideális kert kialakításhoz, hobbihoz, tárolásra, vagy akár háziállattartásra. Elhelyezkedése Versendnek, Baranya vármegye délkeleti részén fekszik, mindössze 6 km Bólytól, 15km-re Mohácstól és 25 km Pécstől. A település közvetlenül a 57-es főút mellett fekszik, így a közlekedés egyszerű, miközben a falusi nyugalom megmarad. M6-os autópálya elérhető közelségben van. Az ingatlan azonnal költözhető, így akár rögtön birtokba vehető. A vásárlás, Támogatott Otthon Start Programon keresztül is lehetséges. Amennyiben felkeltette érdeklődését az ingatlan, hívjon, és tekintse meg személyesen!

Referencia szám: M317647

Hirdetés feltöltve: 2025. 11. 19. Utoljára módosítva: 2025. 12. 12.

Az ingatlan elhelyezkedése

Cím: Versend

Eladó ingatlanok a környékről

Eladó családi ház
Eladó családi ház

Versend

21.5 M Ft
4 szoba
128 m2
Eladó családi ház
Eladó családi ház

Pécs

299 M Ft
5 szoba
350 m2
Eladó családi ház
Eladó családi ház

Versend

75 M Ft
3 szoba
123 m2
Eladó családi ház
Eladó családi ház

Somogyviszló

5.5 M Ft
1 szoba
45 m2
Eladó panellakás
Eladó panellakás

Pécs

52.9 M Ft
3 szoba
70 m2
Eladó családi ház
Eladó családi ház

Magyarbóly

15.99 M Ft
4 szoba
110 m2
Eladó családi ház
Eladó családi ház

Varga

4.9 M Ft
2 szoba
40 m2
Eladó családi ház
Eladó családi ház

Versend

16.9 M Ft
4 szoba
125 m2
Eladó családi ház
Eladó családi ház

Versend

21.5 M Ft
4 szoba
128 m2
Eladó panellakás
Eladó panellakás

Pécs

55.9 M Ft
2 szoba
54 m2
Eladó téglalakás
Eladó téglalakás

Pécs

64.9 M Ft
3 szoba
56 m2
Eladó családi ház
Eladó családi ház

Mohács

25 M Ft
2 szoba
72 m2
Eladó családi ház
Eladó családi ház

Görcsöny

49.9 M Ft
5 szoba
120 m2
Eladó téglalakás
Eladó téglalakás

Pécs, Uránváros, Esztergár L. u. 1

55.9 M Ft
2 szoba
48 m2
Eladó téglalakás
Eladó téglalakás

Pécs, Kertváros, Bálicsi út

84.9 M Ft
3 szoba
76 m2
Eladó családi ház
Eladó családi ház

Versend

15.5 M Ft
5 szoba
140 m2
Eladó téglalakás
Eladó téglalakás

Pécs, Kertváros, Bálicsi út

69.9 M Ft
2 szoba
65 m2
Eladó családi ház
Eladó családi ház

Versend, Jókai Mór utca 2

6.66 M Ft
1 + 1 szoba
109 m2
Eladó családi ház
Eladó családi ház

Homorúd

91.44 M Ft
5 szoba
145 m2
Eladó családi ház
Eladó családi ház

Lippó, Kossuth

95.97 M Ft
2 szoba
160 m2
Eladó téglalakás
Eladó téglalakás

Pécs, Uránváros, Esztergár Lajos utca

53.9 M Ft
2 + 1 szoba
58 m2
Eladó téglalakás
Eladó téglalakás

Pécs, Uránváros, Esztergár Lajos utca

53.9 M Ft
2 szoba
58 m2
Eladó családi ház
Eladó családi ház

Versend

75 M Ft
3 szoba
123 m2
Eladó családi ház
Eladó családi ház

Baksa

38.9 M Ft
3 szoba
81 m2

Falusi CSOK ingatlanok

Eladó családi ház
Eladó családi ház

Rédics

49.9 M Ft
3 szoba
107 m2
Eladó családi ház
Eladó családi ház

Balatonfenyves

430 M Ft
4 szoba
274 m2
Eladó családi ház
Eladó családi ház

Somlóvásárhely

39.8 M Ft
1 szoba
78 m2
Eladó családi ház
Eladó családi ház

Vásárosdombó

14.99 M Ft
2 szoba
69 m2
Eladó családi ház
Eladó családi ház

Kondorfa

71 M Ft
2 szoba
82 m2
Eladó családi ház
Eladó családi ház

Dunaszentbenedek

24.9 M Ft
2 szoba
85 m2
Eladó téglalakás
Eladó téglalakás

Nagyharsány

22.5 M Ft
3 szoba
71 m2
Eladó családi ház
Eladó családi ház

Gógánfa

22.99 M Ft
3 szoba
93 m2

Falusi CSOK ingatlanok

Eladó családi ház
Eladó családi ház

Csurgó

10 M Ft
2 szoba
80 m2
Eladó családi ház
Eladó családi ház

Bakonycsernye

39 M Ft
3 szoba
350 m2
Eladó családi ház
Eladó családi ház

Alattyán

8.5 M Ft
1 + 1 szoba
70 m2
Eladó családi ház
Eladó családi ház

Gáborján

5.5 M Ft
2 szoba
68 m2
Eladó családi ház
Eladó családi ház

Törtel

13.5 M Ft
5 szoba
74 m2
Eladó téglalakás
Eladó téglalakás

Balatonszemes

125.2 M Ft
2 szoba
50 m2
Eladó családi ház
Eladó családi ház

Vasvár

64.9 M Ft
3 szoba
91 m2
Eladó családi ház
Eladó családi ház

Ipolyvece

18.9 M Ft
3 + 1 szoba
91 m2