Kedves Felhasználónk! Rendszerfrissítés miatt az oldalunk 2026. február 9-én 12 órától várhatóan 20 óráig nem lesz elérhető. Köszönjük megértésed!
BAM Living

Eladó családi ház
Veresegyház

+ 7 kép 1/10
129 900 000 Ft129.9 M Ft 877 703 Ft/m2
5 szoba
148 m2
építés éve:2026

Részletes adatok

Telekméret: 816 m2
Fűtés: Geotermikus
Energetikai besorolás: Nem adta meg a hirdető

Az OTP Bank lakáshitel ajánlataFizetett hirdetés

+36 30 989
Keszthelyi László
Szigetszentmiklós OTP Ip

Érdekel az OTP Bank kedvezményes lakáshitel ajánlata? *

* A kérdésre „Igen” válasz bejelölése esetén, az „Üzenet küldése” gombra kattintva kijelentem, hogy az OTP Bank Nyrt. Adatkezelési tájékoztatójának tartalmát megismertem és tudomásul vettem.

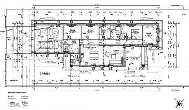
Eladó családi ház leírása

Veresegyház egyik gyönyörű, és jó elhelyezkedésű részén található 813 nm telekre épülő, magas műszaki tartalommal felszerelt különálló dupla garázsos családi ház eladó!

Az ingatlanban található 4 hálószoba, külön wc és fürdőszoba helyiség, nagy tágas nappali amerikai konyhával.

Az ingatlan tervezése folyamán, figyeltek arra, hogy élhető terek legyenek kialakítva, hogy minél komfortosabb legyen minden helyiség.

Rendkívül magas műszaki tartalommal rendelkező ingatlan.

- Hőszivattyús Fűtés-hűtési rendszer
- H tarifás villanyóra
- Három rétegű, hat légkamrás, melegperemes nyílászárók
- Mennyezet Fűtés, Hűtés lehetőség
- Fan coil Hűtés
- Padlófűtés minden helyiségben
- Beton gerendás födém, ami lehetővé teszi, hogy teljes mértékben pakolható, használható legyen a padlástér
- 12 cm grafitos dryvit szigetelés
- Napelem előkészítése
- Riasztó rendszer kiépítése

Az építtető számos referenciával rendelkezik a környéken!

Kérdés esetén keressen bizalommal, akár hétvégén is!

Hirdetés feltöltve: 2025. 11. 28. Utoljára módosítva: 2026. 01. 13.

5 szobás családi házak ára Veresegyházon

Ebből az összehasonlításból megtudhatod, hogyan viszonyul a lakás ára a környékbeli családi házak átlagos árához. Ez nem azt jelenti, hogy ennyivel olcsóbb vagy drágább, mint amennyit a lakás ér, hanem hogy ennyivel tér el a környékbeli átlagtól.

Ennek a m² ára
Veresegyház m² ár
878 e Ft
836 e Ft -5%
Ennek az ára
Veresegyház átlagár
129.9 M Ft m Ft
152.7 m Ft 15%

Az ingatlan elhelyezkedése

Cím: Veresegyház

Eladó családi házak a környékről

Eladó családi ház
Eladó családi ház

Tápiószele

18.9 M Ft
4 szoba
68 m2
Eladó családi ház
Eladó családi ház

Budakeszi, Makkosmária

100 M Ft
1 szoba
10 m2
Eladó családi ház
Eladó családi ház

Zebegény

69.9 M Ft
6 szoba
245 m2
Eladó családi ház
Eladó családi ház

Veresegyház

149.9 M Ft
6 szoba
266 m2
Eladó családi ház
Eladó családi ház

Veresegyház

89 M Ft
1020 m²
199 m2
Eladó családi ház
Eladó családi ház

Veresegyház

136 M Ft
5 szoba
198 m2
Eladó családi ház
Eladó családi ház

Tápiószőlős

34.9 M Ft
5 szoba
210 m2
Eladó családi ház
Eladó családi ház

Budakeszi

130 M Ft
5 szoba
30 m2
Eladó családi ház
Eladó családi ház

Veresegyház

145.5 M Ft
5 szoba
136 m2
Eladó családi ház
Eladó családi ház

Tápiószele

32.9 M Ft
4 szoba
200 m2
Eladó családi ház
Eladó családi ház

Veresegyház

145.5 M Ft
880 m²
150 m2
Eladó családi ház
Eladó családi ház

Veresegyház

157 M Ft
6 szoba
250 m2
Eladó családi ház
Eladó családi ház

Kerepes

81.99 M Ft
5 szoba
102 m2
Eladó családi ház
Eladó családi ház

Veresegyház

136.8 M Ft
3 + 2 szoba
181 m2
Eladó családi ház
Eladó családi ház

Veresegyház

149.9 M Ft
2 szoba
280 m2
Eladó családi ház
Eladó családi ház

Tápiószele

37.9 M Ft
4 szoba
141 m2
Eladó családi ház
Eladó családi ház

Tápiószentmárton

7.9 M Ft
2 + 1 szoba
86 m2
Eladó családi ház
Eladó családi ház

Veresegyház

149.9 M Ft
4 szoba
260 m2
Eladó családi ház
Eladó családi ház

Tápiószentmárton

48 M Ft
5 szoba
180 m2
Eladó családi ház
Eladó családi ház

Remeteszőlős

399.9 M Ft
5 + 2 szoba
260 m2
Eladó családi ház
Eladó családi ház

Tápiógyörgye

19.9 M Ft
3 szoba
65 m2
Eladó családi ház
Eladó családi ház

Veresegyház

149.9 M Ft
4 szoba
280 m2
Eladó családi ház
Eladó családi ház

Veresegyház

157 M Ft
6 szoba
250 m2
Eladó családi ház
Eladó családi ház

Veresegyház

197.9 M Ft
5 szoba
260 m2

Falusi CSOK ingatlanok

Eladó családi ház
Eladó családi ház

Alattyán

45 M Ft
4 + 1 szoba
186 m2
Eladó családi ház
Eladó családi ház

Pétfürdő

74.9 M Ft
3 szoba
89 m2
Eladó családi ház
Eladó családi ház

Hercegszántó

29.9 M Ft
4 szoba
130 m2
Eladó családi ház
Eladó családi ház

Badacsonytördemic

179.07 M Ft
4 szoba
160 m2
Eladó családi ház
Eladó családi ház

Kaposgyarmat

695 M Ft
6 szoba
610 m2
Eladó ikerház
Eladó ikerház

Balatonakali

370 M Ft
4 szoba
140 m2
Eladó családi ház
Eladó családi ház

Abádszalók

70 M Ft
3 szoba
100 m2
Eladó családi ház
Eladó családi ház

Szederkény

107.9 M Ft
6 szoba
224 m2